BernadovoBPI Real Estate Poland - mieszkania na sprzedaż
Gdynia, Mały Kack, ul. Wzgórze Bernadowo














Obecnie w sprzedaży. 7 typów w ofercie.
1. Dwupokojowe mieszkania o powierzchni 48,22 m² — salon z aneksem kuchennym, pokój, łazienka, przedsionek. Idealne dla singla lub pary, która chce mieć wyraźnie wydzieloną strefę dzienną i prywatną oraz pełną łazienkę. Atutem jest czytelny układ, łatwy w aranżacji, oraz przedsionek pozwalający na szafę i wygodne przechowywanie odzieży wierzchniej.
2. Dwupokojowe mieszkania o powierzchni 48,86–48,88 m² — salon z aneksem kuchennym, pokój, WC, przedsionek. Świetne dla osób szukających funkcjonalnej, kompaktowej przestrzeni z naciskiem na wygodną strefę dzienną i osobny pokój do pracy lub snu. Zalety to klarowny podział na część dzienną i prywatną, ekonomiczna strefa sanitarna oraz praktyczny przedsionek, który pomaga utrzymać porządek przy wejściu.
3. Dwupokojowe mieszkania o powierzchni 48,88 m² — salon z aneksem kuchennym, pokój, WC, korytarz wewnętrzny. Dla singla lub pary ceniących organizację i schowki: wewnętrzny korytarz porządkuje komunikację i daje miejsce na zabudowy. Atutami są funkcjonalny układ z oddzieleniem strefy prywatnej, kompaktowa część sanitarna oraz możliwość wygodnego ulokowania szaf w ciągu korytarza.
4. Czteropokojowe mieszkania o powierzchni 95,37 m² — salon z aneksem kuchennym, sypialnia małżeńska, pokój, pokój, łazienka, łazienka, garderoba, przedsionek. Wymarzone dla rodziny potrzebującej trzech sypialni i wygodnej strefy dziennej. Zaletą jest liczba łazienek: dwie niezależne strefy sanitarne skracają poranne kolejki, zwiększają prywatność domowników i umożliwiają wydzielenie łazienki dla gości lub dzieci. Osobna garderoba to porządek bez kompromisów — miejsce na sezonowe ubrania i sprzęty, które nie zajmują przestrzeni mieszkalnej.
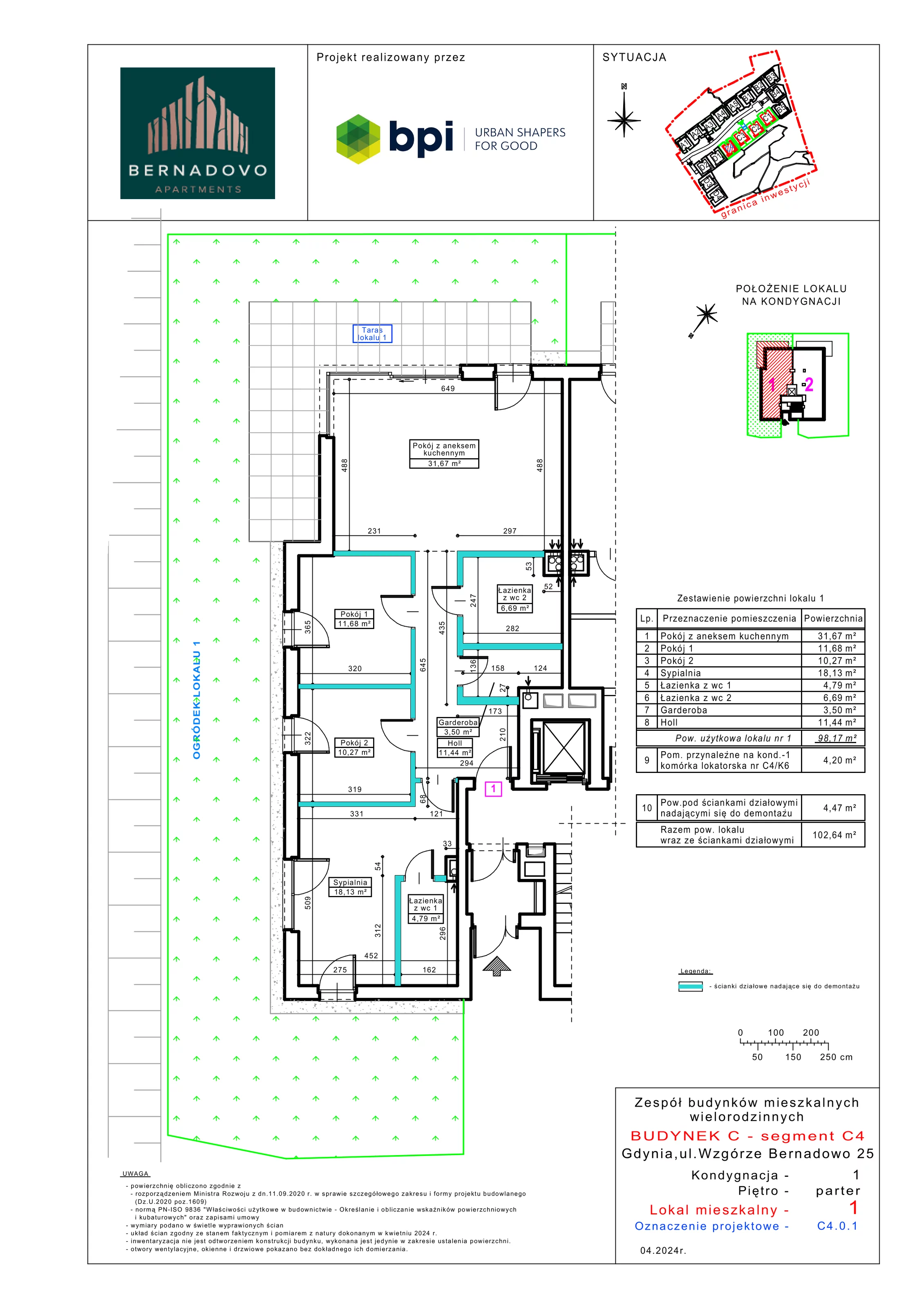
5. Czteropokojowe mieszkania o powierzchni 97,45–98,31 m² — salon z aneksem kuchennym, pokój, pokój, pokój, łazienka, garderoba na odzież wierzchnią, łazienka, przedsionek. Idealne dla rodziny 2+1 lub 2+2, która ceni komfort i porządek w strefie wejściowej. Zaletą jest liczba łazienek: dwie łazienki poprawiają codzienną logistykę, pozwalają oddzielić potrzeby dorosłych i dzieci lub domowników i gości. Garderoba na odzież wierzchnią przy wejściu eliminuje bałagan butów i kurtek, poprawiając estetykę i funkcjonalność przedpokoju.
6. Czteropokojowe mieszkania o powierzchni 98,06–98,37 m² — salon z aneksem kuchennym i jadalnią, sypialnia małżeńska, sypialnia dla dziecka, sypialnia dla dziecka, łazienka, garderoba na odzież wierzchnią, łazienka, przedsionek. Skrojone pod rodziny z dwojgiem dzieci, które chcą mieć wspólną jadalnię w centrum domu. Zaletą jest liczba sypialni dla dzieci: każde dziecko ma własną przestrzeń, co ułatwia naukę i sen. Liczba łazienek to wygoda w godzinach szczytu i większa prywatność domowników. Garderoba na odzież wierzchnią pomaga utrzymać ład, zwłaszcza w sezonie deszczowym i zimowym.
7. Czteropokojowe mieszkania o powierzchni 98,17 m² — salon z aneksem kuchennym i jadalnią, sypialnia małżeńska, sypialnia dla dziecka, sypialnia dla dziecka, łazienka, łazienka, pralnia, przedsionek, inny. Doskonałe dla rodziny z dwojgiem dzieci, ceniącej codzienną wygodę i uporządkowany dom. Zaletą jest liczba sypialni dla dzieci: dwie równorzędne przestrzenie ograniczają konflikty o biurko czy miejsce do zabawy. Liczba łazienek ułatwia poranne i wieczorne rytuały, a osobna pralnia przenosi suszenie i pranie poza strefę dzienną, co zwiększa estetykę i skraca czas sprzątania. Dodatkowe pomieszczenie „inny” daje elastyczność — może pełnić funkcję schowka, mini gabinetu lub miejsca na hobby.
Podsumowanie: W Bernadovo na Małym Kacku dostępnych jest 7 zróżnicowanych typów mieszkań — od kompaktowych dwupokojowych około 48 m² po rodzinne czteropokojowe blisko 98 m² — z atutami takimi jak dwie łazienki, garderoby, jadalnia i pralnia, co ułatwia dopasowanie wyboru do etapu życia i potrzeb domowników.
Inwestycja Bernadovo, zlokalizowana przy ul. Wzgórze Bernadowo w prestiżowej dzielnicy Gdyni – Mały Kack, oferuje swoim mieszkańcom bezprecedensowy dostęp do bogatej infrastruktury okolicy. W najbliższym sąsiedztwie znajdują się liczne markety, sklepy osiedlowe, lokalne bistro i restauracje, apteki, a także placówki edukacyjne takie jak szkoły, przedszkola i żłobki. Dzięki temu mieszkańcy mogą cieszyć się wygodą życia w miejscu, które zaspokaja wszystkie codzienne potrzeby. 10 minut jazdy od osiedla znajduje się CH Galeria Klif oferując różnorodność, sklepów, usług i miejsc rekreacji.
Jednym z największych atutów tej lokalizacji jest obfita zieleń, która otacza inwestycję Bernadovo. Oprócz prywatnego lasu, który okala teren osiedla, mieszkańcy mogą się cieszyć bliskością Trójmiejskiego Parku Krajobrazowego oraz licznych tereny zielone w samym Małym Kacku, które stwarzają idealne warunki do wypoczynku na łonie natury i uprawiania różnorodnych aktywności na świeżym powietrzu. Spacery, jogging czy jazda na rowerze po malowniczych ścieżkach to tylko niektóre z możliwości, jakie oferuje ta zielona enklawa.
Lokalizacja ta zapewnia doskonałą komunikację z resztą Trójmiasta. Bliskość głównych arterii komunikacyjnych i przystanków autobusowych ułatwia sprawne poruszanie się po mieście. W pobliżu inwestycji znajduje się dworzec kolejowy Gdynia Mały Kack, z którego odjeżdżają pociągi SKM i PKM, umożliwiające szybkie dotarcie do centrum Gdyni, Sopotu czy Gdańska. Ta wygodna opcja transportu jest szczególnie cenna dla osób pracujących poza dzielnicą czy ceniących szybki dostęp do bogatej oferty kulturalnej i rozrywkowej całego Trójmiasta.
Znajdź nieruchomość za granicą
Ulice na Małym Kacku
Nieruchomości na sprzedaż
Nieruchomości do wynajęcia
Rynek pierwotny