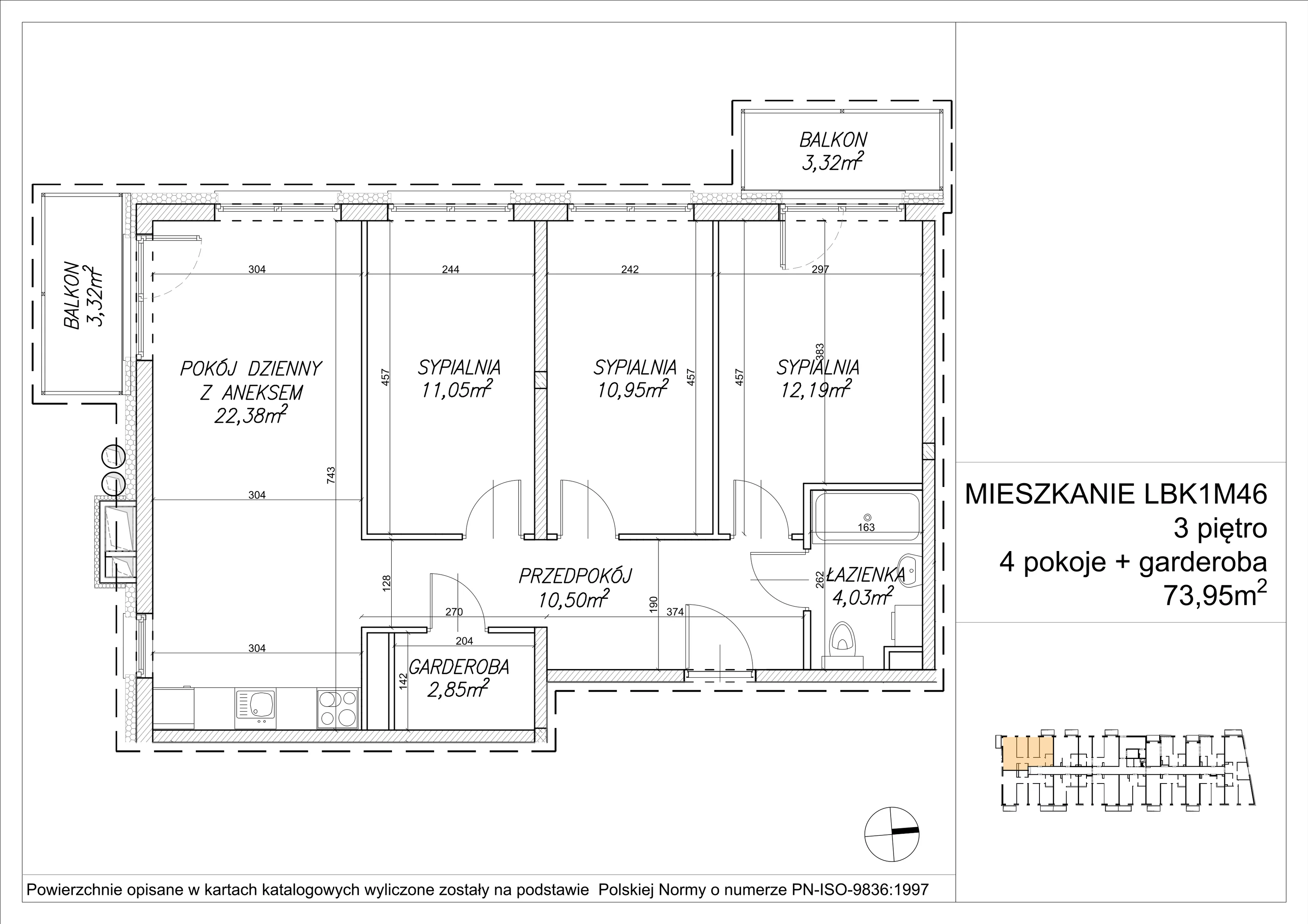
Nowe mieszkanie, 74,11 m², 4 pokoje, 3 piętro, oferta nr LBK1M46NOWOŚĆ
776 649,40 zł
10 479,68 zł/m²
Monitoring cen
Inwestycja Lipa Piotrkowska
Wrocław, Lipa Piotrowska, Psie Pole, ul Szałwiowa 6







Liczba pokoi:
4 pokoje
Powierzchnia:
74,11 m²
Piętro:
3 piętro
Liczba poziomów:
1
Garaż:
parking naziemny, parking podziemny
Powierzchnie zewnętrzne:
balkon (3,32 m²), balkon (3,32 m²)
Termin oddania:
IV kwartał 2025