ENGLISH VERSION BELOW
Na sprzedaż 4-pokojowe mieszkanie o powierzchni 98,1m2 usytuowane na 3. piętrze w 8-piętrowym apartamentowcu z 2015 roku, znajdującym się przy ul. Rydygiera 13B na Żoliborzu.
MIESZKANIE:
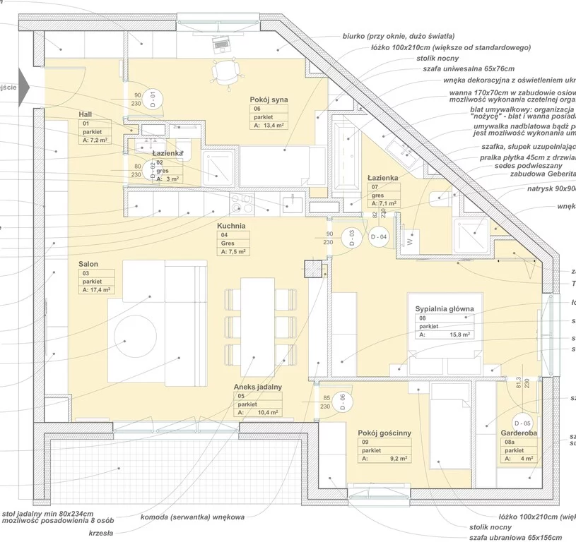
Mieszkanie wykończono w 2016 roku w najwyższym standardzie. Wnętrze zostało szczegółowo zaplanowane przez projektanta tak, aby maksymalnie wykorzystać przestrzeń. To doskonała propozycja dla wielbicieli drewna - mieszkanie pełne jest zabudów wykonanych na wymiar przez stolarza, na podłogach położono wytrzymałą deskę (jesion palony), nawet loggia (9,55m2) w całości wyłożona jest sosnowymi deskami. Okna wychodzą na trzy strony świata, a wysokość sufitów to 2,78m.
Klimatyzowany salon tworzy z aneksem kuchennym i jadalnią jedną, pięknie doświetloną (ekspozycja na południowy-wschód) przestrzeń o powierzchni ok. 35m2. Ciekawy element stanowią ściana telewizyjna pokryta stiukiem ze stalowymi, efektownymi półkami, czy lodówka na wino.
Główna sypialnia (15,8m2) jest połączona z garderobą i dużą, ponad 7-metrową łazienką zarówno z wanną jak i prysznicem.
W mieszkaniu są jeszcze dwie przytulne sypialnie o powierzchni 13,4m2 oraz 9,2m2.
Z przedpokoju (7,2m2) m.in. z pojemną szafą i siedziskiem wchodzi się do drugiej łazienki (3m2) z prysznicem, umywalką, wc i grzejnikiem drabinkowym.
OKOLICA:
Budynek przy ul. Rydygiera 13B znajduje się na prestiżowym osiedlu, w doskonałym punkcie zarówno z perspektywy dostępu do komunikacji miejskiej, jak i bogatej infrastruktury handlowo-usługowej. Wokół znajdują się liczne sklepy, restauracje, przedszkola czy np. siłownia dla dzieci i kancelaria notarialna obok wejścia do budynku. Niedaleko jest do centrum handlowego Westfield Arkadia. Dojazd do Centrum komunikacją zajmuje kilkanaście minut.
INFORMACJE DODATKOWE:
Do mieszkania przynależą 2 miejsca postojowe (zastawne) oraz prawie 5-metrowa komórka lokatorska na piętrze płatne dodatkowo łącznie 150.000zł.
Pełna własność przy zakupie można posiłkować się kredytem hipotecznym.
Polecam i zapraszam na prezentację!
ENGLISH:
For Sale: 4-Room Apartment, 98.1 m², Located on the 3rd Floor of an 8-Story Apartment Building from 2015, at 13B Rydygiera Street in Żoliborz.
THE APARTMENT:
The apartment was finished in 2016 to the highest standard. The interior was carefully designed by an architect to maximize the use of space. It's a perfect option for wood lovers – the apartment features custom-made built-in furniture crafted by a carpenter, durable scorched ash wood flooring, and even the loggia (9.55 m²) is entirely lined with pine boards. The windows face three directions, and the ceiling height is 2.78 m.
The living room, kitchen, and dining area form one beautifully lit open space of approximately 35m2, with a southeast exposure. Notable features include a TV wall finished with stucco and eye-catching steel shelves, as well as a built-in wine fridge. The master bedroom (15,8m2) is connected to a walk-in closet and a spacious bathroom (over 7m2) equipped with both a bathtub and a shower. There are also two cozy bedrooms, measuring 13,4m2 and 9,2m2. The hallway (7,2m2), which includes a large closet and a built-in bench, leads to a second bathroom (3m2) with a shower, sink, toilet, and towel radiator.
THE AREA:
The building at 13B Rydygiera Street is part of a prestigious residential complex, ideally located in terms of access to public transport and a wide range of shops and services. The area is full of amenities, including grocery stores, restaurants, preschools, a kids' gym, and even a notary office right next to the building entrance. Westfield Arkadia shopping center is also nearby. Getting to the city center by public transport takes just a few minutes.
ADDITIONAL INFORMATION:
The apartment comes with 2 tandem parking spaces and a nearly 5m2 storage unit on the same floor, available for an additional cost of PLN 150,000 in total.
Full ownership – purchase can be financed with a mortgage.
Highly recommended – feel free to schedule a viewing!
Zainteresowała Cię ta oferta? Zadzwoń!
Pomagamy w uzyskaniu najlepszego kredytu hipotecznego.
Oferta wysłana z programu dla biur nieruchomości ASARI CRM (asaricrm.com)