Do sprzedania piękny dom położony w Wieliczce przy ul. Na Stoku.
Wolnostojący dom położony na 5 arowej ogrodzonej działce. Ma około 226 m2. W 2013 roku przeszedł remont oraz odnowienie pokrycia dachowego. Dom wybudowany technologią tradycyjną i ocieplony styropianem i tynkiem.
Podjazd wykonany jest z kostki granitowej.
Na parterze w oknach zamontowane rolety antywłamaniowe.
Z całej posiadłości możemy cieszyć się cudownymi widokami na okolicę.
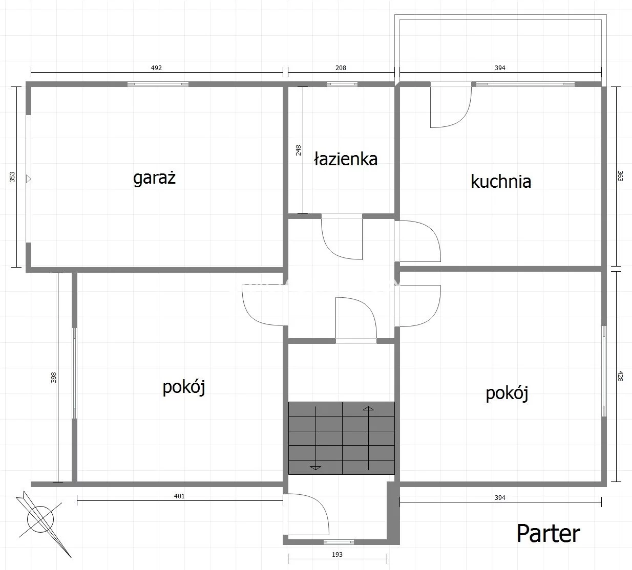
Nieruchomość składa się z trzech kondygnacji: piwnicy, parteru, piętra oraz poddasza.
Na parterze znajduje się: przedsionek, przedpokój, dwie sypialnie (w jednej z nich czynny kominek), widna kuchnia z wyjściem na balkon oraz łazienka razem z toaletą.
Na piętrze mamy duży salon połączony z aneksem kuchennym z wyjściem na balkon, dwa pokoje, przedpokój oraz łazienkę.
Na poddaszu - znajdują się dwie sypialnie, duża garderoba, łazienka oraz biblioteczka połączona z przedpokojem.
W piwnicy - znajduje się kotłownia ze zmiękczaczem wody, cztery pomieszczenia gospodarcze (z jednego wyjście na taras i do ogrodu) oraz garaż z oknem.
Garaż w razie potrzeby można przekształcić na dodatkowe pomieszczenie z wejściem na poziomie parteru.
Dom posiada dwa oddzielne wejścia: na parterze i na piętrze, także mogą w nim zamieszkać dwie rodziny.
Ogród zadbany, tym samym dodaje uroku nieruchomości.
Miejsce niesamowicie ciche i spokojne, jednocześnie z łatwym dostępem do centrum Krakowa
Idealne miejsce dla rodziny, która ceni sobie kameralność oraz ciszę.
Zapraszamy do prezentacji domu.
Cena: 1 690 000 złotych.
Kontakt: Katarzyna Hołda 503-780-786.
::DODATKOWE INFORMACJE
Gaz: jest
Woda: tak - własna
Dojazd: asfalt
Otoczenie: działki zabudowane
Ogrzewanie: własne gazowe
Nadaje się na biuro: TAK
Komunikacja publ.: bus, autobus miejski
Drzwi antywłamaniowe: TAK
Rolety antywłamaniowe: TAK
Teren ogrodzony: TAK
Okna: nowe drewniane
Instalacje: nowe
Balkon: duży
Tarasy: taras duży
Powierzchnia ogródka [m2]: 485
Zagosp. działki: zagospodarowana
Ukształtowanie działki: płaska
Kształt działki: prostokąt
Pokrycie dachu: blachodachówka
Pozwolenie na użytkowanie: tak
Powierzchnia użytkowa [m2]: 226
Stan budynku: do zamieszkania
Podpiwniczenie: tak
Garaż: w budynku
Rok budowy: 1999
Rodzaj lokalu: wielopoziomowy
Liczba pokoi: 8
Wysokość pomieszczeń [m]: 2,6500
Wystawa okien - pokoje : Pd-Wsch, Pd-Zach, Pn
Wystawa okien - kuchnia: Zach
::LINK DO STRONY
https://sadurscy.pl/offer/BS1-LS-308137
Zobacz Wirtualny Spacer: https://my.matterport.com/show/?m=dy2pNptcvbw
::KONTAKT DO AGENTA
Katarzyna Hołda
+48 503-780-786
Zapytaj o ofertę
::DANE BIURA
Oddział BS1, Kapelanka
Kapelanka 1A/1
30-347 Kraków
12 429-25-12