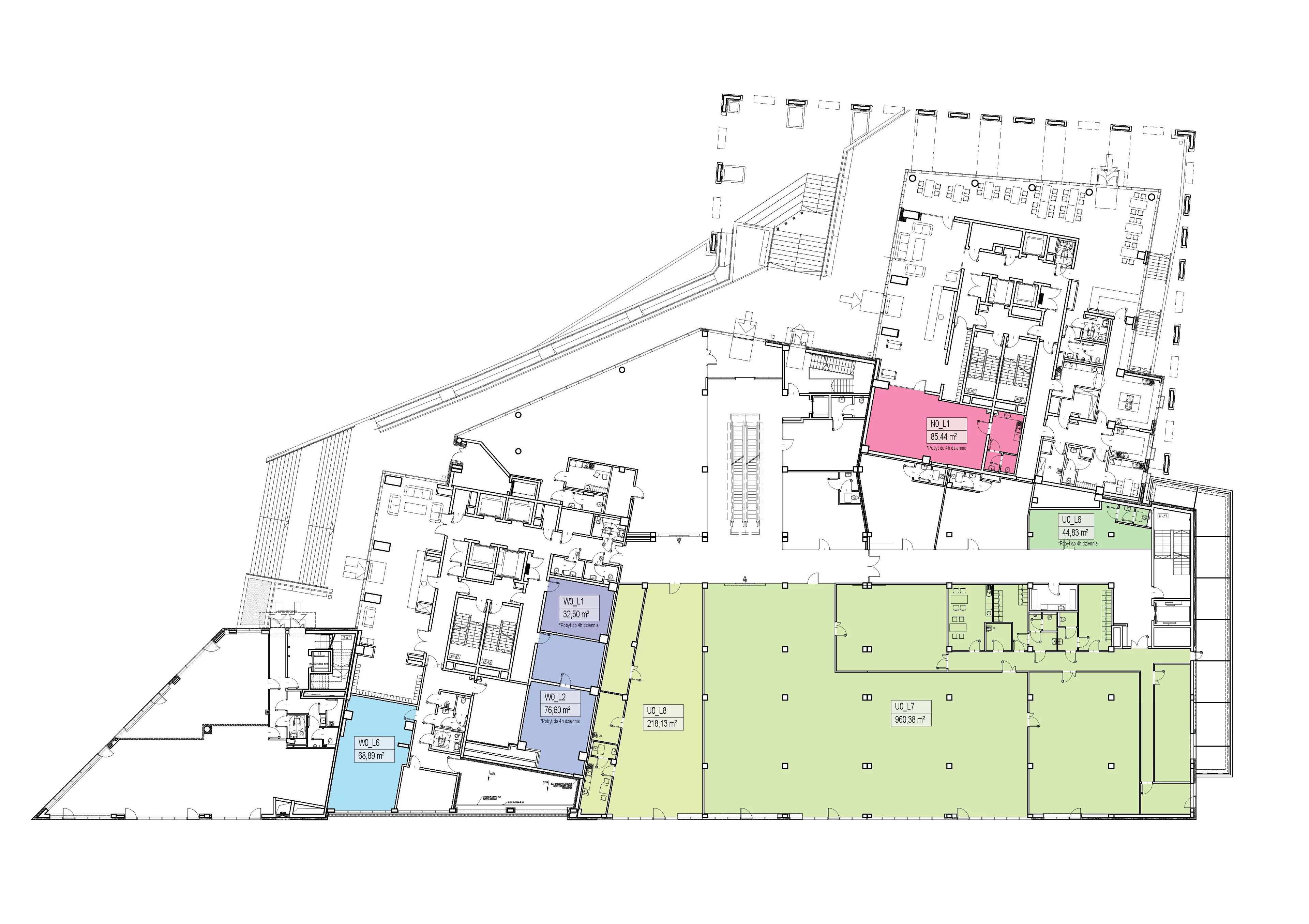
Lokal usługowy 218,13 m2 w Olszynki Park w centrum Rzeszowa
To wielofunkcyjny zespół handlowo-usługowo-biurowy i mieszkalny wielorodzinny z garażem wielopoziomowym zlokalizowany jest w centrum miasta Rzeszowa przy ul. Kilara na południowych obrzeżach Śródmieścia, wzdłuż trasy rzeki Wisłok.
W ramach najwyższej inwestycji na podkarpaciu przez DEWELOPER APKLAN realizowane są dwa budynki mieszkaniowe:
N - niski 18-sto piętrowy
W - wysoki 41-dno piętrowy
Apartamentowiec znajduje się w pobliżu stref rekreacyjnych oraz rozrywkowych.
W najbliższym sąsiedztwie inwestycji dostępne są ścieżki dla rowerów, biegaczy, skate park, hala widowiskowo sportowa.
Budynki posiadają samowystarczalny kompleks rozrywkowo edukacyjny lokali usługowych, a w nim restauracje, kawiarnie, basen, strefa SPA, strefa fitness i relaksu.
Olszynki Park to miejsce doskonałe zarówno do zamieszkania w świetnie skomunikowanej okolicy w sercu Rzeszowa, lokalizacja gustownego biura lub jako inwestycja środków pod kątem zwrotu z najmu długo lub krótkoterminowego.
WAŻNE INFORMACJE
Zakończenie inwestycji Olszynki Park zaplanowane jest na II kwartał 2024 roku.
Powierzchnia usługowo handlowa znajduje się na poziomie 0, 1 oraz 2 i wynosi około 9000 m2.
Ceny w ofercie to netto +23% vat
Standard wykończenia lokali usługowych:
Witryna i drzwi wejściowe do lokalu
Tynk gipsowy
Wylewka
Grzejniki (ogrzewanie podłogowe za dopłatą)
Czujki pożarowe
Doprowadzenie wentylacji (nawiew, wyciąg) – rekuperacja i centrala za dopłatą
Doprowadzenie zasilania z licznikiem prądu
Doprowadzenie wody, kanalizacji (w przypadku, gdy lokal będzie posiadał część sanitarną)
Możliwość podłączenia do systemu alarmowego
Pytania i odpowiedzi:
a) Czy na elewacji można umieścić reklamę?
Projektant budynku wykona szczegółowy projekt rozmieszczenia reklam na elewacji części usługowej, obejmując wszystkich właścicieli lokali. Bedą to przestrzenne litery lub logo.
b) Czy części wspólne będą wykończone?
Części wspólne będą wykończone pod klucz (płytki, oświetlenie itd.)
c) Czy lokal będzie dostępny całodobowo?
Dostęp do lokalu jest całodobowy, bez ograniczeń dla właścicieli i klientów.
d) Czy przed budynkiem i w środku zostaną wykonane tablice informacyjne o podmiotach posiadających lokale?
Tak, zostanie opracowany system tablic informacyjnych, przed wejściem do budynku i wewnątrz.
e) Czy można zainstalować klimatyzację?
Tak, przewidziano specjalne miejsca w celu instalacji klimatyzacji do każdego lokalu.
f) Jaką moc energii można zamówić do lokalu?
Na terenie inwestycji wybudowano stacje transformatorowe i można zamówić dowolną moc.
g) Czy budynek będzie monitorowany?
Tak, zostanie zainstalowane kilkadziesiąt kamer monitoringu.
h) Jak będzie się odbywać komunikacja pomiędzy piętrami części usługowej?
Przewidziano schody ruchome z parteru na pierwszą i drugą kondygnację , windę oraz klatkę schodową.
i) Jak można dostarczać np. towar do lokali handlowych?
Od drogi od strony parku, przewidziano windę towarową oraz klatkę schodową
PRZY ZAKUPIE NIERUCHOMOŚCI NASI DORADCY POMOGĄ W DOBORZE NAJKORZYSTNIEJSZEGO KREDYTU AKTUALNIE NA RYNKU!!!!!
Szczegółowe informacje
Agent nieruchomości
Arkadiusz Mazurkiewicz - 737482464