Do wynajęcia narożny lokal użytkowy o powierzchni 96,1 mkw w nowym budynku zlokalizowanym przy ulicy Walerego Sławka.
LOKALIZACJA: Sam budynek położony jest w ścisłym centrum dzielnicy Krakowa- Kurdwanowie. W sąsiedztwie budynku położone są duże inwestycje mieszkalne liczące blisko tysiąc mieszkań co stwarza potężną bazę klientów. Atutem usytuowania budynku jest możliwość szybkiego dojazdu w każdą część Krakowa z racji na bliskie położenie głównego węzła komunikacyjego, który stanowi doskonały punkt przesiadkowy komunikacji miejskiej będący skrzyżowaniem wielu linii autobusowych jak i tramwajowych.
BUDYNEK: Nowoczesny budynek wykończony w wysokim standardzie z lokalami o charakterze handlowo- usługowym na parterze oraz z apartamentami na wyższych kondygnacjach. Budynek jest monitorowany oraz dozorowany całodobowo.
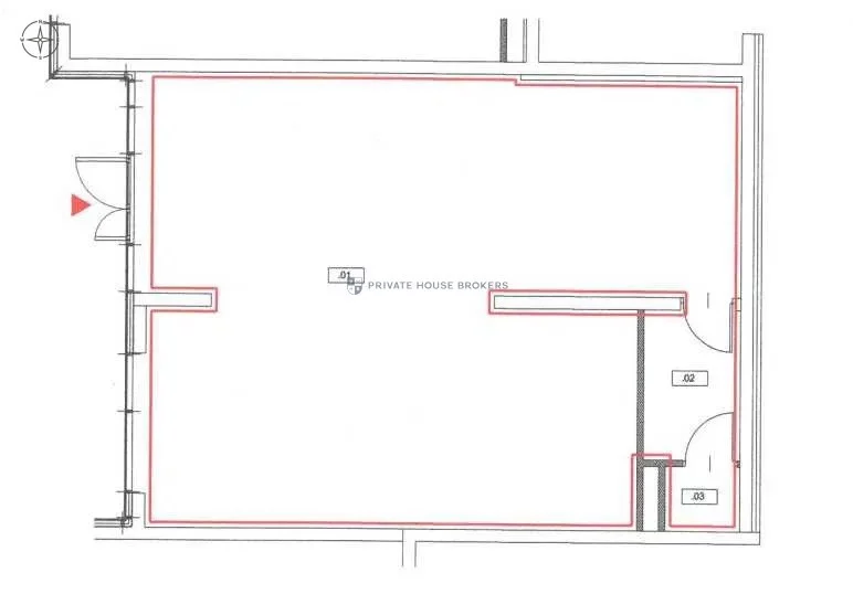
LOKAL: Zlokalizowany na parterze z szerokimi i przestronnymi witrynami na zajmującymi całą narożną cześć lokalu- daje to duże możliwości reklamy prowadzonej działalności. Lokal składa się z powierzchni użytkowej równej 96,1 mkw w skład której wchodzi powierzchnia typu open space oraz zaplecze socjalno- sanitarne. Wysokość lokalu równa 320 cm.
Ogrzewanie za pomocą sieci miejskiej stanowiącej najbardziej oszczędny sposób dostarczania energii cieplnej do lokalu. Na elewacji budynku zostało przewidziane miejsce na zainstalowanie pylonu reklamowego wraz z przyłączem elektrycznym.
Jest to doskonała propozycja dla klientów ceniących sobie prestiż oraz komfort miejsca pracy.
CENA: 75 zł netto/ mkw + czynsz administracyjny + opłaty za ogrzewanie, zużycie wody i energii elektrycznej według wskazań liczników.
POSIADAMY RÓWNIEŻ INNE LOKAL W TEJ INWESTYCJI.
Zainteresowany? Skontaktuj się z nami pod numerem +48 799 350 862 lub napisz nam maila poprzez formularz kontaktowy dostępny w ogłoszeniu.
Do wynajęcia narożny lokal użytkowy o powierzchni 96,1 mkw w nowym budynku zlokalizowanym przy ulicy Walerego Sławka.
LOKALIZACJA: Sam budynek położony jest w ścisłym centrum dzielnicy Krakowa- Kurdwanowie. W sąsiedztwie budynku położone są duże inwestycje mieszkalne liczące blisko tysiąc mieszkań co stwarza potężną bazę klientów. Atutem usytuowania budynku jest możliwość szybkiego dojazdu w każdą część Krakowa z racji na bliskie położenie głównego węzła komunikacyjego, który stanowi doskonały punkt przesiadkowy komunikacji miejskiej będący skrzyżowaniem wielu linii autobusowych jak i tramwajowych.
BUDYNEK: Nowoczesny budynek wykończony w wysokim standardzie z lokalami o charakterze handlowo- usługowym na parterze oraz z apartamentami na wyższych kondygnacjach. Budynek jest monitorowany oraz dozorowany całodobowo.
LOKAL: Zlokalizowany na parterze z szerokimi i przestronnymi witrynami na zajmującymi całą narożną cześć lokalu- daje to duże możliwości reklamy prowadzonej działalności. Lokal składa się z powierzchni użytkowej równej 96,1 mkw w skład której wchodzi powierzchnia typu open space oraz zaplecze socjalno- sanitarne. Wysokość lokalu równa 320 cm.
Ogrzewanie za pomocą sieci miejskiej stanowiącej najbardziej oszczędny sposób dostarczania energii cieplnej do lokalu. Na elewacji budynku zostało przewidziane miejsce na zainstalowanie pylonu reklamowego wraz z przyłączem elektrycznym.
Jest to doskonała propozycja dla klientów ceniących sobie prestiż oraz komfort miejsca pracy.
CENA: 75 zł netto/ mkw + czynsz administracyjny + opłaty za ogrzewanie, zużycie wody i energii elektrycznej według wskazań liczników.
POSIADAMY RÓWNIEŻ INNE LOKAL W TEJ INWESTYCJI.
Zainteresowany? Skontaktuj się z nami pod numerem +48 799 350 862 lub napisz nam maila poprzez formularz kontaktowy dostępny w ogłoszeniu.