Atrakcyjna działka inwestycyjna pod kameralny apartamentowiec w zacisznym miejscu.
Cicha i kameralna okolica, działka położona wśród niskiej zabudowy jednorodzinnej. Bardzo dobra komunikacja z Obwodnica Trójmiejską.
Pełne uzbrojenie sieci w granicy działki. Działka narożna o regularnym kształcie prostokąta.
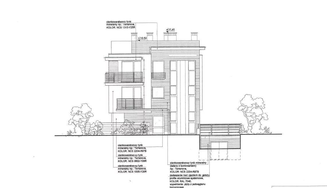
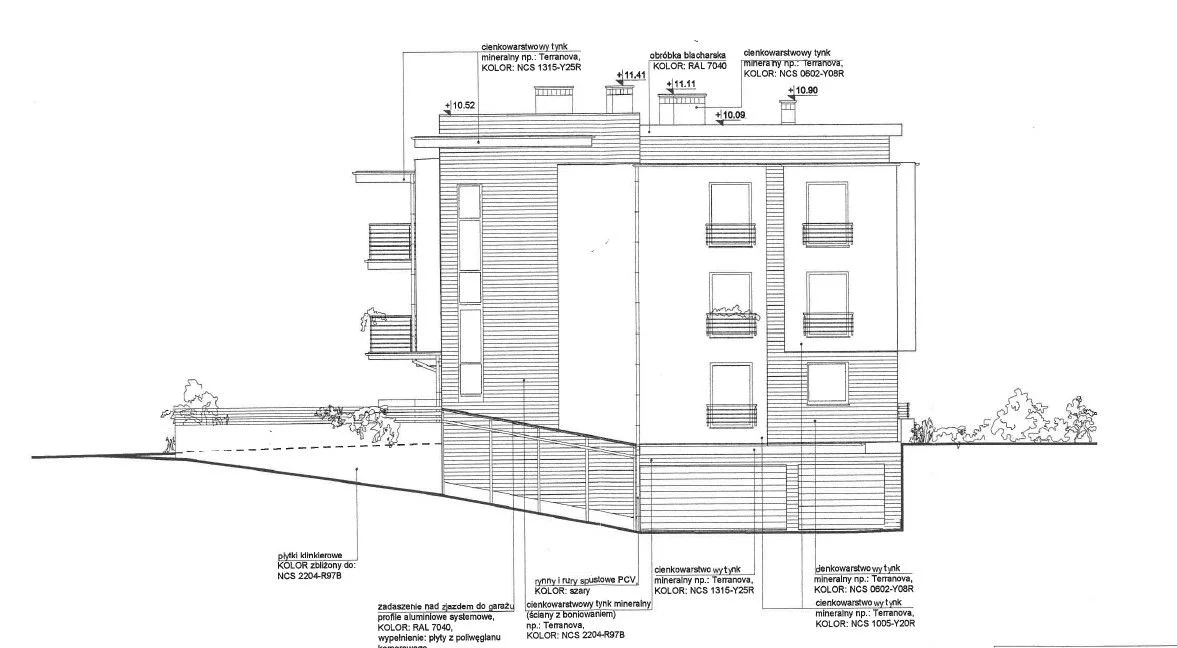
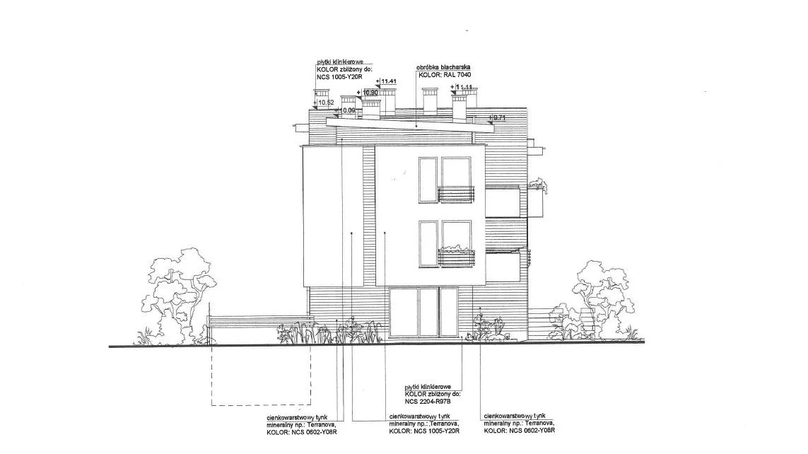
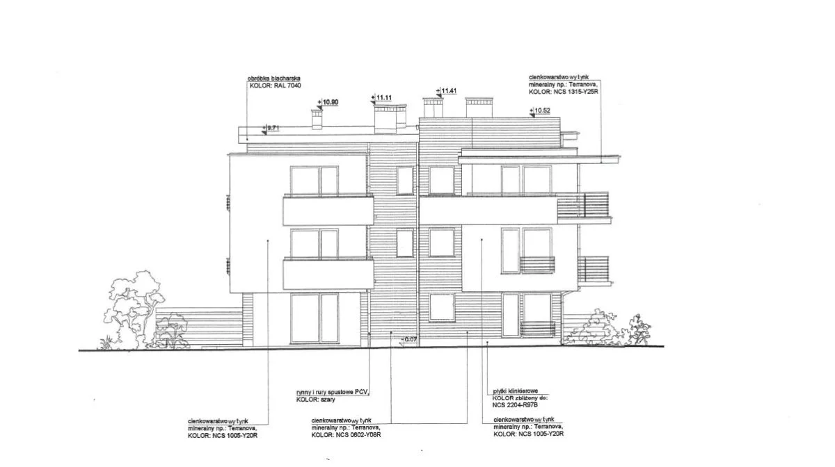
Działka posiada aktualne pozwolenie na budowę trzylokalowego budynku wielorodzinnego z podziemną halą garażową o łącznej powierzchni 423m2 ( powierzchnia użytkowa mieszkań 260m2). Budynek o trzech kondygnacjach naziemnych ( po jednym apartamencie na poziom) oraz podziemna hala garażowa.
Na przedmiotowym terenie nie uchwalono Planu zagospodarowania przestrzennego. Ewentualna zmiana sposobu zabudowy na budynek jednorodzinny lub bliźniak wymaga uzyskania Warunków Zabudowy.
Podana cena ofertowa jest ceną netto.
Cena brutto zakupu to cena netto plus 23% VAT.
Niniejsze ogłoszenie jest wyłącznie informacją handlową i nie stanowi oferty w myśl art. 66, paragraf 1. Kodeksu Cywilnego