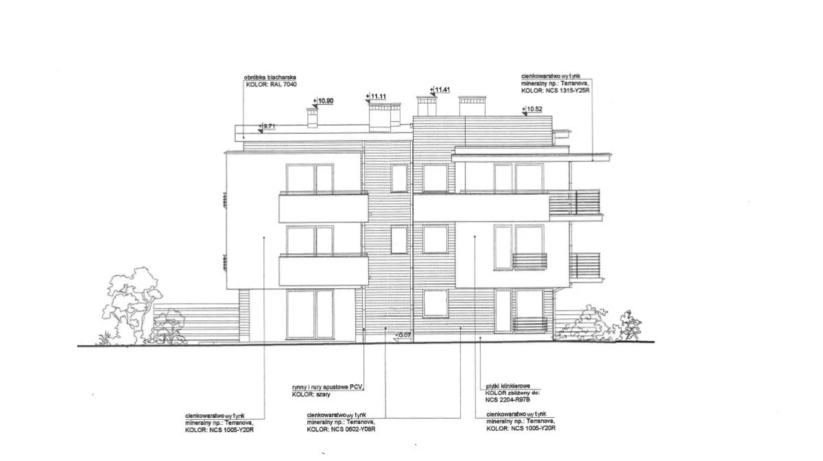
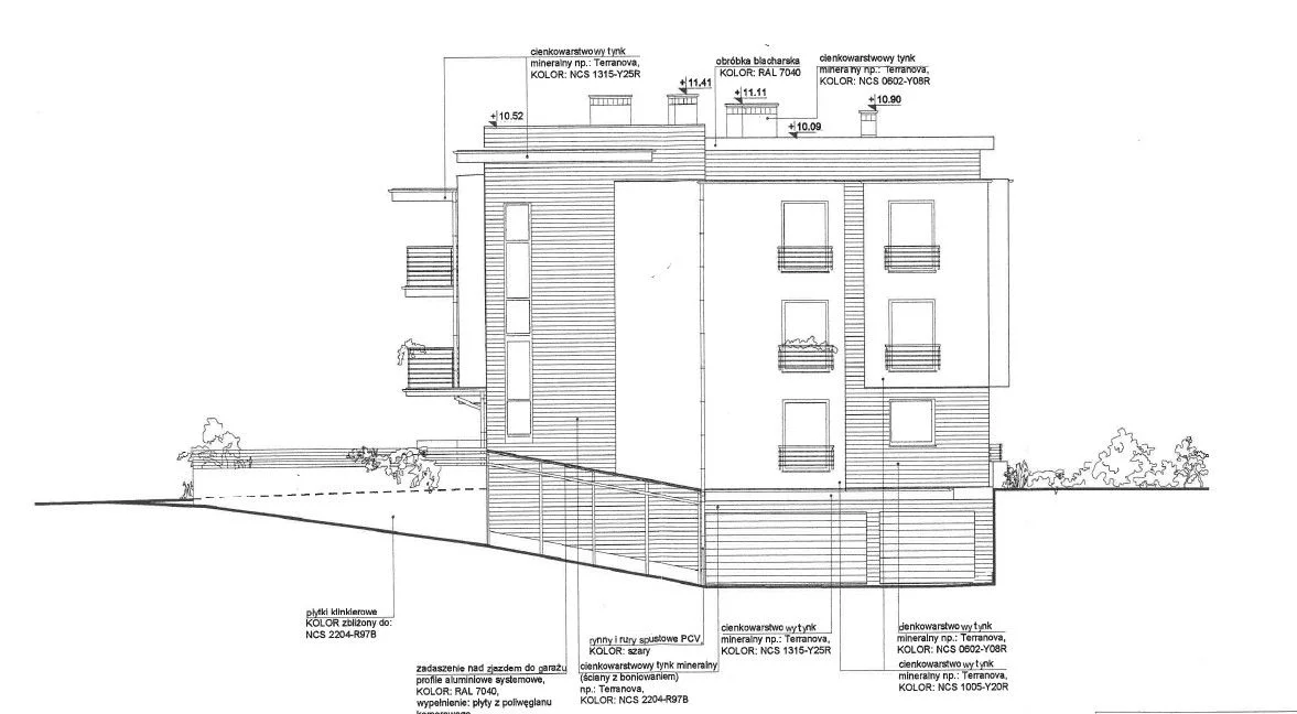
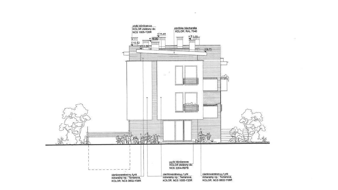
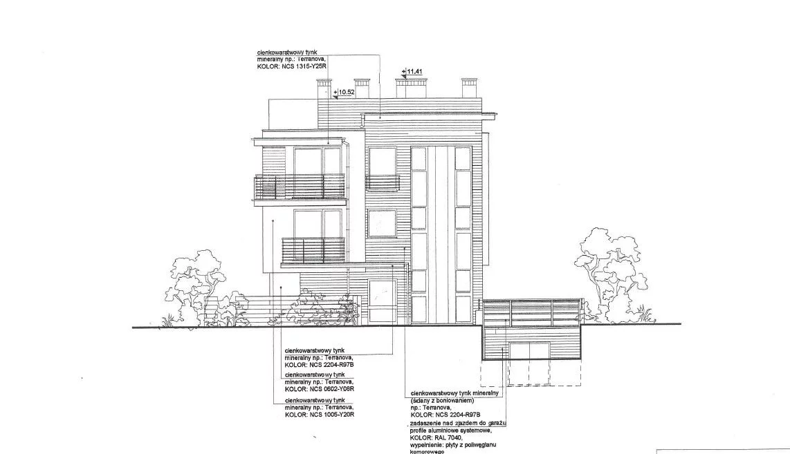
Działka na sprzedaż, 445,00 m², oferta nr 946450
Działka z oferty Muskat & Wicher Nieruchomości
Gdynia, Chwarzno-Wiczlino, Chwarzno, Izydy
845 000,00 zł
Rata 4 308 zł/mies. - sprawdź >
Monitoring cen





6

Mapa
Cena za m²:
1 898,88 zł
Powierzchnia:
445,00 m²
Treść ogłoszenia nie stanowi oferty w rozumieniu przepisów Kodeksu Cywilnego.