Przebieczany gm. Biskupice - dom jednorodzinny o pow. użytkowej 150 m 2 na działce o pow. 9 ar .
Przedmiotem oferty jest gotowy do zamieszkania dom jednorodzinny położony w malowniczej i spokojnej okolicy nieopodal Wieliczki, posiadający powierzchnię użytkową ok. 150 m 2 i posadowiony na działce o pow. 9 ar.
Konstrukcja budynku jest dwukondygnacyjna bez podpiwniczenia, istnieje możliwość zagospodarowania poddasza na cele mieszkalne. Budynek został wybudowany w latach 80-tych w technologii tradycyjnej murowanej, stropy z płyty żelbetowej, konstrukcja dachu drewniana, pokrycie dachu wykonane z blachy. Budynek wyposażony w wewnętrzną instalację wodno-kanalizacyjną, elektryczną, system centralnego ogrzewania w oparciu o piec gazowy Vaillant, podgrzewanie ciepłej wody użytkowej z systemu CO .
Budynek posiada przyłącza do sieci elektroenergetycznej , wodnej, gazowej, system kanalizacji sanitarnej w oparciu o zbiornik bezodpływowy .
Dom został wyremontowany w 2012, wymieniono pokrycie dachowe, wykonano elewację wraz z termomodernizacją (styropian 12 cm), wymieniono instalacje wewnętrzne, wykończona i wyposażono wnętrza budynku.
W skład nieruchomości wchodzą:
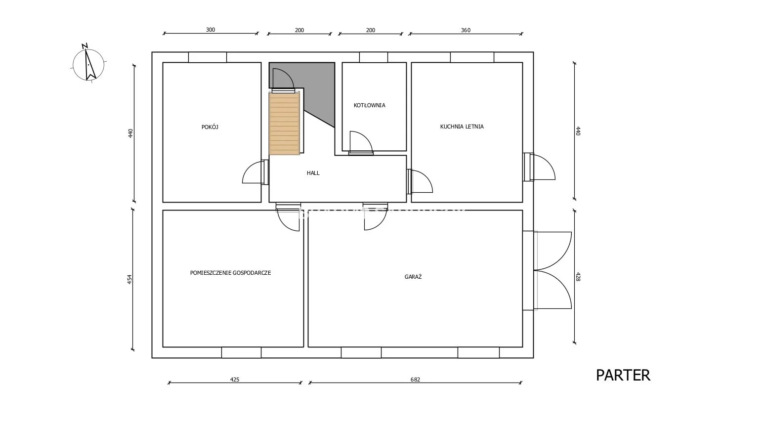
- parter: pokój (13,20 m2), kuchnia (15,84 m2), kotłownia (6,00 m2), hall (5,00 m2), garaż (29,20 m2), pomieszczenie gospodarcze (19,30 m2),
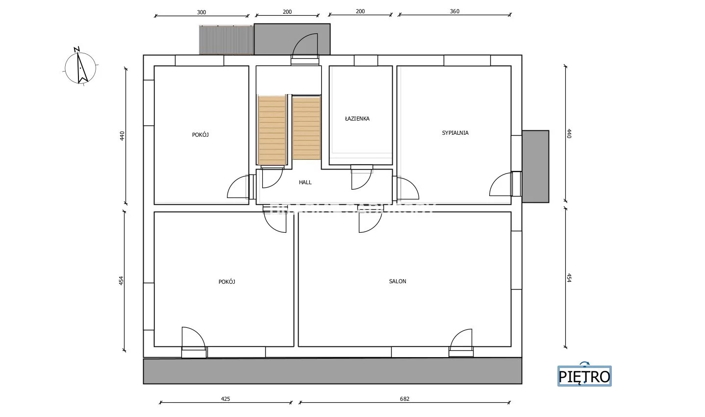
- piętro: 4 pokoje (22,84 m2, 20,91 m2), korytarz (9,4 m2), łazienka (4,19 m2)
Wnętrze budynku wykończone w wysokim standardzie, stolarka okienna PCV, drzwi wewnętrzne drewniane, podłogi w pokojach drewniane - deska drewniana, w łazienkach i ciągach komunikacyjnych płytki gresowe rektyfikowane. W pokojach wysokiej jakości meble (drewno, skóra naturalna) i elementy wyposażenia. Na poziomie parteru pozostałe do wykończenia są garaż, kotłownia oraz pomieszczenie gospodarcze.
Działka zagospodarowana i ogrodzona , teren jest przeważnie płaski z lekkim nachyleniem , w bezpośrednim sąsiedztwie znajduje się zabudowa jednorodzinna oraz tereny zielone .
Dojazd do działki zapewnia droga gminna asfaltowa o bardzo małym natężeniu ruchu.
Nieruchomość bardzo dobrze skomunikowana , znajduje się zaledwie 2,5 km od Wieliczki, natomiast odległość do granicy miasta Krakowa wynosi 8,5 km (A4 węzeł Wielicka).
Najbliższe obiekty użyteczności publicznej : przystanek autobusowy (274, A18, A19) - 45 0 m , sklep spożywczy - 1200 m, szkoła podstawowa i przedszkole (Tomaszkowice) - 1200 m.
Biuro pomaga bezpiecznie przeprowadzić transakcję.
Zapraszam do kontaktu i na prezentację nieruchomości.
Wojciech Sudoł
+48 509 907 533
Zapytaj o ofertę
::DODATKOWE INFORMACJE
Parking strzeżony (odległość w metrach) [m]: 1000
Prąd: w budynku
Gaz: jest
Woda: ciepła - piecyk gazowy
Dojazd: ASFALTOWA
Otoczenie: działki zabudowane
Ogrzewanie: C.O. GAZOWE
Kanalizacja: szambo
Komunikacja publ.: autobus podmiejski
Odległość do komunikacji publicznej [m]: 450
Odl. do sklepu [m]: 1200
Odl. do szkoły [m]: 1200
Odl. do przedszkola [m]: 1200
Teren ogrodzony: TAK
Okna: PCV
Balkon: jest
Liczba balkonów: 2
Powierzchnia balkonów/tarasów [m2]: 8
Powierzchnia ogródka [m2]: 800
Wymiary działki [m]: 27 x 30 x 25 x 43
Zagosp. działki: zagospodarowana
Ukształtowanie działki: lekko nachylona
Kształt działki: trapez
Rodzaj domu: jednorodzinny
Stan wybudowania: Pod klucz
Typ elewacji: tynk zwykły
Pokrycie dachu: blacha
Powierzchnia użytkowa [m2]: 150
Stan budynku: do zamieszkania
Podpiwniczenie: nie
Garaż: w bryle
Ogrodzenie działki: mieszane
Rok budowy: 1980
Liczba pokoi: 5
Wysokość pomieszczeń [m]: 2,5000
Liczba sypialni: 4
Powierzchnia pokoi [m2]: 72
Podłogi pokoi: deska drewniana
Ściany pokoi: malowane, gładzie gipsowe
Wyposażenie pokoi: meble - nowego typu
Wystawa okien - pokoje : Pd, Zach, Wsch
Typ łazienki: razem z wc
Liczba łazienek: 1
Powierzchnia łazienki [m2]: 6,6
Glazura łazienki: nowego typu
Podłoga łazienki: gres
Wyposażenie łazienki: WC, wanna, umywalka, pralka
Ściany łazienki: glazura
Wystawa okien - łazienka : Wsch
::LINK DO STRONY
https://sadurscy.pl/offer/BS5-DS-306656
Zobacz Wirtualny Spacer: https://sb360.online/eii5cn
::KONTAKT DO AGENTA
Wojciech Sudoł
+48 509-907-533
Zapytaj o ofertę
::DANE BIURA
Oddział BS5, Nowa Huta
Bracia Sadurscy Dariusz Sadurski
Os. Kazimierzowskie 36
31-844 Kraków
12 265 10 29