WITAJ W MAGICZNYM ŚWIECIE DOMÓW BABY JAGI
DOMY BUDOWANE NA WŁASNEJ DZIAŁCE KLIENTA KUPUJĄCEGO
Pomysł stworzenia Domu Baby Jagi powstał w pracowni Pole Architekci.
Idea projektowa od samego początku skupiała się na prostocie formy,
funkcjonalności ale także na zrównoważonych ekonomicznie rozwiązaniach.
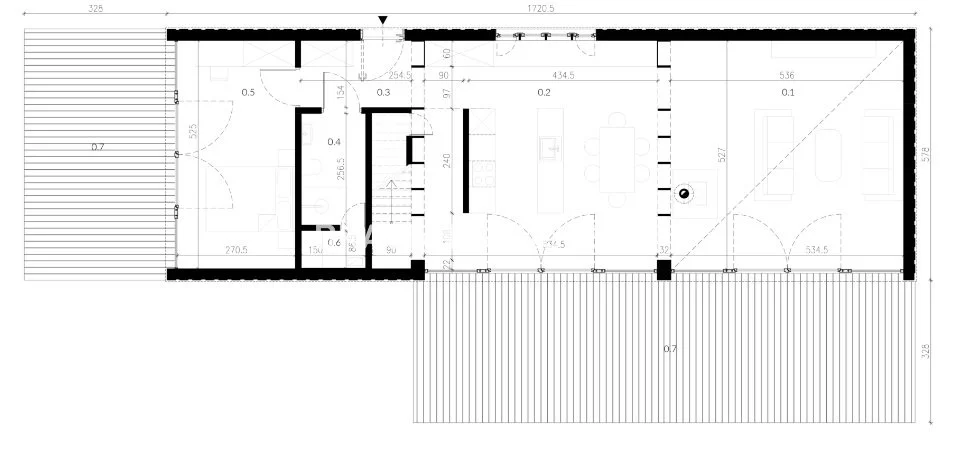
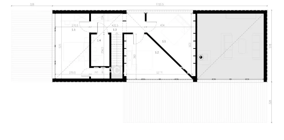
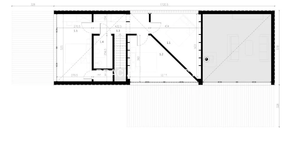
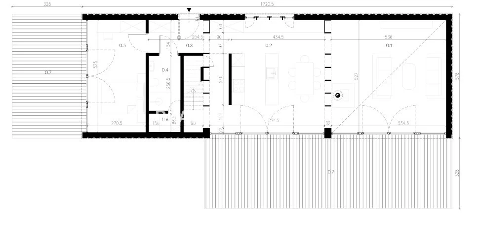
Budynek ma 109,4 m2 podstawy i 5 m wysokości.
Posadowiony jest na 9-ciu betonowych kolumnach fundamentowych. W środku to 35 m2 powierzchni użytkowej w której pod jednym dachem udało się zaprojektować; salon, kuchnie jadalnie, łazienkę i sypialnie na antresoli z widokiem. Cały dom został wykonany w technologii drewnianej z wewnętrznym ociepleniem, co sprawia, że dom można użytkować przez cały rok.
Deski, którymi wykończone są elewację i dach, nawiązują do tradycyjnego budownictwa naturalnego. Nowoczesnego charakteru nadaje mu nietypowa forma dachu, którego kalenica została poprowadzona po przekątnej domu. Szklana fasada w całości otwiera się na taras i otaczającą naturę. Dodatkowo podczas nieobecności właściciela, szklana ściana chroniona jest wrotami na całą wysokość budynku. Wrota mogą zmieniać stopień otwarcia w zależności od potrzeb użytkownika. Budynek w zależności od lokalnego prawa i upodobań, zakłada również zmianę zewnętrznego poszycia pod względem materiałowym i kolorystycznym.
Idealne dla Rodzin i Miłośników Natury
Domy Baby Jagi są idealnym miejscem dla rodzin z dziećmi, osób pracujących zdalnie, a także dla wszystkich, którzy pragną uciec od miejskiego zgiełku i cieszyć się spokojem natury. Bliskość szlaków turystycznych, tras rowerowych i jezior sprawia, że to doskonała lokalizacja dla aktywnego wypoczynku.
Zapraszamy do zapoznania się z ofertą innych domów tego typu.
Kontakt
Zapraszamy do kontaktu w celu uzyskania dodatkowych informacji oraz umówienia się na wizytę:
Telefon: 518-967-677
Email:
Zapytaj o ofertę
::DODATKOWE INFORMACJE
Kategoria oferty: Mieszkania dla rodzin z dziećmi
Prąd: jest
Gaz: brak
Woda: jest
Ogrzewanie: kominkowe
Kanalizacja: tak
Okna: PCV
Instalacje: nowe
Rodzaj domu: inny
Stan wybudowania: Stan deweloperski
Typ elewacji: drewno
Pokrycie dachu: dachówka
Powierzchnia użytkowa [m2]: 109,4000
Stan budynku: do wykończenia
Podpiwniczenie: nie
Garaż: brak
Rok budowy: 2024
Liczba pokoi: 4
Wysokość pomieszczeń [m]: 5
Liczba sypialni: 1
Powierzchnia pokoi [m2]: 22,1
Podłogi pokoi: deski
Ściany pokoi: inne
Typ kuchni: aneks kuchenny - połączony z salonem
Rodzaj kuchni: aneks kuchenny
Podłoga kuchni: inne
Typ łazienki: razem z wc
Liczba łazienek: 1
Powierzchnia łazienki [m2]: 2,8
::LINK DO STRONY
https://sadurscy.pl/offer/BS2-DS-302877
::KONTAKT DO AGENTA
Marek Popiela
+48 518-967-677
Zapytaj o ofertę
::DANE BIURA
Oddział BS2, Rynek Pierwotny
Przewóz 47
30-081 Kraków
12 630-90-45
--------------------------
::GRATIS | Nasza prowizja zawiera: koszt przedwstępnej notarialnej umowy sprzedaży nieruchomości z rynku wtórnego.
::GWARANCJA | Gwarancja zwrotu zadatku. Więcej informacji na sadurscy.pl/zwrot-zadatku/
Oferta wysłana z systemu Galactica Virgo