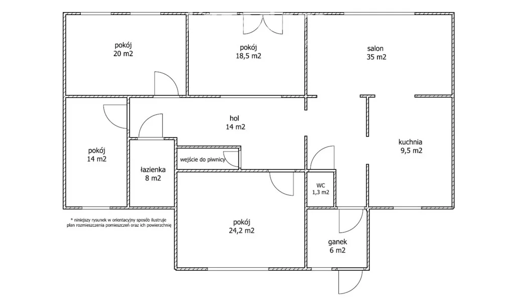
Na sprzedaż wyjątkowy dom w Prabutach – miejscu, które łączy w sobie urok natury i wygodę codziennego życia. To przestronny, skrajny segment w zabudowie szeregowej o powierzchni 150 m² z dodatkową piwnicą i garażem, zaprojektowany z myślą o rodzinie, która ceni komfort, spokój i nowoczesne rozwiązania. Już od progu czuć tu przytulną atmosferę – jasna kuchnia, funkcjonalne pokoje, sypialnia z wyjściem na taras oraz przestronny salon z kominkiem i ogrzewaniem podłogowym tworzą przestrzeń, w której chce się spędzać każdą wolną chwilę. W piwnicy znajdziesz pralnię i praktyczne pomieszczenia gospodarcze, a garaż z bezpośrednim wejściem do domu to wygoda na co dzień. Ogród ozdobny i owocowy otacza dom zielenią, dając poczucie prywatności i przestrzeni, której trudno szukać w większych miastach.
Dom jest gotowy do zamieszkania, wyposażony w nowoczesny system grzewczy – kondensacyjny piec gazowy, kocioł na eko-groszek, kominek i ogrzewanie podłogowe – a także pełne media miejskie, w tym kanalizację, wodociąg i zasilanie trójfazowe. To nieruchomość, która łączy praktyczność z wygodą, a jednocześnie pozwala poczuć prawdziwy domowy klimat.
Prabuty to miasteczko o wyjątkowym charakterze – otoczone jeziorami, lasami i rezerwatami, z pięknymi trasami rowerowymi i miejscami do aktywnego wypoczynku. To także bezpieczna i spokojna okolica z pełną infrastrukturą – szkoły, przedszkola, sklepy i ośrodki zdrowia znajdują się w zasięgu krótkiego spaceru. Dzięki świetnym połączeniom kolejowym do Warszawy dotrzesz w zaledwie 2,5 godziny, a do Gdańska w około 1 h, co sprawia, że jest to doskonała lokalizacja zarówno dla osób pracujących zdalnie, jak i tych, którzy chcą połączyć życie w harmonii z naturą z możliwością szybkiego dotarcia do dużych miast.
To nie jest zwykła nieruchomość – to dom, który daje poczucie bezpieczeństwa, przestrzeni i spokoju. Miejsce, w którym każdy dzień zaczyna się od kawy na tarasie i kończy wieczorem przy kominku. Jeśli szukasz nowego stylu życia, w którym komfort spotyka się z naturą, ten dom w Prabutach jest właśnie dla Ciebie.
Szczegóły oferty: Freedom Iława Kopernika, Dorota Działkowska tel. 798 567 511
* Do ceny nieruchomości należy doliczyć koszty okołotransakcyjne.
Świadectwo charakterystyki energetycznej - zapotrzebowanie na energię:
EU - użytkową (kWh/m2*rok): 115.32; EK - końcową (kWh/m2*rok): 207.11; EP - nieodnawialną energię pierwotną (kWh/m2*rok): 186.89; EC02 - Wielkość emisji CO2 (t C02/m2*rok): 0.03; UOZE - Udział odnawialnych źródeł energii w zapotrzebowaniu na energię końcową [%]: 22.39;
"Właścicielem ogłoszenia wraz z jego elementami jest Freedom Nieruchomości Sp. z o.o. lub podmioty współpracujące. Wszelkie prawa zastrzeżone. Kopiowanie, rozpowszechnianie oraz korzystanie z niniejszych materiałów w jakikolwiek inny sposób wykraczający poza dozwolony użytek określony przepisami ustawy z 4 lutego 1994 r. o prawie autorskim i prawach pokrewnych (Dz. U. 1994, nr 24 poz. 83 z późn. zm.) bez pisemnej zgody Freedom Nieruchomości Sp. z o.o. lub podmiotów współpracujących jest zabronione i może stanowić podstawę odpowiedzialności cywilnej oraz karnej.
Ponadto niniejsze materiały stanowią tajemnicę przedsiębiorstwa Freedom Nieruchomości Sp. z o.o. lub podmiotów współpracujących w rozumieniu ustawy z dnia 16 kwietnia 1993 r. o zwalczaniu nieuczciwej konkurencji (Dz. U. z 2003 r., Nr 153, poz. 1503 z późn. zm.). Niniejsze ogłoszenie nie stanowi oferty w rozumieniu Kodeksu Cywilnego, lecz ma charakter informacyjny."
Oferta wysłana z programu dla biur nieruchomości ASARI CRM (asaricrm.com)