Zapraszam do sprawdzenia oferty domu w zabudowie bliźniaczej z atrakcyjną działką!
Bez prowizji i PCC!
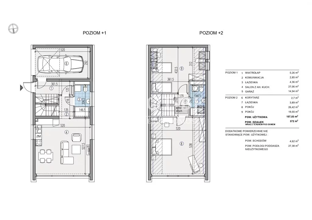
Prezentowany dom o pow. 107 mkw składa się z:
Parter
- Salonu z aneksem
- Łazienka
- Wiatrołap
- Garaż
Piętro
- 2 pokoje
- Łazienka
- Korytarz
Działka 372 mkw
Szczegółowy rozkład pomieszczeń i metraż przedstawia rzut zamieszczony w galerii.
Oddanie domów grudzień 2025r.
Standard domów:
Ogrzewanie gazowe, klimatyzacja, rolety elektryczne na parterze, ogrzewanie podłogowe na parterze, ogrodzenie działki panelowe, preinstalacja alarmu.
Lokalizacja:
Nadolice Wielkie, gminie Czernica, położone jest zaledwie 13 km od centrum Wrocławia.
To doskonała lokalizacja dla osób szukających spokoju w bliskiej odległości od miejskich udogodnień.
Posiadamy w ofercie inne domy tej inwestycji, zapraszam po więcej informacji.
Oferujemy pomoc eksperta finansowego, który ułatwi uzyskanie korzystnego kredytu.
Przy zakupie nieruchomości w standardzie deweloperskim zapewniamy możliwość wykończenia mieszkania "pod klucz".
Polecam i zapraszam na prezentację!
Jakub Urbański
Telefon: 573 024 193
Email:
Zapytaj o ofertę
Jako agent JOT-BE NIERUCHOMOŚCI zapewniam Państwu uniknięcie niepotrzebnego ryzyka i przeprowadzenie korzystnej transakcji.
Gwarantuję rynkowe ceny, bezpieczeństwo i obsługę własnego działu prawnego. Stosuję system jakości Polskiej Federacji Rynku Nieruchomości oraz Kartę Praw Klienta Pośrednika.
Służę zaangażowaniem, ekspercką wiedzą i najwyższym poziomem usług opartym o 40-letnie doświadczenie biura JOT-BE NIERUCHOMOŚCI.
Niniejsza oferta nie stanowi oferty w rozumieniu przepisów Kodeksu Cywilnego
Oferta wysłana z programu dla biur nieruchomości ASARI CRM (asaricrm.com)