Oferta sprzedaży domu parterowego, w stanie deweloperskim.
Budynek oddany do użytku.
Nieruchomość zlokalizowana na granicy Piotrkowa Trybunalskiego, przy ul. Moryca.
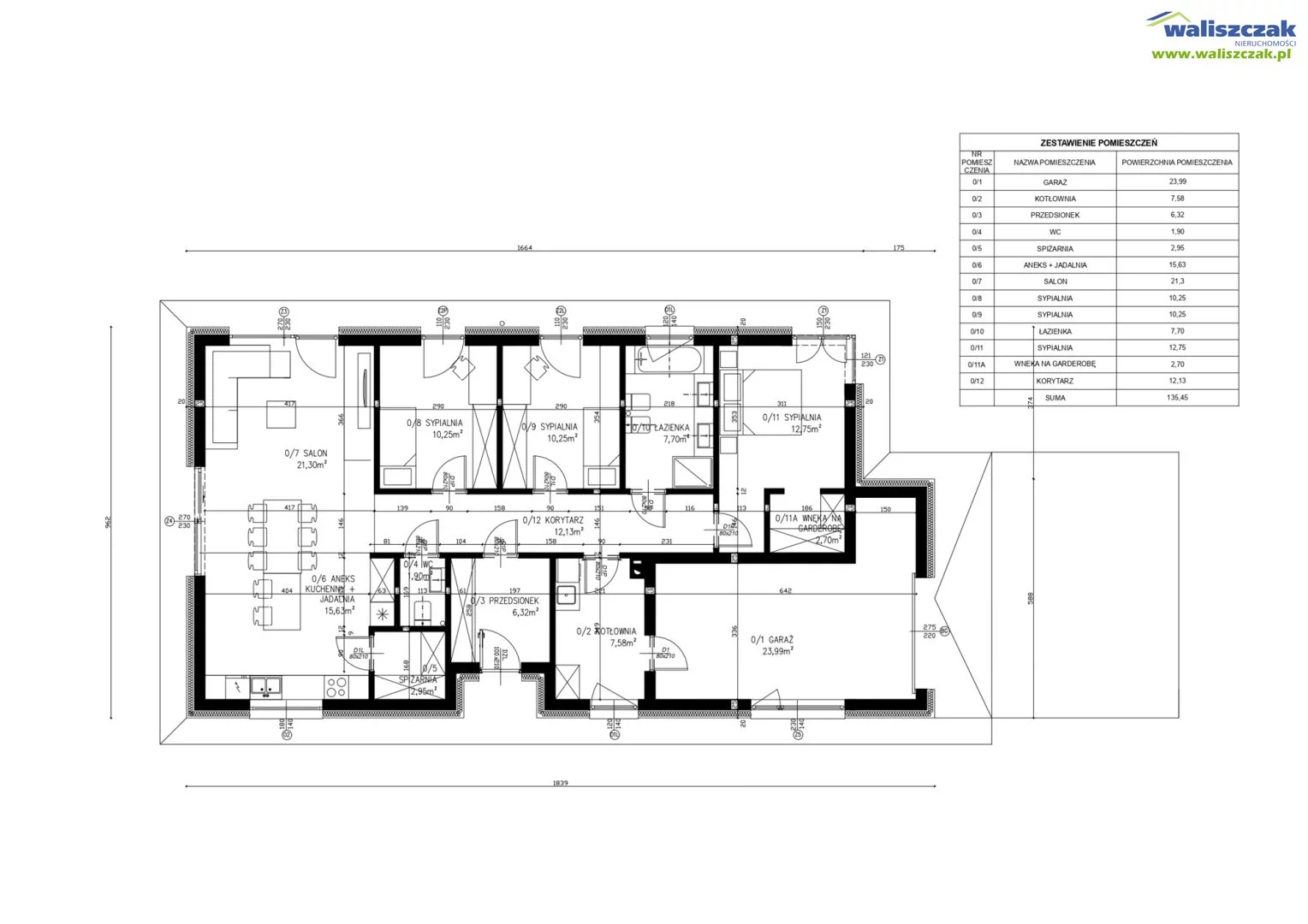
Dom o pow. użytkowej około 135,45m2.
Budynek wolnostojący, usytuowany na działce o pow. około 719m2.
Na powierzchnię budynku składają się następujące pomieszczenia
garaż - 23,99m2 ( w bryle budynku).
kotłowani - 7,58m2
przedsionek - 6,32m2
WC - 190m2
spiżarnia - 2,95m2
aneks + jadalnia: 15,63m2
salon - 21,3m2
sypialnia - 10,25m2
sypialnia - 10,25m2
sypialnia - 12,75m2
łazienka - 7,70m2
garderoba - 2,70m2
korytarz 12,13m2
strych do aranżacji
Atutem nieruchomości jest jej położenia, tj. tereny zielone, zapewniające spokój i możliwość obcowania z naturą, przy jednoczesnym możliwie szybkim dojeździe do centrum miasta.
Budynek posiada ogrzewanie podłogowe rozprowadzone po całym domu, przygotowane do podłączenia pod pompę ciepła.
Woda z sieci miejskiej.
Bezobsługowa przydomowa oczyszczalnia.
Wykończenie od zewnątrz: elewacja w systemie BSO ( 20cm ocieplenia) w estetycznie dobranej kolorystyce, opaska z kostki betonowej wokół budynku + podjazd do garażu i obszerny taras, ogrodzenie- siatka panelowa, brama na pilota.
Ocieplenie stropu wełną 30cm.
Okna trzyszybowe PCV. W salonie okna tarasowe przesuwne.
Stan deweloperski: tynki gipsowe, szlichty cementowe, rozprowadzone instalację sanitarne i elektryczne.
Dla zainteresowanych istnieje możliwość montażu pompy ciepła, montażu pergoli.
Dojazd do nieruchomości drogą wewnętrzną.
CENA 715 000zł do negocjacji.
ZAPRASZAMY !!!!!!!!!!!!!!!!
::DODATKOWE INFORMACJE
Prąd: jest
Woda: tak - miejska
Dojazd: droga gruntowa
Ogrzewanie: podłogowe
Kanalizacja: oczyszczalnia ekologiczna
Okna: PCV 3 szyby, ciepły montaż
Wymiary działki [m]: 20x36
Kształt działki: prostokąt
Pokrycie dachu: blachodachówka
Powierzchnia użytkowa [m2]: 135,4500
Garaż: w budynku
Rok budowy: 2025
Liczba pokoi: 4
Liczba sypialni: 3
::LINK DO STRONY
http://www.waliszczak.pl/oferta.aspx?id=6933535
Pośrednik odpowiedzialny zawodowo za wykonanie umowy pośrednictwa: Piotr Waliszczak (licencja nr: 11609)
--------------------------
Oferta kredytów hipotecznych na zakup nieruchomości jest dostępna w naszym biurze.
Wszystkie oferty dostępne na stronie biura. Na portalach dostępne wybrane oferty.
Oferta wysłana z systemu Galactica Virgo