Dom w zabudowie bliźniaczej - doskonała lokalizacja, Słupsk ul. Jana Kochanowskiego
Na sprzedaż dom w zabudowie bliźniaczej o powierzchni 90 m², posadowiony na działce o powierzchni 412 m²,
zlokalizowany przy ulicy Jana Kochanowskiego w Słupsku.
To wyjątkowa oferta dla osób, które cenią spokój i prywatność, a jednocześnie chcą mieszkać w dogodnym miejscu, z szybkim dostępem do centrum miasta. Okolica jest cicha i spokojna, a jednocześnie bardzo dobrze skomunikowana, co sprawia, że jest to jedna z bardziej atrakcyjnych lokalizacji w Słupsku.
W całym domu okna PCV, budynek jest ocieplony, a w 2008 roku został wymieniony dach. Ogrzewanie i ciepła woda z pieca gazowego. Na działce znajduje się murowany garaż oraz budynek gospodarczy , które stanowią dodatkowe zaplecze użytkowe. Za domem rozciąga się kameralny ogród, dający poczucie intymności i spokoju.
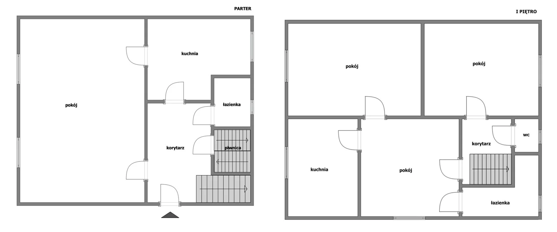
Na parterze budynku znajduje się przestronny pokój dzienny, kuchnia, łazienka z prysznicem oraz korytarz, z którego prowadzi zejście do piwnicy.
Pierwsze piętro to trzy ustawne pokoje, dwie łazienki oraz dodatkowa kuchnia, co daje szerokie możliwości aranżacyjne. Budynek posiada również strych, jako dodatkowe miejsce do przechowywania.
Dom położony jest w spokojnym otoczeniu zabudowy jednorodzinnej. W bezpośrednim sąsiedztwie znajdują się szkoły, sklepy i przystanki komunikacji miejskiej. Lokalizacja łączy zalety życia w mieście z atmosferą cichej, rodzinnej dzielnicy.
Cena: 599 000 zł
Strona Kupująca pokrywa wynagrodzenie prowizyjne dla biura.
Więcej informacji uzyskasz kontaktując się z nami:
799 333 633 - Dominika Wójcik (opiekun oferty)
728 20 20 30 - Marta Patyna
669 647 067 - Karolina Jakuczun
503 901 101 - Adrianna Iwanicka, licencja 23687
799 077 000 - Wiktoria Gołębiewska
728 111 007 - Przemysław Pryzwan
799 799 397 - Dominika Szramiak
Serdecznie zapraszam Państwa na prezentację nieruchomości, z przyjemnością odpowiem na wszelkie pytania oraz udzielę dodatkowych informacji.
Zamierzasz kupić nieruchomość i skorzystać z finansowania banku? Pomożemy dokonać Ci dobrego wyboru najlepszej oferty spośród wielu banków. Nasz doradca dostosuje ofertę kredytu hipotecznego do Twoich potrzeb i oczekiwań oraz będzie do Twojej dyspozycji na każdym etapie procesu kredytowego.
Niniejsza oferta nie stanowi oferty w rozumieniu Kodeksu Cywilnego, a dane w niej zawarte mają jedynie charakter informacyjny i mogą ulec zmianie.
Oferta wysłana z systemu Galactica Virgo