Na sprzedaż dwukondygnacyjny budynek biurowo-magazynowy o łącznej powierzchni
1561,83 m², położony na dwóch działkach o łącznej powierzchni powierzchni
1339 m² w
Mysłakowicach – zaledwie
10 km od Jeleniej Góry i Karpacza. Nieruchomość posiada duży potencjał inwestycyjny i może być przeznaczona na różnorodne cele.
LokalizacjaMysłakowice to dynamicznie rozwijająca się miejscowość, będąca siedzibą gminy w powiecie jeleniogórskim. Budynek znajduje się w
centralnej części miejscowości, co zapewnia łatwy dostęp do infrastruktury oraz komunikacji.
Zaledwie
jedną przecznicę od nieruchomości powstanie nowy przystanek kolejowy, będący częścią rewitalizowanej linii kolejowej
308, łączącej
Jelenią Górę z Kowarami. To dodatkowy atut, który w przyszłości wpłynie na wzrost wartości nieruchomości i ułatwi dostępność transportową.
Otoczenie- Od frontu znajduje się odnowiony skwer miejski z miejscami postojowymi.
- W sąsiedztwie budynku znajdują się budynki mieszkalne wielorodzinne oraz urząd gminy.
- Na tyłach nieruchomości znajdują się tereny po Zakładach Lniarskich Orzeł, które mogą stanowić przestrzeń do dalszego rozwoju.
Stan prawny
Nieruchomość składa się z dwóch działek o numerach
1192/27 i 1192/28, stanowiących
użytkowanie wieczyste, natomiast
budynek jest własnością spółki z o.o..Istnieje możliwość
nabycia nieruchomości bezpośrednio lub zakupu 100% udziałów w spółce, co może być korzystnym rozwiązaniem podatkowym dla inwestora.
Potencjał inwestycyjny
Obecnie nieruchomość objęta jest miejscowym planem zagospodarowania przestrzennego, który przeznacza ten teren pod
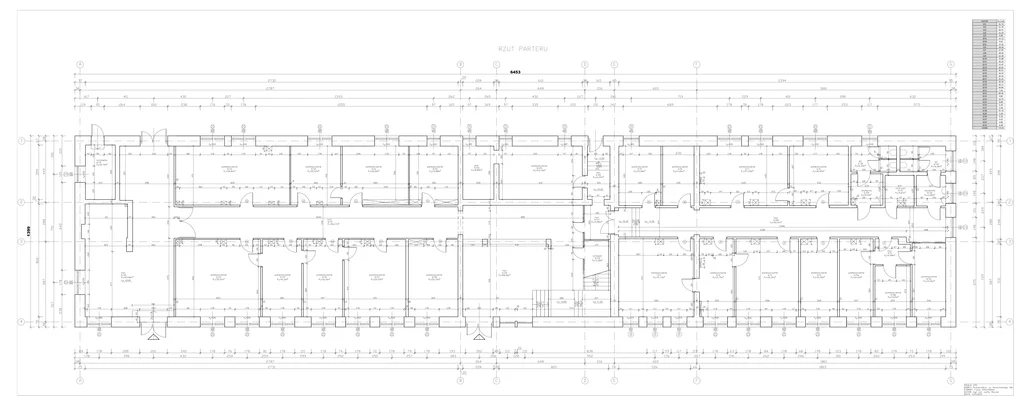
działalność produkcyjną z dopuszczeniem usług.Budynek może być wykorzystywany jako:
- powierzchnie biurowe i usługowe,
- magazyn lub przestrzeń handlowa,
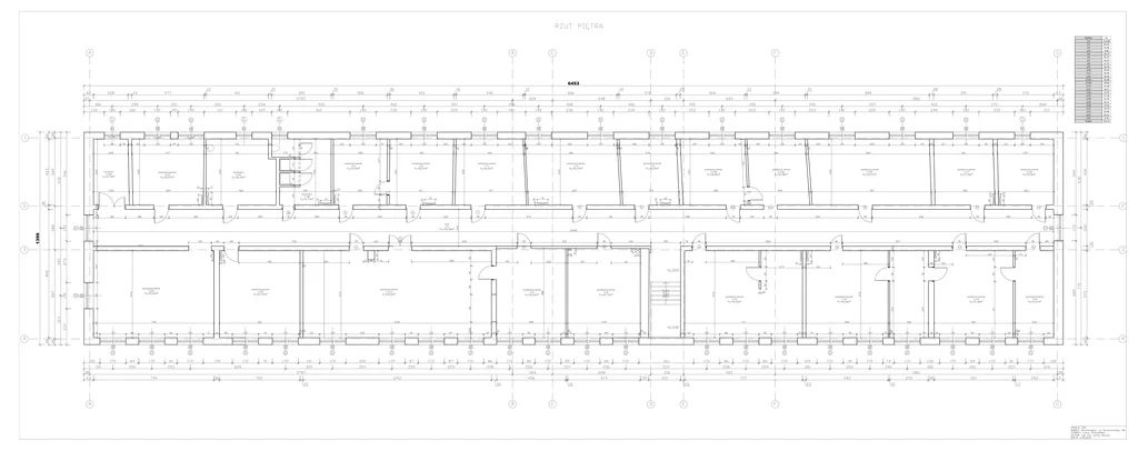
- zakwaterowanie pracownicze (jedno z pięter jest już częściowo przystosowane do tego celu).
Obecnie trwają prace nad zmianą planu zagospodarowania przestrzennego. W nowej wersji planu możliwe będzie
przeznaczenie całego budynku na działalność usługową, co otwiera jeszcze więcej możliwości inwestycyjnych.
Nieruchomość dostępna jest zarówno na sprzedaż, jak i na wynajem.
Zapraszamy do kontaktu w celu uzyskania dodatkowych informacji oraz umówienia się na prezentację budynku!
_________________________________________________________
Treść niniejszego ogłoszenia nie stanowi oferty handlowej w rozumieniu Kodeksu Cywilnego. Treść ma charakter informacyjny i zalecamy ich osobistą weryfikację.
Zgodnie z przepisami Ustawy z dnia 4 lutego 1994 r. o prawie autorskim i prawach pokrewnych (Dz.U. z 1994r. Nr 24, poz. 83, z późn. zm.). Kopiowanie treści oraz fotografii i planów bez pisemnej zgody autora stanowi naruszenie majątkowych praw autorskich oraz podstawę odpowiedzialności karnej przewidzianej przepisami art. 116 § 1-4 ww. ustawy.