Leach & Lang oferuje na wynajem wyjątkową przestrzeń biurową znajdującą się w odrestaurowanej kamienicy z windą i klimatycznym ogrodem przy ul. Karmelickiej.
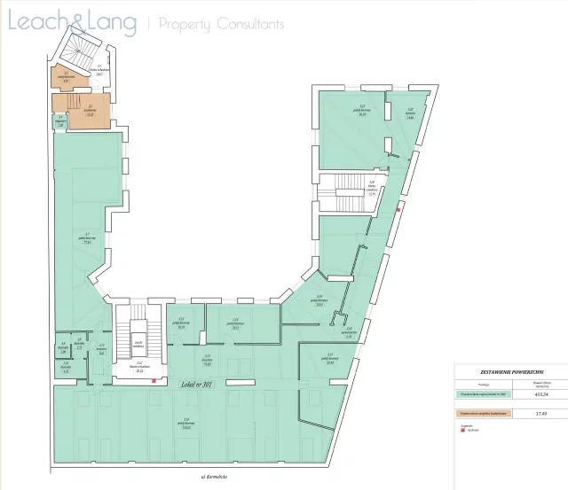
Lokal znajduje się na III piętrze i ma powierzchnię 455 m2. Układ: częściowo open space, a częściowo wydzielone gabinety, sale konferencyjne oraz kuchnia wraz ze strefą chillout.
Niewątpliwym atutem budynku jest piękny i zadbany ogród z niecodzienną strefą relaksu.
Na podwórku wydzielona miejsca dla rowerów.
Warunki najmu:
Czynsz: 54,90 zł/m2
Opłata serwisowa: 17,90 zł/m2
Opłaty dodatkowe; Media wg. wskazań liczników. Opłata za CO: 3,90 zł/m2
Opłata za miejsce parkingowe: 350 zł netto/miejsce
Okres najmu: min 24 miesiące
Niniejsze ogłoszenie jest wyłącznie informacją handlową i nie stanowi oferty w rozumieniu art. 66 Kodeksu Cywilnego.
Więcej podobnych ofert na stronie internetowej www.leachandlang.pl - zapraszamy!