Leach & Lang Property Consultants przedstawia powierzchnię biurową do wynajęcia, zlokalizowaną w nowoczesnym kompleksie biurowym na krakowskim Podgórzu.
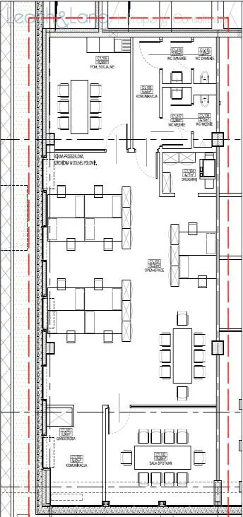
Lokal biurowy na parterze ma powierzchnię 149,73 m2 i składa się z jednej sali konferencyjnej, powierzchni open space, zaplecza socjalnego, serwerowni, dwóch toalet.
Kompleks biurowy jest bardzo dobrze skomunikowany ze Śródmieściem i pozostałymi dzielnicami miasta. Jego strategiczne położenie w okolicy dużych szlaków komunikacyjnych pozwala na łatwe dotarcie do najważniejszych lokalizacji w Krakowie.
Udogodnienia kompleksu biurowego:
- boiska do gry w siatkówkę;
- boiska do tenisa stołowego;
- zewnętrzna siłownia;
- przedszkole;
- ścieżki rowerowe.
Minimalny okres najmu: 3 lata
Możliwość wynajęcia miejsca postojowego w garażu podziemnym za dodatkową opłatą w wysokości: 70 euro za miejsce postojowe.
Czynsz najmu: 14,25 EUR/m2 netto + opłata eksploatacyjna 19 PLN/m2 netto
Zapraszamy na prezentacje.
Niniejsze ogłoszenie jest wyłącznie informacją handlową i nie stanowi oferty w rozumieniu art. 66 Kodeksu Cywilnego.
Więcej podobnych ofert na stronie internetowej www.leachandlang.pl - zapraszamy!