Obecnie w sprzedaży. W inwestycji Wzgórze Gustawa pozostaje obecnie 18 typów mieszkań.
1. Dwupokojowe mieszkania 34,79–36,09 m²: salon z aneksem kuchennym i jadalnią, sypialnia małżeńska, łazienka, balkon. To propozycja dla singla lub pary, którzy chcą wygodnego układu „na co dzień” bez straty metrażu na zbędne korytarze; część dzienna sprzyja wspólnemu gotowaniu i spotkaniom, a osobna sypialnia pozwala zachować prywatność i porządek. Balkon daje dodatkową przestrzeń na poranną kawę, zioła lub małą strefę relaksu.
Aktualnie w sprzedaży: 8 takich mieszkań. Sprawdź »
2. Dwupokojowe mieszkania 34,79–36,09 m²: salon z aneksem kuchennym i jadalnią, sypialnia małżeńska, łazienka, balkon. Ten wariant będzie idealny dla osób kupujących pierwsze mieszkanie lub pod wynajem — klasyczny, poszukiwany układ z wyraźnie wydzieloną sypialnią jest czytelny, funkcjonalny i łatwy do aranżacji w różnych stylach. Balkon podnosi komfort, oferując miejsce na odpoczynek po pracy bez wychodzenia z domu.
Aktualnie w sprzedaży: 8 takich mieszkań. Sprawdź »
3. Dwupokojowe mieszkanie 36,09 m²: salon z aneksem kuchennym, pokój, łazienka, ogródek. Świetny wybór dla pary, singla pracującego z domu albo miłośników zieleni — dodatkowy pokój może stać się sypialnią, gabinetem lub pokojem dziecka, a ogródek pozwala urządzić prywatną strefę wypoczynku, kącik zabaw lub miniwarzywnik. To mieszkanie szczególnie docenią osoby, które chcą mieć „swój kawałek” przestrzeni na zewnątrz tuż przy salonie.
Aktualnie w sprzedaży: 1 takie mieszkanie. Sprawdź »
4. Trzypokojowe mieszkania 51,41–51,54 m²: salon z aneksem kuchennym i jadalnią, sypialnia małżeńska, sypialnia dla dziecka, łazienka, balkon. Idealne dla pary planującej rodzinę lub rodziny 2+1, gdzie potrzebny jest drugi, pełnoprawny pokój. Układ daje wygodny podział na strefę wspólną i prywatną, a balkon stanowi naturalne przedłużenie części dziennej — dobry na popołudniowy odpoczynek lub przechowywanie sezonowych rzeczy w estetycznych skrzyniach.
Aktualnie w sprzedaży: 4 takie mieszkania. Sprawdź »
5. Trzypokojowe mieszkanie 51,41 m²: salon z aneksem kuchennym i jadalnią, sypialnia małżeńska, sypialnia dla dziecka, łazienka, taras. Wariant dla osób, które chcą więcej przestrzeni „na zewnątrz” i lubią jeść lub odpoczywać na świeżym powietrzu. Taras pozwala urządzić wygodną strefę wypoczynku z większym stołem, leżakami czy roślinami w donicach, a dwa pokoje zapewniają elastyczność: pokój dziecka może być też gabinetem, jeśli rodzina jeszcze się nie powiększyła.
Aktualnie w sprzedaży: 1 takie mieszkanie. Sprawdź »
6. Trzypokojowe mieszkanie 51,41 m²: salon z aneksem kuchennym i jadalnią, sypialnia dla gości, sypialnia małżeńska, łazienka, balkon. To świetna opcja dla pary, która często przyjmuje rodzinę lub przyjaciół, a także dla osób pracujących hybrydowo — sypialnia gościnna może na co dzień pełnić funkcję gabinetu, a w razie potrzeby zamienia się w komfortowe miejsce noclegu bez konieczności rozkładania sofy w salonie. Zaletą osobnej sypialni dla gości jest większa prywatność dla domowników, porządek w strefie dziennej oraz możliwość wygodnego nocowania odwiedzających „po swojemu”.
Aktualnie w sprzedaży: 1 takie mieszkanie. Sprawdź »
7. Trzypokojowe mieszkania 51,41–56,07 m²: salon z aneksem kuchennym i jadalnią, sypialnia małżeńska, sypialnia dla dziecka, łazienka, balkon. Ten typ będzie odpowiedni dla rodzin, które chcą odrobinę więcej przestrzeni przy zachowaniu praktycznego, sprawdzonego układu. Dwa pokoje prywatne ułatwiają organizację życia domowego (sen, nauka, praca), a część dzienna z jadalnią sprzyja wspólnym posiłkom i spotkaniom. Balkon daje dodatkowe miejsce na relaks i codzienne rytuały.
Aktualnie w sprzedaży: 6 takich mieszkań. Sprawdź »
8. Trzypokojowe mieszkanie 51,54 m²: salon z aneksem kuchennym i jadalnią, sypialnia małżeńska, sypialnia dla dziecka, łazienka, przedsionek, balkon. Dobry wybór dla osób ceniących uporządkowaną przestrzeń przy wejściu — przedsionek pomaga oddzielić część mieszkalną od strefy „zewnętrznej”, ułatwia przechowywanie okryć, butów czy wózka, a jednocześnie poprawia komfort codziennego funkcjonowania. Układ 2+1 sprawdzi się dla młodej rodziny lub pary z planem na domowe biuro w drugim pokoju.
Aktualnie w sprzedaży: 1 takie mieszkanie. Sprawdź »
9. Trzypokojowe mieszkanie 56,07 m²: salon z aneksem kuchennym i jadalnią, sypialnia małżeńska, sypialnia dla dziecka, łazienka, ogródek. Idealne dla rodziny 2+1 lub osób, które chcą połączyć zalety mieszkania z namiastką domu — ogródek daje miejsce na zabawę, odpoczynek, trening czy spotkania przy stoliku, a także pozwala trzymać rośliny bez ograniczeń typowych dla balkonów. Wygodna część dzienna z jadalnią sprzyja wspólnemu spędzaniu czasu.
Aktualnie w sprzedaży: 1 takie mieszkanie. Sprawdź »
10. Czteropokojowe mieszkania 59,32 m²: salon z aneksem kuchennym i jadalnią, sypialnia małżeńska, sypialnia dla dziecka, sypialnia dla dziecka, łazienka, korytarz wewnętrzny, przedsionek, balkon. To propozycja dla rodziny 2+2 (lub 2+1 z gabinetem), gdzie kluczowe są osobne pokoje dla dzieci. Zaletą większej liczby sypialni dziecięcych jest możliwość dopasowania przestrzeni do wieku i potrzeb: osobny pokój do nauki, drugi do snu i zabawy albo po prostu niezależność rodzeństwa, co zmniejsza konflikty i ułatwia codzienną organizację.
Aktualnie w sprzedaży: 4 takie mieszkania. Sprawdź »
11. Czteropokojowe mieszkania 59,32 m²: salon z aneksem kuchennym i jadalnią, sypialnia małżeńska, sypialnia dla dziecka, sypialnia dla dziecka, łazienka, korytarz wewnętrzny, przedsionek, balkon. Wariant dla rodzin, które chcą mieć trzy sypialnie przy kompaktowym metrażu, bez rezygnacji z wygodnej strefy dziennej. Dwie sypialnie dziecięce dają elastyczność: mogą służyć dwójce dzieci, dziecku i gabinetowi albo pokoikowi hobby. Zaletą takiego układu jest to, że dzieci mają własną przestrzeń, a salon zostaje „salonem”, nie noclegownią.
Aktualnie w sprzedaży: 2 takie mieszkania. Sprawdź »
12. Czteropokojowe mieszkanie 59,75 m²: salon z aneksem kuchennym i jadalnią, sypialnia małżeńska, sypialnia dla dziecka, pokój, łazienka, WC, przedsionek, korytarz wewnętrzny, balkon. Dla rodziny, która ceni wygodę w porannym i wieczornym szczycie domowym. Zaletą osobnego WC jest realne odciążenie łazienki — jedna osoba może korzystać z toalety, gdy druga bierze prysznic, co skraca kolejki, podnosi komfort gości i poprawia codzienną logistykę, zwłaszcza przy dzieciach. Dodatkowy pokój może być gabinetem lub drugą sypialnią dziecięcą.
Aktualnie w sprzedaży: 1 takie mieszkanie. Sprawdź »
13. Czteropokojowe mieszkanie 65,16 m²: salon z aneksem kuchennym i jadalnią, sypialnia małżeńska, sypialnia dla dziecka, sypialnia dla dziecka, łazienka, WC, przedsionek, korytarz prywatny, balkon. Idealne dla rodziny 2+2, która potrzebuje wyraźnego podziału na strefę wspólną i nocną — prywatny korytarz porządkuje komunikację i daje poczucie większej intymności w części sypialnianej. Zaletą są dwie sypialnie dziecięce (łatwiej o niezależność, naukę i odpoczynek bez „dzielenia wszystkiego”) oraz osobne WC, które usprawnia codzienne funkcjonowanie domowników i zwiększa wygodę podczas wizyt gości.
Aktualnie w sprzedaży: 1 takie mieszkanie. Sprawdź »
14. Czteropokojowe mieszkania 65,16–65,17 m²: salon z aneksem kuchennym i jadalnią, sypialnia małżeńska, sypialnia dla dziecka, sypialnia dla dziecka, łazienka, WC, przedsionek, korytarz wewnętrzny, balkon. To uniwersalny układ dla rodzin, które chcą mieć trzy sypialnie i jednocześnie zachować komfort obsługi domu. Dwie sypialnie dziecięce ułatwiają dopasowanie przestrzeni do potrzeb rodzeństwa (lub do połączenia funkcji: dziecko + gabinet), a osobne WC pozwala rozdzielić czynności higieniczne i skrócić „korki” w łazience.
Aktualnie w sprzedaży: 4 takie mieszkania. Sprawdź »
15. Czteropokojowe mieszkanie 65,17 m²: salon z aneksem kuchennym i jadalnią, sypialnia małżeńska, sypialnia dla dziecka, sypialnia dla dziecka, łazienka, WC, przedsionek, korytarz wewnętrzny, taras, balkon. Propozycja dla rodziny, która chce jednocześnie więcej możliwości wypoczynku na zewnątrz i pełnego programu pomieszczeń w środku. Taras i balkon pozwalają rozdzielić funkcje: jedno miejsce może służyć do relaksu, drugie bardziej praktycznie (np. rośliny, przechowywanie sezonowe). Atutem są dwie sypialnie dziecięce oraz osobne WC, które poprawia komfort domowników i odwiedzających.
Aktualnie w sprzedaży: 1 takie mieszkanie. Sprawdź »
16. Czteropokojowe mieszkanie 65,17 m²: salon z aneksem kuchennym i jadalnią, sypialnia małżeńska, sypialnia dla dziecka, sypialnia dla dziecka, łazienka, WC, przedsionek, korytarz wewnętrzny, balkon. To rozwiązanie dla rodzin, które potrzebują sensownej przestrzeni do życia na lata: osobne pokoje dzieci sprzyjają samodzielności i lepszej organizacji nauki oraz odpoczynku, a oddzielne WC zapewnia wygodę w godzinach największego domowego ruchu. Balkon uzupełnia część dzienną o dodatkową przestrzeń rekreacyjną.
Aktualnie w sprzedaży: 1 takie mieszkanie. Sprawdź »
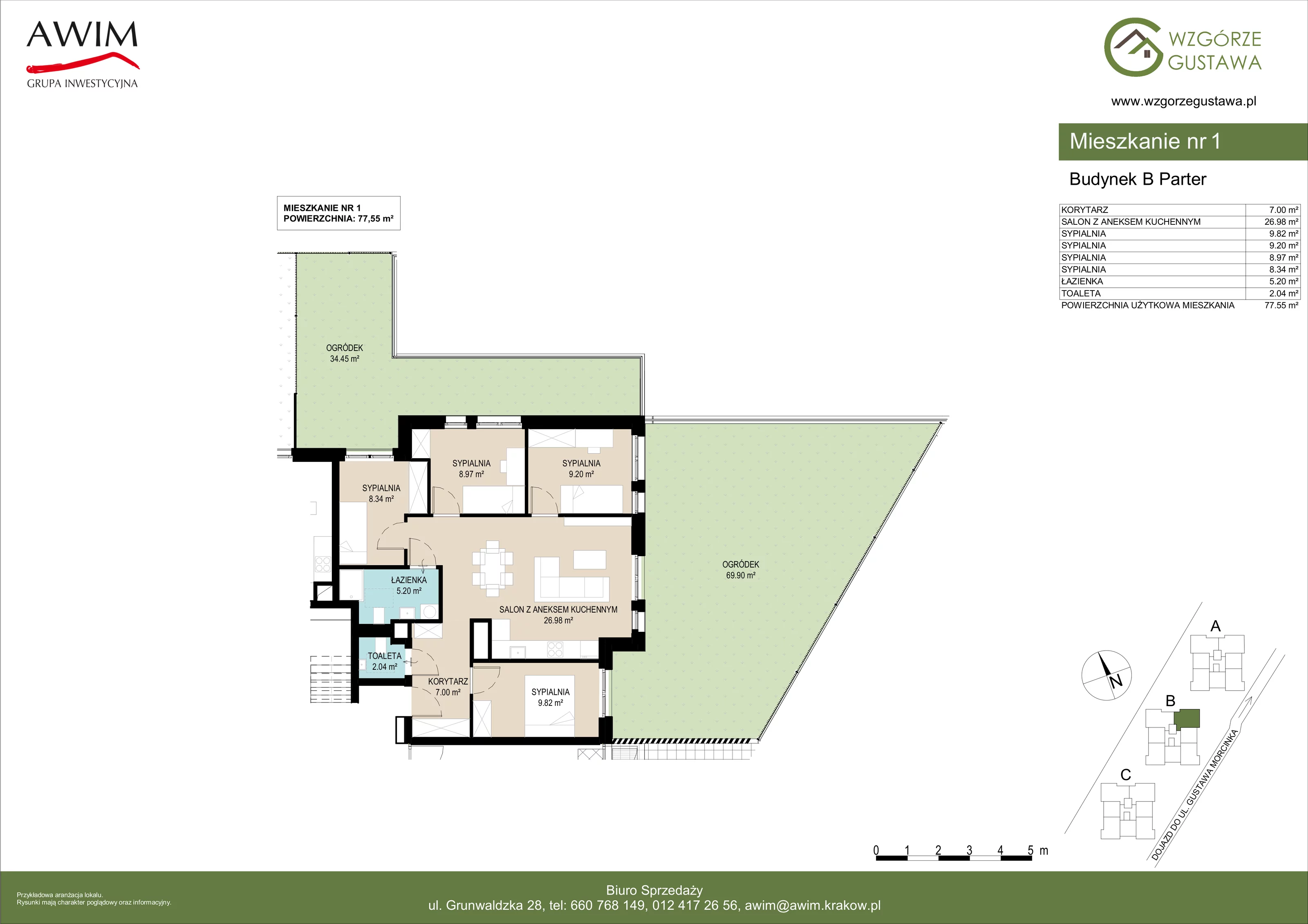
17. Pięciopokojowe mieszkanie 77,55 m²: salon z aneksem kuchennym i jadalnią, sypialnia małżeńska, sypialnia dla dziecka, sypialnia dla dziecka, sypialnia dla dziecka, łazienka, WC, przedsionek, ogródek, ogródek. To mieszkanie dla większej rodziny (np. 2+3) albo dla tych, którzy chcą połączyć życie rodzinne z pracą z domu bez kompromisów. Zaletą jest duża liczba sypialni dziecięcych, co pozwala każdemu dziecku mieć własny pokój lub wydzielić przestrzeń do nauki i hobby. Dwa ogródki dają wyjątkową elastyczność: można urządzić osobną strefę zabaw i osobną strefę relaksu/posiłków, bez mieszania funkcji. Osobne WC wyraźnie podnosi komfort codzienny, szczególnie przy wielu domownikach.
Aktualnie w sprzedaży: 1 takie mieszkanie. Sprawdź »
18. Pięciopokojowe mieszkanie 77,55 m²: salon z aneksem kuchennym i jadalnią, sypialnia dla gości, sypialnia małżeńska, sypialnia dla dziecka, sypialnia dla dziecka, łazienka, WC, przedsionek, ogródek. Wariant idealny dla rodziny, która chce mieć dodatkowy pokój „na różne scenariusze” — osobna sypialnia dla gości może służyć też jako gabinet, pokój hobby albo spokojna przestrzeń dla starszego dziecka. Zaletą jest połączenie dwóch sypialni dziecięcych (łatwiej o prywatność i domową harmonię), osobnej sypialni gościnnej (komfort dla odwiedzających bez reorganizacji salonu) oraz osobnego WC, które usprawnia codzienne funkcjonowanie i zwiększa wygodę podczas spotkań towarzyskich. Ogródek daje naturalne miejsce do odpoczynku i aktywności na świeżym powietrzu tuż przy domu.
Aktualnie w sprzedaży: 1 takie mieszkanie. Sprawdź »
Podsumowanie oferty: w Wzgórzu Gustawa dostępne są mieszkania od kompaktowych 2-pokojowych 34,79–36,09 m² z balkonami lub ogródkiem, przez rodzinne 3-pokojowe 51,41–56,07 m² (z balkonem, tarasem lub ogródkiem), aż po większe 4-pokojowe 59,32–65,17 m² często z dodatkowym WC oraz przestronne 5-pokojowe 77,55 m² dla dużych rodzin, z ogrodami i funkcjonalnym rozdziałem stref domowych.