Wiślany Mokotów VIIISpravia - mieszkania na sprzedaż
Warszawa, Mokotów, Czerniaków, al. Polski Walczącej








Obecnie w sprzedaży. W ofercie pozostaje 7 typów.
1) Dwupokojowe mieszkania — 42,91 m²
Pomieszczenia: salon z jadalnią, sypialnia małżeńska, aneks kuchenny, łazienka, korytarz wejściowy, ogródek, taras. Idealne dla singla lub pary, która ceni sprytnie zaprojektowaną przestrzeń i kontakt z zielenią prywatnego ogródka. Atutem tego układu jest możliwość łatwego wydzielenia osobnej kuchni — aneks można zamknąć lekką ścianką lub przesuwnymi drzwiami, dzięki czemu zapachy pozostają w strefie gotowania, a w salonie panuje porządek. Ogródek i taras tworzą komfortową strefę relaksu na świeżym powietrzu.
2) Dwupokojowe mieszkania — 44,69 m²
Pomieszczenia: salon z jadalnią, sypialnia małżeńska, kuchnia, łazienka, korytarz wejściowy, ogródek, taras. To świetna propozycja dla pary lub singla, którzy lubią gotować i chcą, by kuchnia była odrębną, wygodną strefą pracy. Osobna kuchnia to porządek w części dziennej, mniejszy hałas podczas przygotowywania posiłków i lepsza organizacja przechowywania. Ogródek i taras poszerzają strefę dzienną o prywatną przestrzeń wypoczynkową.
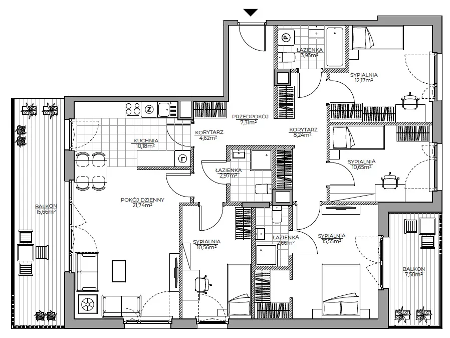
3) Trzypokojowe mieszkania — 65,51 m²
Pomieszczenia: salon z jadalnią, sypialnia małżeńska, sypialnia dla dziecka, kuchnia, łazienka, WC, korytarz wewnętrzny, korytarz wejściowy, balkon. Stworzone z myślą o rodzinie 2+1 lub parze potrzebującej dodatkowego pokoju do pracy. Osobna kuchnia umożliwia swobodne gotowanie bez „wchodzenia” w część wypoczynkową, a osobne WC to wygoda w codziennym grafiku domowników i gości. Balkon dodaje przestrzeni do popołudniowego odpoczynku.
4) Trzypokojowe mieszkania — 65,84 m²
Pomieszczenia: salon z jadalnią, sypialnia małżeńska, sypialnia dla dziecka, kuchnia, łazienka, WC, korytarz wejściowy, ogródek, taras. Idealne dla rodziny z dzieckiem lub pary, która chce mieć dodatkowy pokój. Osobna kuchnia pozwala na pełną organizację kulinarnego zaplecza, a osobne WC skraca poranne kolejki i porządkuje domową logistykę. Ogródek oraz taras dają prywatną strefę rekreacji i miejsce zabaw dla najmłodszych.
5) Czteropokojowe mieszkania — 83,79 m²
Pomieszczenia: salon z jadalnią, sypialnia małżeńska, sypialnia dla dziecka (x2), kuchnia, łazienka, prywatna łazienka, WC, korytarz wejściowy, korytarz prywatny, ogródek, taras (x2). Doskonałe dla rodziny 2+2 lub tych, którzy chcą mieć dodatkowy pokój gościnny czy gabinet. Dwie sypialnie dla dzieci zapewniają każdemu własną przestrzeń. Dwie łazienki, w tym prywatna łazienka przy sypialni głównej, gwarantują komfort porannych i wieczornych rutyn, a osobne WC ułatwia życie przy większej liczbie domowników i gości. Dwa tarasy plus dodatkowo ogródek tworzą wyjątkowo bogatą strefę zewnętrzną do relaksu i spotkań. Osobna kuchnia porządkuje część dzienną i sprzyja gotowaniu bez kompromisów. Prywatna łazienka wzmacnia poczucie intymności strefy master.
6) Pięciopokojowe mieszkania — 108,76 m²
Pomieszczenia: salon z jadalnią, sypialnia małżeńska, sypialnia dla dziecka (x3), kuchnia, łazienka (x2), prywatna łazienka, korytarz wejściowy, korytarz prywatny, korytarz wewnętrzny, ogródek, taras (x2). Propozycja dla dużej rodziny, która potrzebuje wielu sypialni dla dzieci i jasno rozdzielonych stref. Trzy pokoje dziecięce pozwalają dopasować przestrzeń do wieku i potrzeb. Trzy łazienki łącznie (2 ogólnodostępne + prywatna łazienka przy sypialni głównej) eliminują korki o poranku, a dwa tarasy wraz z ogródkiem dają szerokie możliwości spędzania czasu na zewnątrz. Osobna kuchnia sprzyja przygotowywaniu większych posiłków i utrzymaniu ładu w części dziennej. Prywatna łazienka to wygoda i intymność strefy master.
7) Pięciopokojowe mieszkania — 110,58 m²
Pomieszczenia: salon z jadalnią, sypialnia małżeńska, sypialnia dla dziecka (x3), kuchnia, łazienka (x2), prywatna łazienka, korytarz prywatny, korytarz wejściowy, korytarz wewnętrzny, balkon (x2). Idealne dla rodzin potrzebujących maksymalnej liczby sypialni i dopracowanej strefy sanitarnej. Trzy pokoje dla dzieci ułatwiają dopasowanie przestrzeni do różnych aktywności. Trzy łazienki łącznie (w tym prywatna łazienka przy sypialni głównej) zapewniają komfort nawet przy intensywnym grafiku, a dwa balkony poszerzają część dzienną o dwa niezależne miejsca wypoczynku. Osobna kuchnia pozwala gotować wygodnie, bez ingerencji w salon. Prywatna łazienka wzmacnia wygodę strefy master.
Podsumowanie: W ofercie znajdują się funkcjonalne mieszkania od 2 do 5 pokoi, z przewagą układów z osobną kuchnią, opcjami z osobnym WC, wieloma łazienkami (w tym prywatnymi), a także z przestrzeniami zewnętrznymi: ogródkami, tarasami lub balkonami. To zróżnicowany wybór dla singli, par i rodzin o różnych potrzebach w sercu Mokotowa.
Wiślany Mokotów VIII – nowa jakość życia w Warszawie
Inwestycja Wiślany Mokotów VIII, usytuowana przy al. Polski Walczącej w warszawskim Mokotowie (Czerniaków), to doskonałe miejsce dla osób szukających równowagi między miejskim stylem życia a bliskością natury.
Edukacja na wyciągnięcie ręki
W najbliższej okolicy znajdują się żłobek, przedszkole oraz szkoła podstawowa, co umożliwia łatwy dostęp do edukacji na każdym etapie rozwoju dziecka.
Komunikacja – wygodne połączenia z resztą miasta
Doskonała lokalizacja inwestycji zapewnia również łatwy dostęp do komunikacji miejskiej. W pobliżu znajduje się przystanek autobusowy, co pozwala na szybki i bezproblemowy dojazd do centrum Warszawy oraz innych dzielnic.
Obiekty i usługi – wszystko, czego potrzebujesz w zasięgu ręki
W okolicy znajdują się apteka, przychodnia, bankomat, market oraz sklep osiedlowy. Wszystko to sprawia, że codzienne zakupy czy sprawy zdrowotne stają się szybkie i łatwe do załatwienia.
Wiślany Mokotów VIII to miejsce, które spełni oczekiwania osób szukających nowoczesnego, funkcjonalnego i komfortowego miejsca do życia w sercu Warszawy.
Znajdź nieruchomość za granicą
Ulice na Czewrniakowie
Nieruchomości na sprzedaż
Nieruchomości do wynajęcia
Rynek pierwotny