Moko BotanikaHeimstaden Poland - mieszkania na sprzedaż
Warszawa, Mokotów, Służewiec, ul. Bokserska 54, 54A, 54B














Obecnie w sprzedaży. W inwestycji Moko Botanika na Mokotowie dostępnych jest teraz 11 typów mieszkań.
1. Jednopokojowe mieszkanie 32,44 m²: salon z aneksem kuchennym, częścią sypialną i jadalnią, łazienka, przedsionek, balkon. To propozycja idealna dla singla, pary lub jako mieszkanie inwestycyjne pod wynajem — funkcjonalna, spójna przestrzeń dzienna pozwala wygodnie łączyć odpoczynek, pracę i codzienne życie, a balkon daje dodatkowe miejsce na poranną kawę czy rośliny. Przedsionek pomaga utrzymać porządek i oddziela strefę wejściową od części wypoczynkowej.
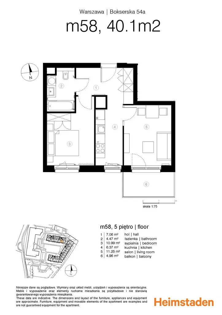
2. Dwupokojowe mieszkanie 39,02 m²: salon z aneksem kuchennym i jadalnią, sypialnia małżeńska, łazienka, przedsionek, balkon. Ten układ świetnie sprawdzi się dla pary lub singla, który chce mieć osobną sypialnię i wygodną strefę dzienną do spotkań czy pracy z domu. Aneks kuchenny pozwala utrzymać rytm życia w jednej, wspólnej przestrzeni, a balkon stanowi praktyczne przedłużenie salonu.
3. Dwupokojowe mieszkanie 39,56–41,30 m²: salon z aneksem kuchennym i jadalnią, sypialnia małżeńska, łazienka, przedsionek, balkon. To uniwersalny wariant dla osób, które cenią kompakt, ale nie chcą rezygnować z wygodnej sypialni oraz wspólnej przestrzeni do gotowania i spędzania czasu. Rozpiętość metrażu daje szansę dopasowania mieszkania do potrzeb — od bardziej „miejskiego” stylu życia po spokojniejszą aranżację z większą ilością przechowywania.
4. Dwupokojowe mieszkanie 41,32 m²: salon z jadalnią, sypialnia małżeńska, kuchnia z jadalnią, łazienka, przedsionek, balkon. To mieszkanie będzie idealne dla osób, które naprawdę gotują i chcą, by kuchnia była osobnym pomieszczeniem — łatwiej wtedy utrzymać porządek w salonie, odseparować zapachy i hałas sprzętów, a także wygodnie urządzić część wypoczynkową bez „kuchennego tła”. Dodatkowa jadalnia w kuchni sprzyja codziennym posiłkom, a salon z jadalnią pozostaje bardziej reprezentacyjny.
5. Dwupokojowe mieszkanie 45,16 m²: salon z jadalnią, sypialnia małżeńska, kuchnia z jadalnią, łazienka, pralnia, przedsionek, balkon. Świetny wybór dla pary lub singla, który chce mieszkać wygodniej „jak w większym metrażu” — osobna kuchnia pozwala oddzielić strefę gotowania od wypoczynku, a osobna pralnia to realny komfort: pralka, suszarka i detergenty nie zabierają miejsca w łazience, łatwiej utrzymać ład i zorganizować przechowywanie. To także rozwiązanie praktyczne, gdy często pierze się sportowe rzeczy lub potrzebuje osobnego miejsca na suszenie.
6. Dwupokojowe mieszkanie 45,96 m²: salon z jadalnią, sypialnia małżeńska, kuchnia z jadalnią, łazienka, pralnia, przedsionek, balkon. Ten typ przypadnie do gustu osobom, które chcą połączyć „domowy” charakter z miejską wygodą — osobna kuchnia daje swobodę w aranżacji salonu i ułatwia organizację gotowania, a wydzielona pralnia porządkuje codzienność i pozwala ograniczyć wizualny chaos w łazience. To także dobry wybór dla tych, którzy cenią praktyczne zaplecze bez rezygnowania z komfortowej strefy dziennej.
7. Dwupokojowe mieszkanie 46,01 m²: salon z aneksem kuchennym i jadalnią, sypialnia małżeńska, kuchnia z jadalnią, łazienka, pralnia, przedsionek, balkon. To propozycja dla osób, które lubią elastyczność i chcą mieć więcej niż jeden scenariusz korzystania z przestrzeni — obecność osobnej kuchni daje możliwość intensywnego gotowania „poza salonem”, a jednocześnie aneks w strefie dziennej może pełnić rolę miejsca do szybkich posiłków, kawy czy dodatkowego blatu roboczego (w zależności od aranżacji). Osobna pralnia podnosi wygodę na co dzień i pozwala lepiej zorganizować przechowywanie.
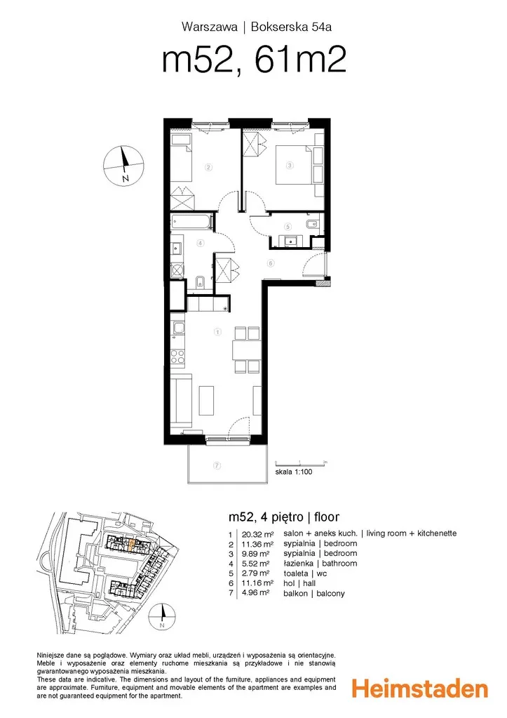
8. Trzypokojowe mieszkanie 62,74–65,70 m²: salon z aneksem kuchennym i jadalnią, sypialnia małżeńska, sypialnia dla dziecka, łazienka, WC, przedsionek, balkon. Idealne dla rodziny z dzieckiem lub dla pary planującej dodatkowy pokój na gabinet — dwie sypialnie zapewniają prywatność, a wspólna strefa dzienna ułatwia codzienne funkcjonowanie. Dużą zaletą jest osobne WC: usprawnia poranki, zwiększa komfort przy gościach i odciąża główną łazienkę, dzięki czemu domowy rytm jest po prostu płynniejszy.
9. Trzypokojowe mieszkanie 62,80 m²: salon z aneksem kuchennym i jadalnią, sypialnia małżeńska, sypialnia dla dziecka, łazienka, WC, przedsionek, balkon. Ten metraż dobrze odpowiada potrzebom osób, które chcą trzech pokoi bez „pustych” metrów — układ sprzyja rodzinnej logistyce, a osobne WC daje wyraźną poprawę komfortu, zwłaszcza gdy domownicy działają w różnych godzinach. To również praktyczny wybór dla tych, którzy często przyjmują znajomych i chcą zachować prywatność łazienki.
10. Trzypokojowe mieszkanie 64,28 m²: salon z jadalnią, sypialnia małżeńska, sypialnia dla dziecka, kuchnia z jadalnią, łazienka, WC, przedsionek, balkon. To świetna opcja dla rodziny, która ceni podział funkcji — osobna kuchnia pozwala gotować w spokoju, bez „wchodzenia” w część wypoczynkową, a przy tym daje miejsce na pełnoprawny stół do codziennych posiłków. Osobne WC znacząco ułatwia życie przy kilku domownikach i sprawia, że mieszkanie jest wygodniejsze podczas wizyt gości.
11. Czteropokojowe mieszkanie 84,70 m²: salon z jadalnią, sypialnia dla gości, sypialnia małżeńska, sypialnia dla dziecka, kuchnia z jadalnią, łazienka, WC, przedsionek, balkon. To propozycja dla rodzin, które chcą mieć przestrzeń na lata albo dla osób pracujących hybrydowo, które potrzebują dodatkowego pokoju. Osobna kuchnia pozwala utrzymać porządek w strefie reprezentacyjnej i wygodnie organizować gotowanie, osobna sypialnia dla gości daje prawdziwą niezależność (może też pełnić funkcję gabinetu lub pokoju hobby), a osobne WC wyraźnie podnosi komfort codzienności i wizyt. Taki układ sprzyja zarówno prywatności domowników, jak i swobodnemu przyjmowaniu bliskich.
Podsumowanie: Aktualna oferta Moko Botanika obejmuje mieszkania od kompaktowych 32,44 m² po rodzinne 84,70 m², z układami od 1 do 4 pokoi. Wyróżniają się zarówno warianty z aneksem, jak i z osobną kuchnią, a w większych metrażach dodatkowy komfort zapewniają rozwiązania takie jak osobne WC oraz wydzielona pralnia.
Inwestycja Moko Botanika, zlokalizowana przy ul. Bokserskiej na warszawskim Mokotowie, znajduje się w dynamicznie rozwijającej się dzielnicy Służewiec. Okolica łączy nowoczesną zabudowę mieszkaniową z intensywnie rozwiniętą infrastrukturą biurową, tworząc przestrzeń sprzyjającą zarówno życiu codziennemu, jak i aktywności zawodowej.
Dostępność komunikacyjna
Osiedle Moko Botanika jest dobrze skomunikowane z innymi częściami miasta. W pobliżu znajdują się przystanki komunikacji miejskiej, takie jak Bokserska 03 i Bokserska 05, zapewniające dostęp do autobusów. Dodatkowo, w odległości około 1,5 km znajduje się stacja kolejowa Warszawa Służewiec, umożliwiająca szybki dojazd do centrum miasta oraz innych dzielnic. Bliskość głównych arterii komunikacyjnych, takich jak ul. Domaniewska czy ul. Marynarska, ułatwia poruszanie się po Warszawie.
Infrastruktura handlowo-usługowa
W bezpośrednim sąsiedztwie inwestycji znajdują się liczne punkty handlowo-usługowe, w tym sklepy spożywcze, apteki, restauracje oraz kawiarnie. W odległości kilku minut spacerem mieści się centrum handlowe Westfield Mokotów, oferujące szeroki wybór sklepów, punktów gastronomicznych oraz rozrywkowych. Dodatkowo, w okolicy znajdują się placówki edukacyjne, takie jak szkoły i przedszkola, co zwiększa komfort życia rodzinnego.
Przestrzeń rekreacyjna
Mimo intensywnej zabudowy biurowej, okolica Moko Botanika oferuje przestrzenie sprzyjające aktywnemu wypoczynkowi. W niedalekiej odległości znajduje się Park Dolinka Służewiecka, idealny do spacerów, biegania czy relaksu na świeżym powietrzu. Dodatkowo, w okolicy dostępne są ścieżki rowerowe, umożliwiające aktywność fizyczną w bliskim sąsiedztwie osiedla.
Lokalizacja Moko Botanika przy ul. Bokserskiej w Warszawie łączy w sobie cechy nowoczesnego osiedla z bogatą infrastrukturą miejską. Dzięki dogodnej komunikacji, bliskości punktów handlowych i usługowych oraz przestrzeniom rekreacyjnym, okolica stanowi atrakcyjne miejsce do życia dla osób ceniących komfort i dostępność miejskich udogodnień.
Znajdź nieruchomość za granicą
Ulice na Służewcu
Nieruchomości na sprzedaż
Nieruchomości do wynajęcia
Rynek pierwotny