Obecnie w sprzedaży. Dostępnych jest 15 typów mieszkań.
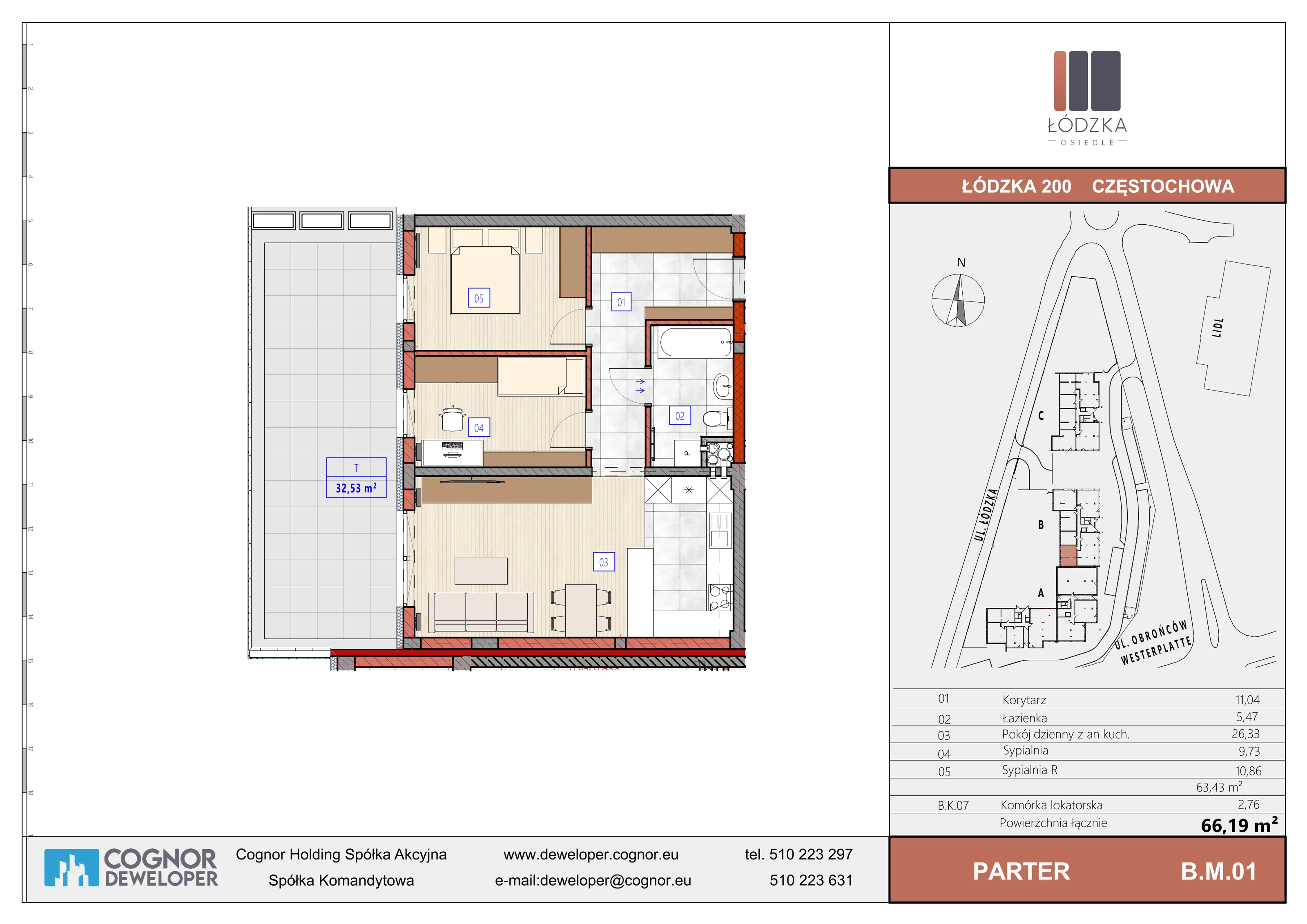
1) Trzypokojowe mieszkania — 62,28–65,15 m²
Salon z aneksem kuchennym i jadalnią, sypialnia małżeńska, sypialnia dla dziecka, łazienka, przedsionek, balkon. Idealne dla pary z jednym dzieckiem lub dla osób planujących powiększenie rodziny. Przemyślany układ sprzyja wygodnej organizacji dnia, a wyraźny podział na strefę dzienną i prywatną ułatwia codzienne życie. Balkon daje dodatkową przestrzeń rekreacyjną, a metraż zapewnia komfort bez nadmiernych kosztów utrzymania.
Aktualnie w sprzedaży: 16 takich mieszkań. Sprawdź »
2) Trzypokojowe mieszkania — 62,43–65,02 m²
Salon z aneksem kuchennym i jadalnią, sypialnia małżeńska, sypialnia dla gości, łazienka, przedsionek, balkon. Idealne dla osób, które często przyjmują rodzinę lub przyjaciół, albo potrzebują elastycznej przestrzeni na gabinet. Osobna sypialnia dla gości to dyskretna strefa noclegowa bez ingerencji w prywatność domowników; równie dobrze sprawdzi się jako pokój do pracy czy hobby. Balkon dopełnia funkcjonalność, oferując miejsce na relaks.
Aktualnie w sprzedaży: 5 takich mieszkań. Sprawdź »
3) Trzypokojowe mieszkania — 62,91–63,31 m²
Salon z aneksem kuchennym i jadalnią, sypialnia dla dziecka, sypialnia małżeńska, łazienka, przedsionek, balkon. Idealne dla młodej rodziny, która oczekuje kompaktowego, ale pełnego komfortu układu. Atutem jest praktyczny przedsionek z miejscem na przechowywanie i przyjazny, rodzinny charakter strefy dziennej. Balkon stanowi naturalne przedłużenie salonu.
Aktualnie w sprzedaży: 2 takie mieszkania. Sprawdź »
4) Trzypokojowe mieszkania — 67,37 m²
Salon z aneksem kuchennym i jadalnią, sypialnia małżeńska, sypialnia dla dziecka, łazienka, WC, przedsionek, balkon. Idealne dla rodziny 2+1 ceniącej wygodę i sprawną logistykę poranka. Osobne WC skraca kolejki w godzinach szczytu i pozwala gościom skorzystać z toalety bez wchodzenia do głównej łazienki, co zwiększa komfort i prywatność.
Aktualnie w sprzedaży: 1 takie mieszkanie. Sprawdź »
5) Trzypokojowe mieszkania — 67,55 m²
Salon z aneksem kuchennym i jadalnią, sypialnia małżeńska, pokój, łazienka, WC, przedsionek, balkon. Idealne dla pary z potrzebą dodatkowego pokoju na dziecko, gabinet lub gości. Osobne WC to codzienna wygoda dla domowników i odwiedzających, a elastyczny pokój pozwala dopasować mieszkanie do zmieniających się potrzeb.
Aktualnie w sprzedaży: 1 takie mieszkanie. Sprawdź »
6) Trzypokojowe mieszkania — 67,59 m²
Salon z aneksem kuchennym i jadalnią, sypialnia małżeńska, sypialnia dla dziecka, łazienka, prywatna garderoba, WC, przedsionek, balkon. Idealne dla pary lub rodziny 2+1, która ceni porządek i wygodę przechowywania. Osobne WC podnosi komfort użytkowania, a prywatna garderoba pozwala trzymać ubrania, walizki i dodatki w jednym, uporządkowanym miejscu, uwalniając sypialnię od nadmiaru mebli.
Aktualnie w sprzedaży: 1 takie mieszkanie. Sprawdź »
7) Trzypokojowe mieszkania — 67,59–67,71 m²
Salon z aneksem kuchennym i jadalnią, sypialnia małżeńska, sypialnia dla dziecka, łazienka, garderoba na odzież wierzchnią, WC, przedsionek, balkon. Idealne dla rodzin ceniących praktyczne rozwiązania na co dzień. Osobne WC ułatwia poranne przygotowania, a garderoba na odzież wierzchnią w strefie wejścia pomaga utrzymać porządek, zapewniając wygodne miejsce na kurtki, buty i akcesoria.
Aktualnie w sprzedaży: 2 takie mieszkania. Sprawdź »
8) Trzypokojowe mieszkania — 67,84 m²
Salon z aneksem kuchennym i jadalnią, sypialnia małżeńska, sypialnia dla gości, łazienka, WC, przedsionek, balkon. Idealne dla osób żyjących towarzysko lub pracujących hybrydowo, które chcą połączyć pokój gościnny z funkcją gabinetu. Osobna sypialnia dla gości zwiększa prywatność domowników, a osobne WC zapewnia swobodę korzystania wszystkim użytkownikom.
Aktualnie w sprzedaży: 1 takie mieszkanie. Sprawdź »
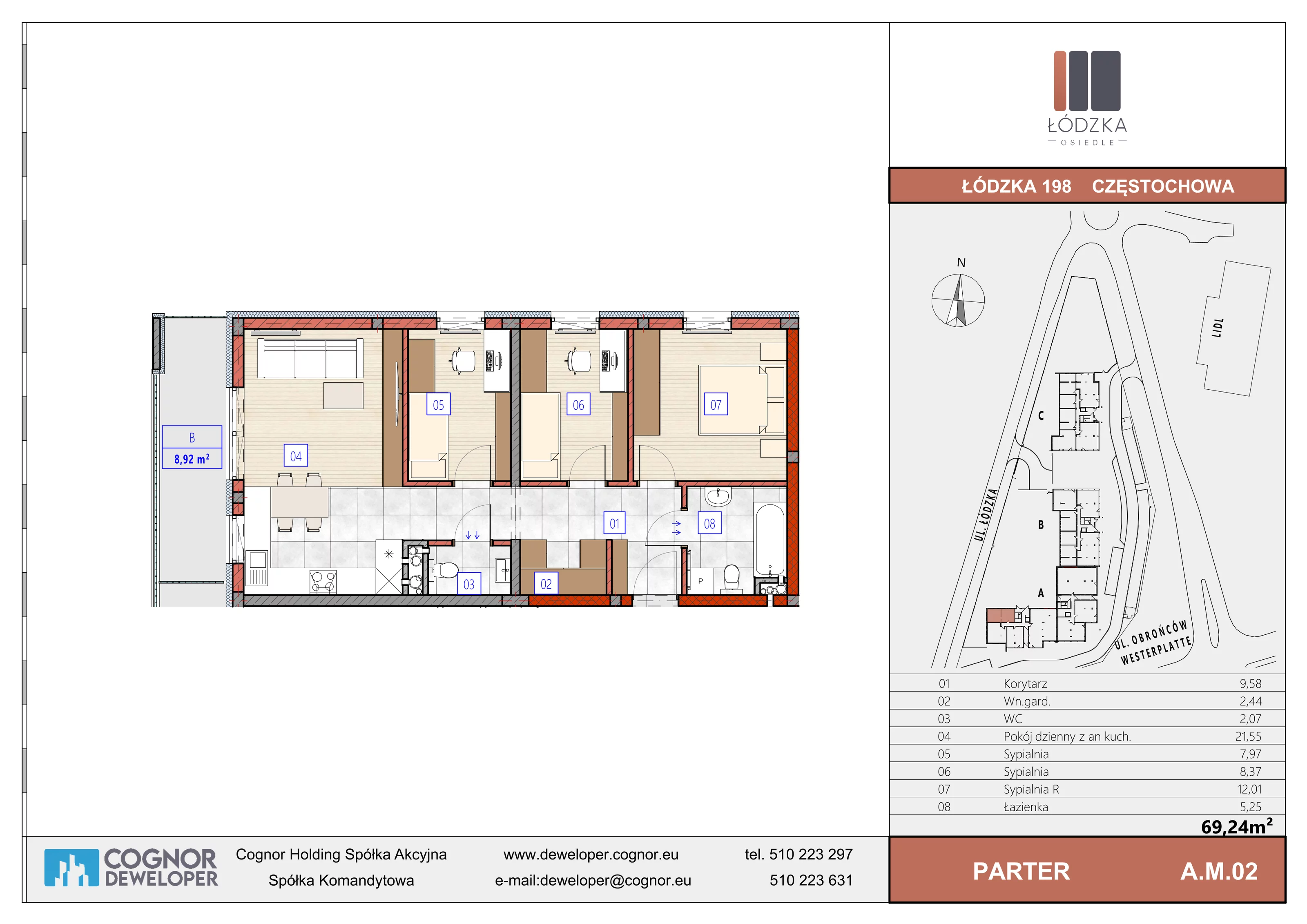
9) Czteropokojowe mieszkania — 69,24–69,44 m²
Salon z aneksem kuchennym i jadalnią, sypialnia małżeńska, sypialnia dla dziecka, sypialnia dla dziecka, łazienka, garderoba na odzież wierzchnią, WC, przedsionek, dwa balkony. Idealne dla rodziny 2+2, która potrzebuje trzech sypialni i ceni wygodę codziennego funkcjonowania. Dwie sypialnie dla dzieci pozwalają każdemu z nich mieć własną przestrzeń; dwa balkony to więcej miejsca na odpoczynek na świeżym powietrzu; osobne WC porządkuje poranne rytuały; garderoba przy wejściu usprawnia przechowywanie kurtek i obuwia.
Aktualnie w sprzedaży: 2 takie mieszkania. Sprawdź »
10) Czteropokojowe mieszkania — 69,24 m²
Salon z aneksem kuchennym i jadalnią, sypialnia małżeńska, sypialnia dla dziecka, sypialnia dla dziecka, prywatna łazienka, garderoba na odzież wierzchnią, WC, przedsionek, balkon. Idealne dla rodzin, które chcą połączyć kompaktowy metraż z wygodami klasy premium. Dwie sypialnie dla dzieci zapewniają komfort i spokój, osobne WC usprawnia codzienność, a prywatna łazienka przy sypialni rodziców daje intymność i niezależność. Garderoba wejściowa pomaga utrzymać ład.
Aktualnie w sprzedaży: 1 takie mieszkanie. Sprawdź »
11) Czteropokojowe mieszkania — 69,52–81,05 m²
Salon z aneksem kuchennym i jadalnią, sypialnia małżeńska, sypialnia dla dziecka, sypialnia dla dziecka, WC, łazienka, przedsionek. Idealne dla rodzin 2+2 lub 2+1, które chcą mieć dodatkowy pokój do nauki lub pracy. Dwie sypialnie dla dzieci dają przestrzeń do odpoczynku i nauki, a osobne WC zwiększa wygodę domowników i gości. Różnorodność metraży pozwala dopasować mieszkanie do budżetu i oczekiwań.
Aktualnie w sprzedaży: 7 takich mieszkań. Sprawdź »
12) Czteropokojowe mieszkania — 69,60–80,89 m²
Salon z aneksem kuchennym i jadalnią, sypialnia małżeńska, sypialnia dla dziecka, sypialnia dla gości, WC, łazienka, przedsionek, balkon. Idealne dla rodzin, które często goszczą bliskich lub chcą wydzielić komfortowy gabinet. Osobna sypialnia dla gości zapewnia dyskrecję i elastyczność aranżacji, a osobne WC podnosi komfort wspólnego mieszkania. Balkon pozwala stworzyć strefę relaksu na zewnątrz.
Aktualnie w sprzedaży: 1 takie mieszkanie. Sprawdź »
13) Czteropokojowe mieszkania — 80,57 m²
Salon z aneksem kuchennym i jadalnią, sypialnia małżeńska, sypialnia dla dziecka, sypialnia dla dziecka, pomieszczenie gospodarcze, łazienka, przedsionek, balkon. Idealne dla rodzin 2+2, które potrzebują dodatkowych miejsc do przechowywania. Dwie sypialnie dla dzieci ułatwiają organizację życia rodzinnego, a pomieszczenie gospodarcze pomaga ukryć sprzęty i utrzymać porządek w części dziennej.
Aktualnie w sprzedaży: 1 takie mieszkanie. Sprawdź »
14) Czteropokojowe mieszkania — 80,79 m²
Salon z aneksem kuchennym i jadalnią, sypialnia małżeńska, sypialnia dla dziecka, sypialnia dla dziecka, WC, łazienka, przedsionek, balkon. Idealne dla rodzin potrzebujących trzech niezależnych sypialni przy jednoczesnym komforcie wspólnego funkcjonowania. Dwie sypialnie dla dzieci zapewniają spokój i prywatność, a osobne WC ułatwia poranne i wieczorne rytuały.
Aktualnie w sprzedaży: 1 takie mieszkanie. Sprawdź »
15) Czteropokojowe mieszkania — 84,56–84,90 m²
Salon z aneksem kuchennym i jadalnią, sypialnia małżeńska, sypialnia dla dziecka, sypialnia dla dziecka, łazienka, WC, pralnia, przedsionek, balkon. Idealne dla wymagających rodzin 2+2, które oczekują przestrzeni i rozwiązań pro-rodzinnych. Dwie sypialnie dla dzieci zwiększają wygodę codziennego funkcjonowania, osobne WC podnosi komfort, a osobna pralnia porządkuje sprawy domowe, pozwalając trzymać pralkę i suszarkę poza strefą dzienną.
Aktualnie w sprzedaży: 3 takie mieszkania. Sprawdź »
Podsumowanie: W ofercie Łódzka Osiedle na Częstochówce-Parkitce dostępny jest szeroki wybór 3- i 4‑pokojowych mieszkań o metrażach od ok. 62 do 85 m², z rozwiązaniami takimi jak dodatkowe WC, garderoby, pralnie oraz mieszkania z pokojem gościnnym i licznymi balkonami. Każdy znajdzie tu układ dopasowany do stylu życia — od par przez młode rodziny po wymagających domowników ceniących funkcjonalność.