
ATAL S.A.
od 9 469 zł /m²
Kowale, ul. Apollina
2 - 4 pok.
33,80 – 92,43 m²
581 080 – 833 244 zł
10 153 – 12 912 zł /m²






Liczba pokoi:
2 - 3 pok.
Powierzchnia:
47,79 – 76,40 m²
Dostępne piętra:
parter - 4 piętro
Wys. mieszkania:
2,62 m
Termin oddania:
gotowe do odbioru

Dzięki naszym funkcjonalnościom:
Przy osiedlu przystanek komunikacji miejskiej - 150 m
W okolicy osiedla park - 700 m
Winda w budynku
Plac zabaw na osiedlu
Pod budynkiem znajduje się garaż wielostanowiskowy
Prywatne ogródki na parterze
Gotowe do zamieszkania
Garaż
parking naziemny, parking podziemny
Powierzchnie zewnętrzne
balkon, ogródek, taras
Powierzchnie dodatkowe
komórka lokatorska
Winda
tak
Budynek
wózkarnia
Teren
plac zabaw
Dostępna liczba ofert
11
Obecnie w sprzedaży. Pozostaje 5 typów.
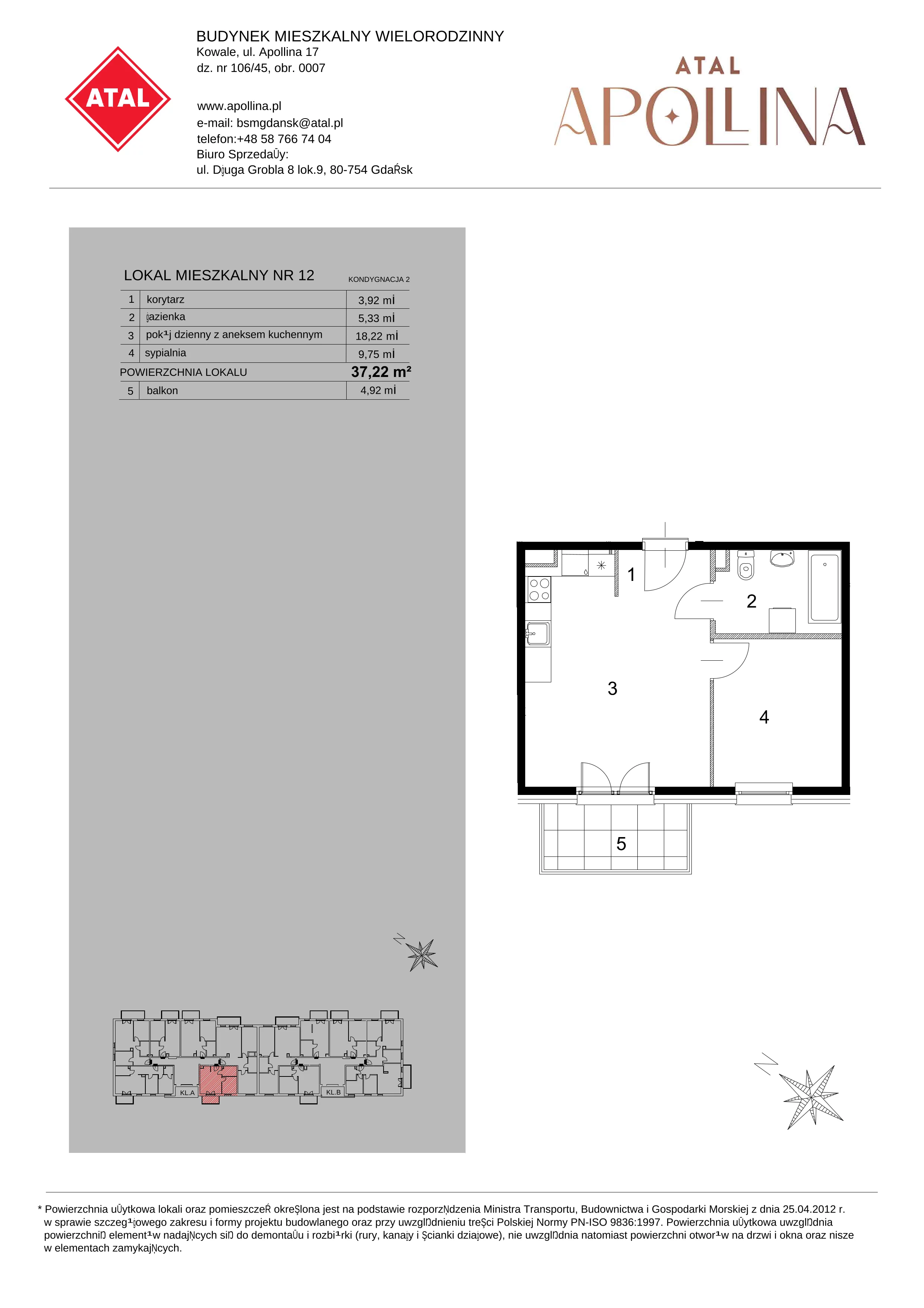
1. Salon z aneksem kuchennym i jadalnią, sypialnia małżeńska, łazienka, korytarz wejściowy, balkon. Dwupokojowe mieszkanie — 47,79 m² to propozycja idealna dla singla, pary lub jako wygodna inwestycja pod wynajem. Przemyślany układ sprzyja codziennemu komfortowi: strefa dzienna z miejscem na duży stół, przytulna sypialnia z przestrzenią na szafę oraz funkcjonalny korytarz, który ułatwia przechowywanie niezbędników. Balkon zapewnia dodatkową przestrzeń na poranną kawę czy rośliny, a kompaktowy metraż pozwala łatwo zapanować nad domowymi obowiązkami.
Aktualnie w sprzedaży: 1 takie mieszkanie. Sprawdź »
2. Salon z aneksem kuchennym i jadalnią, sypialnia małżeńska, sypialnia dla dziecka, łazienka, korytarz wejściowy, balkon. Trzypokojowe mieszkania — 55,70–73,71 m² są stworzone dla młodej rodziny, pary planującej powiększenie rodziny lub osób potrzebujących dodatkowego pokoju do pracy. Rozpiętość metraży pozwala dobrać przestrzeń do własnych potrzeb, a czytelny podział na strefę dzienną i nocną ułatwia organizację życia domowego. Balkon świetnie dopełnia salon, w pokoju dziecka wygodnie zaaranżujesz strefę nauki i zabawy, a korytarz pomieści pojemną zabudowę.
Aktualnie w sprzedaży: 2 takie mieszkania. Sprawdź »
3. Salon z aneksem kuchennym i jadalnią, sypialnia małżeńska, sypialnia dla dziecka, łazienka, prywatna garderoba, korytarz wejściowy, balkon. Trzypokojowe mieszkanie — 58,32–58,65 m² to znakomity wybór dla osób ceniących porządek i ergonomię, zwłaszcza pary z dzieckiem lub pracujących hybrydowo. Ogromną zaletą jest prywatna garderoba: pozwala przenieść przechowywanie ubrań i akcesoriów do osobnego pomieszczenia, dzięki czemu sypialnie pozostają lżejsze w aranżacji i bardziej komfortowe. Ułatwia rotację sezonową, skraca poranne szykowanie się i sprzyja utrzymaniu ładu bez konieczności stawiania dodatkowych szaf w pokojach. Balkon i wygodny korytarz dopełniają funkcjonalność układu.
Aktualnie w sprzedaży: 1 takie mieszkanie. Sprawdź »
4. Salon z aneksem kuchennym i jadalnią, sypialnia małżeńska, sypialnia dla dzieci, łazienka, korytarz wejściowy, ogródek, ogródek, taras. Trzypokojowe mieszkanie — 73,54–75,05 m² to idealna propozycja dla rodzin z dziećmi, miłośników zieleni i osób ceniących życie blisko natury. Atut w postaci dwóch ogródków oraz dodatkowego tarasu daje rzadko spotykaną swobodę aranżacji zewnętrznych stref: jeden ogródek może stać się miejscem zabaw i aktywności, drugi — kameralnym zakątkiem relaksu lub małym warzywnikiem, a taras wygodną jadalnią na świeżym powietrzu. Taki układ ułatwia rozdzielenie funkcji, podnosi prywatność i sprawia, że plenerowe spotkania, praca z laptopem czy poranny trening mają swoje dedykowane miejsce.
Aktualnie w sprzedaży: 1 takie mieszkanie. Sprawdź »
5. Salon z aneksem kuchennym i jadalnią, sypialnia małżeńska, sypialnia dla dzieci, łazienka, korytarz wejściowy, balkon. Trzypokojowe mieszkania — 74,67–76,40 m² sprawdzą się u rodzin potrzebujących przestronnych pokoi i wygodnego zaplecza do przechowywania. Metraż pozwala na pełnowymiarową strefę dzienną z dużym stołem, ustawne sypialnie oraz pojemny korytarz, a balkon tworzy naturalne przedłużenie salonu na świeżym powietrzu. To funkcjonalna, przewidywalna baza do długofalowego życia rodzinnego i rozbudowy wyposażenia bez kompromisów.
Aktualnie w sprzedaży: 6 takich mieszkań. Sprawdź »
Podsumowanie: oferta obejmuje pięć dopracowanych typów mieszkań — od kompaktowych dwupokojowych, przez elastyczne trzypokojowe, po przestrzenie z prywatną garderobą lub rozbudowaną strefą zewnętrzną z dwoma ogródkami i tarasem — tak, aby dopasować dom do różnych stylów życia i planów na przyszłość.
Zapoznaj się z aktualną ofertą mieszkań w inwestycji ATAL Apollina w Kowalach koło Gdańska i skorzystaj z możliwości indywidualnych negocjacji ceny. Nowoczesne osiedle przy ul. Apollina oferuje funkcjonalne układy mieszkań oraz komfortową przestrzeń do życia. Dodatkowym udogodnieniem jest harmonogram płatności 10/90, który ułatwia planowanie zakupu. Ceny mieszkań zaczynają się już od 9 100 zł/m².
Osiedle ATAL Apollina to kameralna inwestycja zlokalizowana w spokojnej części Kowal, oferująca harmonijne połączenie bliskości natury i miejskich udogodnień.
Projekt osiedla został starannie zaprojektowany z myślą o komforcie przyszłych mieszkańców. Pięciokondygnacyjny budynek mieści 60 mieszkań o powierzchni od 31 do 76 m², co zapewnia różnorodne możliwości wyboru. Na terenie inwestycji znajdą się także komórki lokatorskie, hala garażowa oraz pomieszczenia wspólne, takie jak wózkarnie. Inwestycja jest w pełni dostosowana do potrzeb osób z niepełnosprawnościami, dzięki zastosowaniu bezprogowych wejść i wind, co eliminuje bariery architektoniczne, zapewniając wygodę wszystkim mieszkańcom.
Bliskość placówek edukacyjnych, przedszkoli, szkół, a także centrum handlowego oraz przystanków komunikacji miejskiej sprawia, że codzienne życie stanie się bardziej komfortowe. Dogodne położenie przy drodze ekspresowej S7 ułatwia szybki dojazd do pozostałych części Trójmiasta i dalszych regionów.
Kowale to idealna lokalizacja zarówno dla tych, którzy cenią miejskie życie, jak i dla miłośników przyrody. W ciągu 30 minut można dotrzeć do zabytkowego centrum Gdańska, spacerować nad Motławą, czy wypocząć na plaży w Brzeźnie. Dla osób poszukujących relaksu na łonie natury w pobliżu znajduje się Wąwóz Potoku Kowalskiego, a dla entuzjastów aktywnego wypoczynku - Rezerwat „Bursztynowa Góra”, oferujący doskonałe warunki do spacerów i wycieczek rowerowych.
ATAL Apollina to idealne miejsce dla tych, którzy pragną ciszy i spokoju w otoczeniu zieleni, jednocześnie nie rezygnując z wygody oferowanej przez bliskość miasta.
Apollina – idealne miejsce do życia
Inwestycja Apollina, zlokalizowana w Kowalach przy ulicy Apollina, to nowoczesne osiedle stworzone z myślą o komforcie mieszkańców.
Edukacja na wyciągnięcie ręki
W niedalekiej odległości od inwestycji znajdują się zarówno przedszkole, jak i szkoła podstawowa. Dzięki temu codzienne obowiązki, takie jak odprowadzanie dzieci do placówek, stają się o wiele łatwiejsze i szybsze.
Komunikacja i pełen dostęp do usług
Osiedle Apollina jest doskonale skomunikowane z resztą miasta. W odległości kilku minut spacerem znajduje się przystanek autobusowy, który zapewnia szybki i wygodny dojazd do centrum Gdańska oraz innych ważnych miejsc w regionie. W pobliżu osiedla mieszkańcy mają dostęp do pełnej gamy usług, takich jak: apteka, przychodnia, centrum handlowe, bankomat, market, sklep osiedlowy.
Rozrywka i rekreacja
W pobliżu inwestycji znajduje się las, idealny do spacerów i obcowania z naturą. Mieszkańcy mogą również korzystać z pobliskiego klubu fitness, gdzie można skorzystać z różnych form aktywności fizycznej.
Apollina to idealne miejsce dla osób, które szukają połączenia nowoczesnego stylu życia z bliskością natury oraz łatwym dostępem do kluczowych usług.
Zakończenie budowy inwestycji ATAL Apollina planowane jest na: gotowe do odbioru.
Najtańsze mieszkanie w inwestycji kosztuje 581 080 zł (2 pokoje, 47,79 m²), a najdroższe kosztuje 833 244 zł (3 pokoje 76,40 m²).
Średnia cena za 1 m² mieszkania w inwestycji wynosi 10 755 zł/m².
W inwestycji ATAL Apollina dostępne są następujące mieszkania: - dwupokojowe (1) - trzypokojowe (10)
W inwestycji ATAL Apollina dostępne są mieszkania o powierzchni od 47,79 m² do 76,40 m²
W inwestycji ATAL Apollina dostępnych jest: 10 mieszkań z balkonem, 1 mieszkanie z tarasem, 2 mieszkania z ogródkiem
Komunikacja (przystanki, stacje):
W inwestycji ATAL Apollina przewidziano udogodnienia takie jak:
Znajdź nieruchomość za granicą
Nieruchomości na sprzedaż
Nieruchomości do wynajęcia
Rynek pierwotny
Poniedziałek: 10.00-18.00
Wtorek-Piątek: 8.00-16.00