Na sprzedaż - budynek biurowo-magazynowy | Michałowice.LokalizacjaAtrakcyjna działka z zabudową położona w gminie Michałowice - tuż przy Alei Jerozolimskich (trasa 719), doskonały dojazd do Warszawy.
Otoczenie stanowią domy jednorodzinne oraz budynki usługowe. Stacja WKD Michałowice znajduje się w odległości ok 500 m. od nieruchomości.
Działka
Zgodnie z MPZP działka znajduje się na terenie przeznaczonym pod zabudowę jednorodzinną i usługi oznaczonym na rysunku planu symbolem a1.4 MN/U.
Działka ma regularny kształt zbliżony do prostokąta. Teren jest równy.
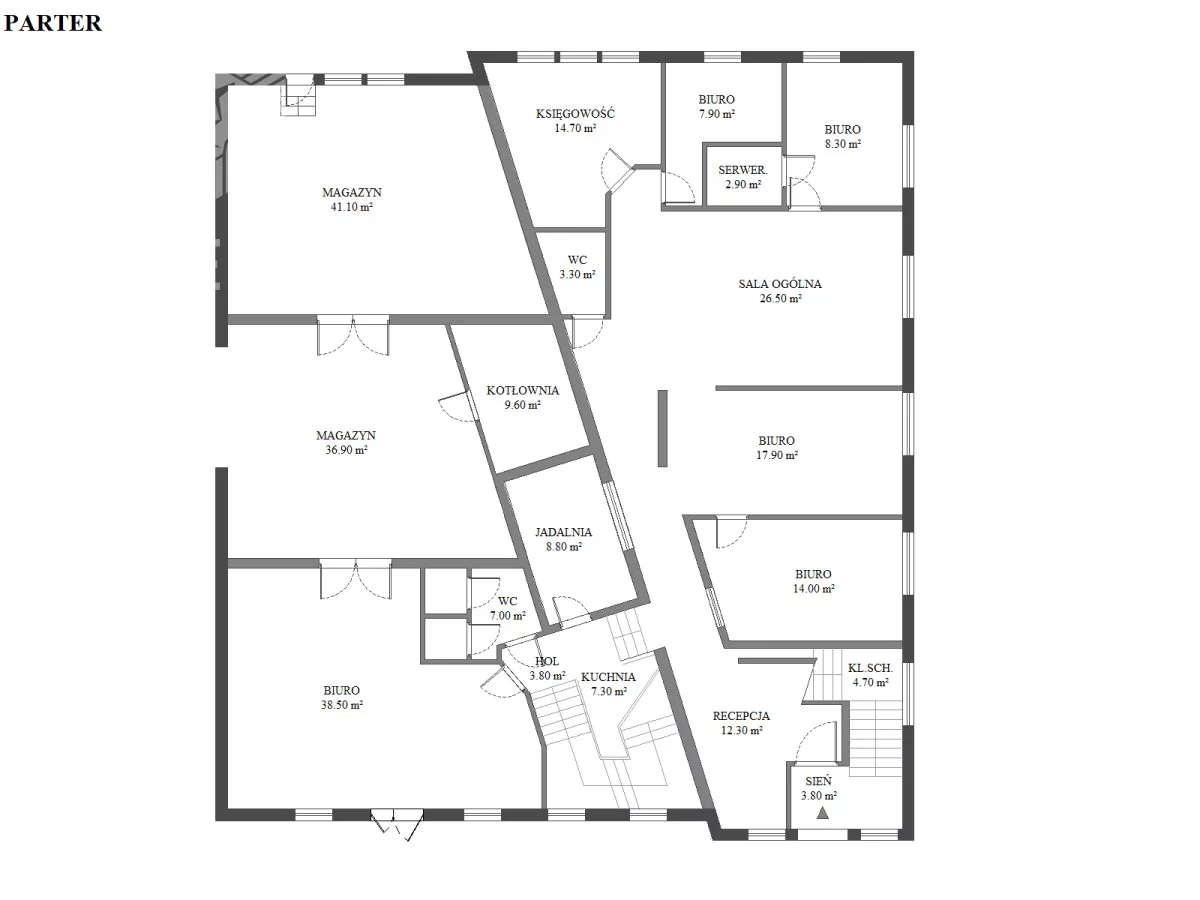
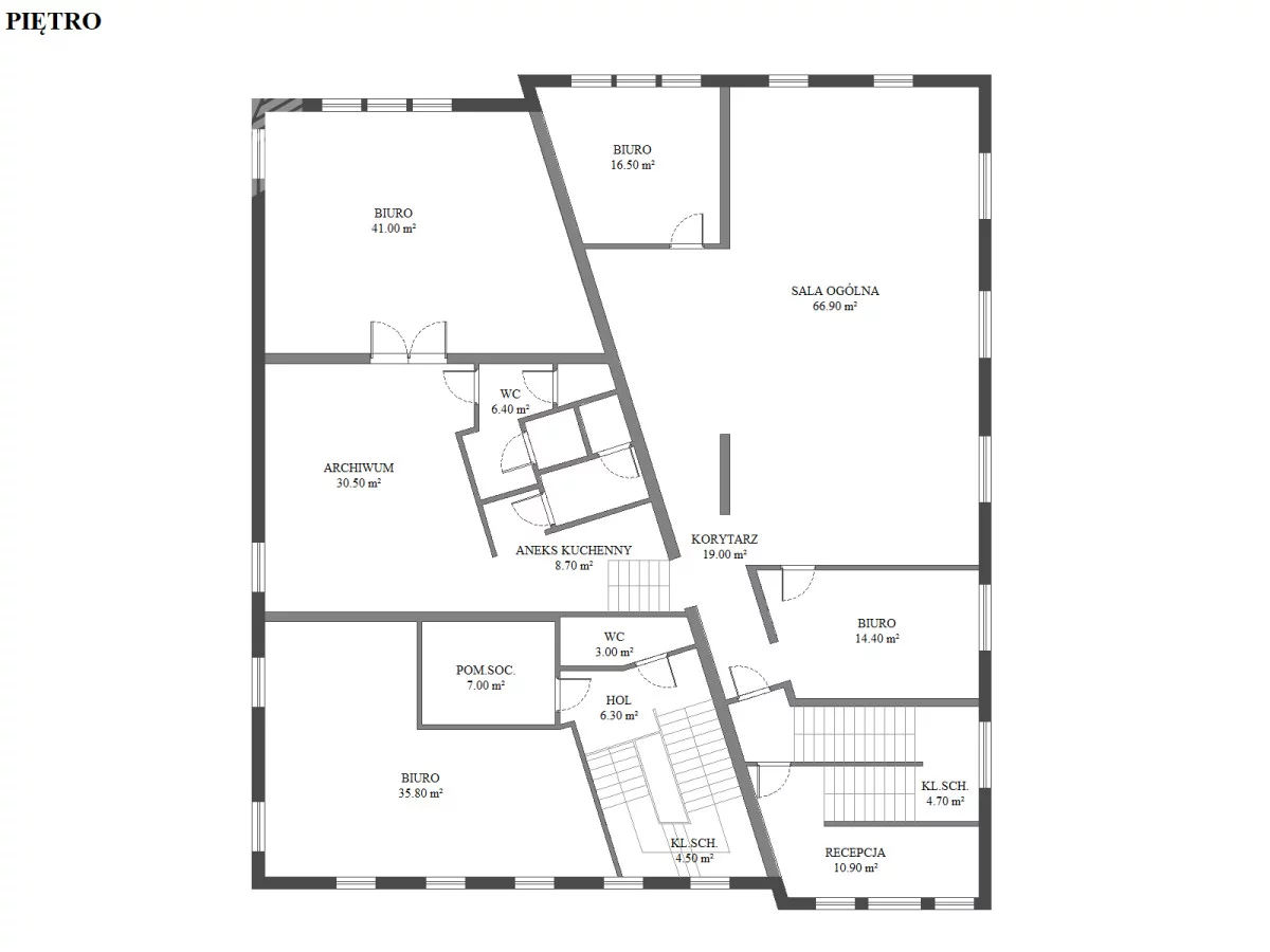
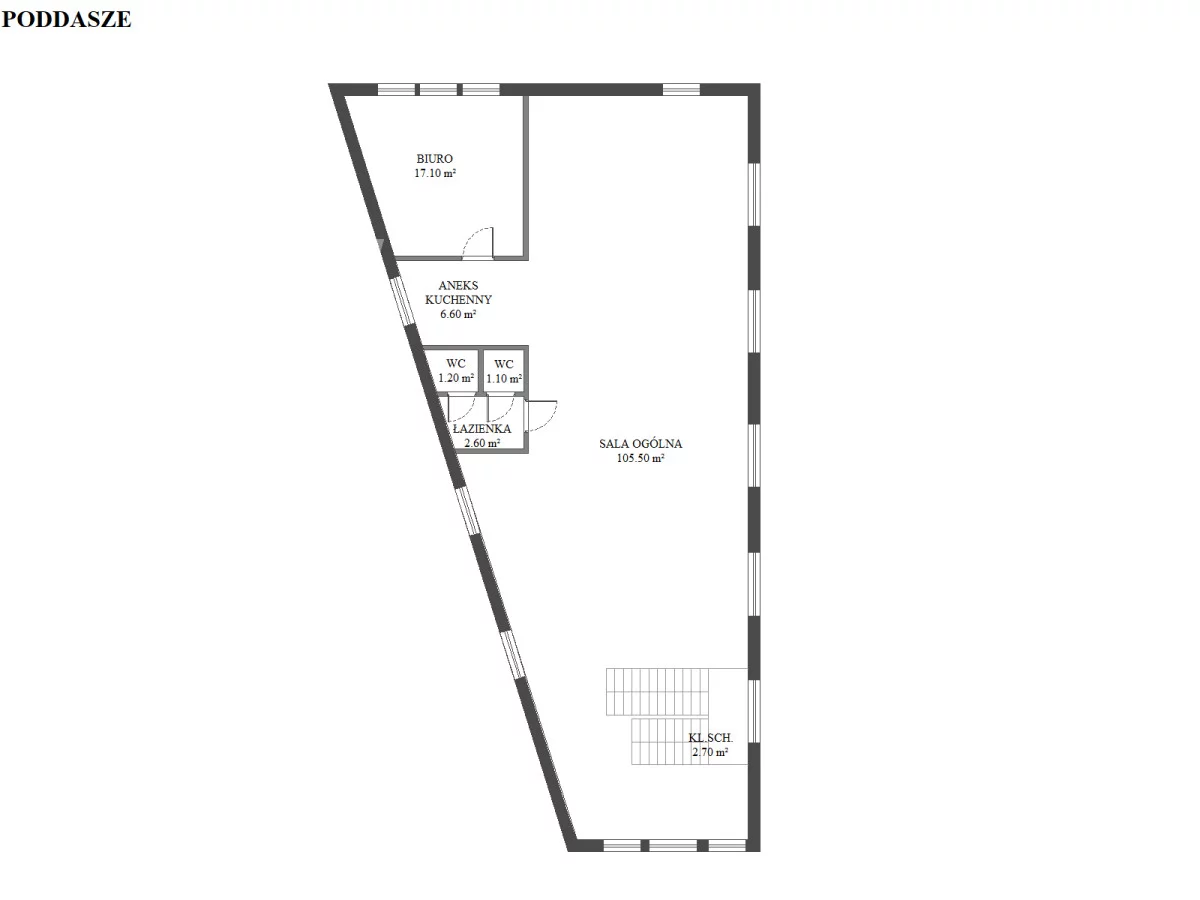
Opis budynkuNa działce znajduje się wolnostojący budynek biurowo-magazynowy o zmiennej wysokości wybudowany w 2009 roku.
Budynek składa się z trzech części:
- część parterowa mieszcząca magazyn
- część o dwóch kondygnacjach nadziemnych, w których znajdują się dwa pomieszczenia magazynowe oraz pomieszczenia biurowe
- część o dwóch kondygnacjach nadziemnych i poddaszu użytkowym mieszcząca pomieszczenia biurowe
Całkowita powierzchnia użytkowa budynku ( z częścią magazynową) wynosi 1085 m2.
Dodatkowo na działce znajduje się budynek magazynowy o powierzchni 352 m2 o ścianach z blachy i brezentowym dachu.
Efektywna powierzchnia stanowiąca bezpośredni przedmiot wynajmu wynosi:
- powierzchnia biurowa: 696,2 m2
- powierzchnia magazynowa: 624,3 m2
Stan techniczny budynku jest bardzo dobry. Budynek poddawany jest regularnym remontom i przeglądom technicznym.
Idealna propozycja dla inwestorów i firm szukających siedziby z częścią magazynową w pobliżu Warszawy!Zapraszam na prezentację!Zapraszamy do zapoznania się z ofertą nieruchomości na sprzedaż.Jeśli jednak szukasz czegoś innego, sprawdź, czy nie mamy takiej nieruchomości na sprzedaż w naszej ofercie. Współpracujemy z wieloma biurami nieruchomości i agencjami, dzięki czemu nasi doradcy mogą zaoferować naprawdę wiele propozycji ofert na sprzedaż, także ma dostęp do ofert nieruchomości jeszcze nie wystawionych na rynku. Skontaktuj się z doradcą wskazanym przy ofercie i zapytaj o szczegóły!
A może chcesz sprzedać podobną nieruchomość i szukasz warunków do porównania? Skontaktuj się z naszym doradcą wskazanym przy ofercie, który pomoże w przygotowaniu najlepszej strategii sprzedaży Twojej nieruchomości.
----
Chcesz kupić, sprzedać lub wynająć nieruchomość? W ramach świadczonej usługi proponujemy aktywny marketing, dzięki czemu nieruchomości szybciej się sprzedają lub wynajmują. Dla domów i mieszkań przygotowujemy profesjonalną oprawę wizualną w tym home staging, sesje fotograficzne, wykonujemy rzuty i plany. Oferty publikujemy na większości portali internetowych, w systemach MLS, na nieruchomościach umieszczamy banery, przygotowujemy i dystrybuujemy informacje drukowane, organizujemy akcje typu "Dzień Otwarty".
Jako profesjonaliści możemy wspierać naszych Klientów w całym procesie sprzedaży / zakupu / wynajmu nieruchomości - także pomagając w negocjacjach czy doradzając szczegółowe zapisy w umowach, dbając o zabezpieczenie ich interesów.
Potrzebujesz agenta lub chcesz uzyskać więcej informacji? Skontaktuj się z doradcą wskazanym przy ofercie!