Mieszkanie znajduje się w miejscowości Aleksandrowice w rejonie Tenczyńskiego Parku Krajobrazowego Istnieje możliwość wykończenia pod klucz.
W pobliżu przystanek autobusowy, szkoła podstawowa, sklepy spożywcze, ośrodek zdrowia, dom kultury oraz duży plac zabaw. W sąsiedztwie Dolina Aleksandrowicka z licznymi ścieżkami spacerowymi oraz rowerowymi.
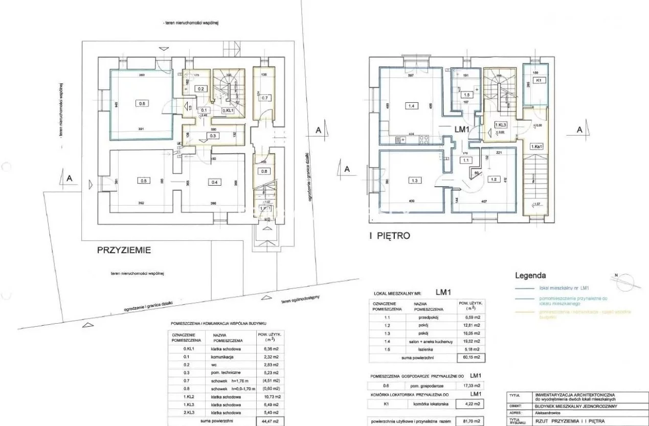
Mieszkanie znajduję się na I piętrze i składa się z :
- Przedpokoju: 6,59 m2
- Pokój: 12,81 m2
- Pokój: 16,05 m2
- Salon + aneks kuchenny: 19,52 m2
- Łazienka: 5,18 m2
- Komórka lokatorska : 4,22 m2
Przyziemie
- Pom. gospodarcze : 17,33 m2
Łączna powierzchnia: 81,70 m2
Pomieszczenia i Komunikacja Wspólna Budynku :
- Kl. Schodowa: 6,36 m2 , Komunikacja: 2,32 m2 , WC: 2,83 m2 , Pomieszczenie techniczne: 5,23 m2 , Schowek: 4,51 m2 , Schowek : 0,60 m2 , Kl. Schodowa: 10,73, Kl. Schodowa: 6,49 m2, Kl. Schodowa: 6, 40 m2
Łączna powierzchnia: 44,47 m2
Możliwość zakupu ogródka do każdego z mieszkań !
Ogrzewanie i ciepła woda z pieca gazowego dwu-funkcyjnego.
Dom po generalnym remoncie, wykonano następujące prace:
- nowy przyłącz elektryczny,
- nowy przyłącz gazowy,
- nowy przyłącz wod-kan,
- nowa więźba dachowa,
- nowa izolacja poddasza,
- nowe pokrycie dachowe,
- nowa stolarka okienna,
- nowe balustrady ze stali nierdzewnej,
- nowa stolarka drzwi wejściowych,
- nowe izolacje podłogowe,
- nowe wylewki,
- nowe tynki wewnętrzne,
- nowe instalacje elektryczne,
- nowe instalacje hydrauliczne,
- nowa instalacja gazowa,
- nowe wentylacje,
- nowa docieplenie elewacji wraz z tynkiem zewnętrznym,
- nowa hydroizolacja ścian fundamentowych wraz z drenażem opaskowym,
- nowa opaska z kostki brukowej wraz ze schodami zewnętrznymi,
- nowa brama automatyczna przesuwna,
- nowe ogrodzenie,
- nowe miejsca postojowe z kostki brukowej,
Istnieje możliwość dokupienia reszty działki, na której stoi Budynek gospodarczy, do własnej aranżacji.
Biuro pomaga w bezpiecznym przeprowadzeniu transakcji.
Serdecznie zapraszam na prezentację.
Grzesiek Zębala
tel. +48 796 541 485
::DODATKOWE INFORMACJE
Rodzaj budynku: dom wolnostojący
Gaz: jest
Woda: jest
Dojazd: asfalt
Otoczenie: zabudowa jednorodzinna
Ogrzewanie: centralne
Komunikacja publ.: bus, autobus
Odległość do komunikacji publicznej [m]: 200
Odl. do sklepu [m]: 300
Odl. do szkoły [m]: 500
Odl. do przedszkola [m]: 500
Rozkład: rozkładowe
Usytuowanie: trójstronne
Drzwi antywłamaniowe: TAK
Teren ogrodzony: TAK
Opłaty wg liczników: woda, prąd, gaz
Rodzaj mieszkania: jednopoziomowe
Garaż: miejsce parkingowe przy budynku
Piwnica [m2]: 17,3300
Stan lokalu: deweloperski
Okna: PCV
Instalacje: nowe
Balkon: Barierka
Liczba balkonów: 2
Wymiary działki [m]: 21/23
Zagosp. działki: częściowo zagospodarowana
Ukształtowanie działki: płaska
Kształt działki: kwadrat
Pokrycie dachu: dachówka
Powierzchnia użytkowa [m2]: 81,7000
Stan budynku: do wykończenia
Podpiwniczenie: częściowo podpiwniczony
Garaż: w poziomie parteru
Rok budowy: 2023
Liczba pokoi: 3
Wysokość pomieszczeń [m]: 2,8000
Liczba sypialni: 2
Powierzchnia pokoi [m2]: 12,81 m2 16,05 m2 19,52 m2
Podłogi pokoi: wylewka
Ściany pokoi: tynk
Wystawa okien - pokoje : Pn, Pd, Wsch, Zach
Typ kuchni: aneks kuchenny - połączony z salonem
Rodzaj kuchni: bez zabudowy
Podłoga kuchni: wylewka
Typ łazienki: razem z wc
Liczba łazienek: 1
Glazura łazienki: bez glazury
Podłoga łazienki: wylewka
Ściany łazienki: tynk
::LINK DO STRONY
https://sadurscy.pl/offer/BS5-MS-301769
::KONTAKT DO AGENTA
Grzegorz Zębala
+48 796-541-485
Zapytaj o ofertę
::DANE BIURA
Oddział BS5, Nowa Huta
Bracia Sadurscy Dariusz Sadurski
Os. Kazimierzowskie 36
31-844 Kraków
12 265 10 29
Pośrednik odpowiedzialny zawodowo za wykonanie umowy pośrednictwa: Dariusz Sadurski (licencja nr: 803)