Apartament 67 m2, z tarasem około 7 m2 w stanie deweloperskim w budynku z 2025 roku - ekskluzywna inwestycja dla wymagających - barka PCC !
Stan deweloperski daje nowym właścicielom wolność w aranżacji wnętrza według własnych potrzeb i gustu, jest możliwość skorzystania z profesjonalnego gotowego projektu architekta wnętrz.
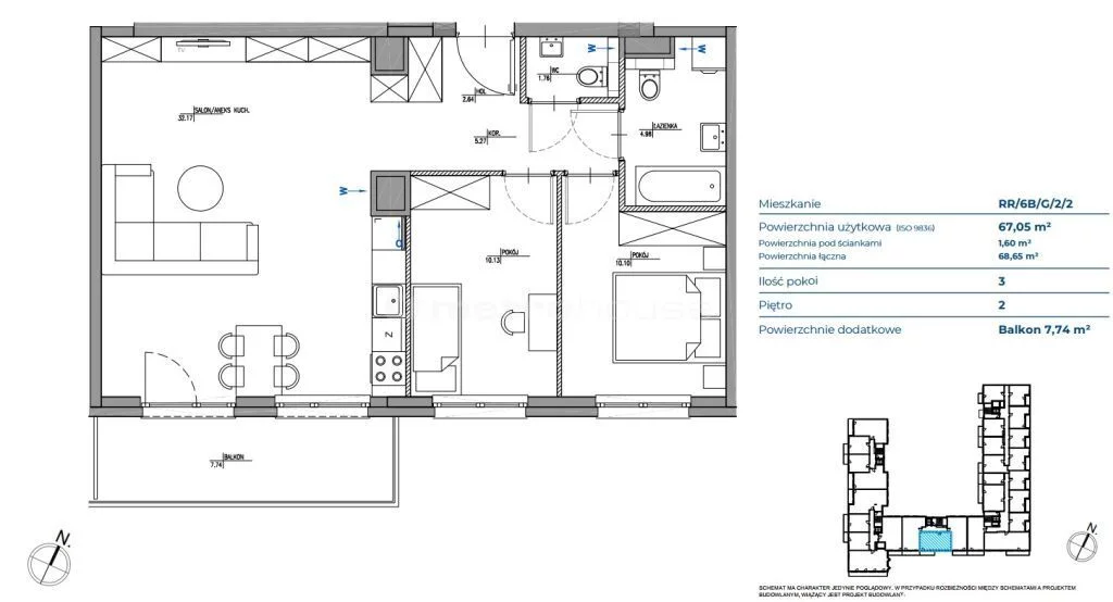
Prezentowany apartament składa się z :
- salonu z aneksem o pow. 32.17 m2
- jasnej sypialni o pow. 10.13 m2
- sypialni o pow. 10.10 m2
- łazienki o pow. 4.98 m2
- oddzielnego WC o pow. 1.76 m2
- holu z możliwością zabudowy o pow. 7.91 m2
! TARAS o pow. 7,74 m2 !
cena miejsca postojowego od 49 000 zł ( w zależności od wyboru )
Apartament idealny dla pary bądź jako inwestycja;
! Zapraszamy na prezentację !
Charakterystyka inwestycji
Mieszkanie znajduje się w inwestycji budowanej przez znanego i cenionego dewelopera Niska zabudowa, stylowa elewacja, najwyższa jakość wykonania, użycie szlachetnych materiałów takich jak kamień, ceramika i drewno wpływają ekskluzywny charakter budynku. Na dole w budynku znajduje się recepcja z komfortowym lobby, do mieszkania prowadzi elegancka klatka schodowa z nowoczesną windą. To wyjątkowe, ciche mini osiedle, gdzie mieszkania charakteryzującym się przestronnymi, nasłonecznionymi pomieszczeniami z dużymi drewnianymi oknami zabezpieczonymi elektrycznie sterowanymi roletami zewnętrznymi. W tej samej inwestycji dla mieszkańców dostępna jest siłownia. Dodatkowym atutem jest pokój zabaw dla dzieci oraz zewnętrzny plac zabaw. Wszystkie mieszkania są wyposażone w system domu inteligentnego Smart House by Keemple.
Ponadto atutami inwestycji są:
- panele fotowoltaiczne
- bezpieczeństwo (ochrona, monitoring, wideofony)
- ładowarki aut elektrycznych
- przygotowanie pod klimatyzację
- światłowód
- chodniki z kostki antysmogowej
- stojaki i stacje rowerowe
Osiedla zostało zaprojektowane z myślą o wymagających mieszkańcach, dla których na terenie mini osiedla powstaną liczne tereny zielone, fontanny, oczka wodne, strefa relaksu, kącik jogi, plac zabaw, wewnętrzna strefa fitness, klub malucha i tężnia solankowa.
Zalety lokalizacji
Lokalizacja mieszkania w Miasteczku Wilanów, które charakteryzuje niska zabudowa, zapewnia szybki dostęp do licznych, modnych restauracji oraz obiektów rekreacyjnych, wielu znanych szkół i przedszkoli, a także szybki dojazd do centrum Warszawy dzięki nowej linii tramwajowej oraz południowej obwodnicy Warszawy. To idealne miejsce dla osób, które cenią sobie bezkompromisowe połączenie miejskiego życia z możliwością aktywnego wypoczynku w bliskim otoczeniu zielonych terenów. W pobliżu znajdują się między innymi atrakcyjne ścieżki rowerowe, Park Morysin czy Pałac w Wilanowie. W bliskim sąsiedztwie jest prywatny szpital Medicover. Lotnisko Chopina znajduje się w odległości 15 minut jazdy samochodem od nieruchomości.
Wilanów to wyjątkowe miejsce na mapie Warszawy, oferujące mieszkańcom nie tylko bogatą historię i piękne krajobrazy, ale także nowoczesne rozwiązania infrastrukturalne. Jest to idealne miejsce dla osób szukających harmonii między dynamicznym życiem w stolicy a spokojem i zielenią. Zapraszam do zakupu mieszkania i prezentację nieruchomości.
Nota prawna
Opis oferty zawarty na stronie internetowej sporządzany jest na podstawie oględzin nieruchomości oraz informacji uzyskanych od właściciela, może podlegać aktualizacji i nie stanowi oferty określonej w art. 66 i następnych K.C
Zdjęcia przedstawiają przykładową wizualizację wykończenia apartamentu,
Czy wiesz, że możemy przygotować dla Ciebie prezentację on-line nieruchomości? Skontaktuj się z naszym Agentem i zapytaj o szczegóły.
Pomimo, iż Doradcy Metrohouse przykładają szczególną staranność do rzetelnego prezentowania informacji o nieruchomości, nie zawsze jest możliwa weryfikacja wszystkich danych przekazanych od osób trzecich. Niniejsza prezentacja oferty nie jest ofertą w rozumieniu Kodeksu Cywilnego i ma charakter wyłącznie informacyjny.