*** 0% PROWIZJI OD KUPUJĄCEGO ***
** Brak podatku 2% PCC **
Ми розмовляємо українською і російською.
Mamy przyjemność zaoferować Państwu słoneczne 3 pokojowe mieszkanie na 6 piętrze na Gocławiu.
Inwestycja obejmuje 198 mieszkań o funkcjonalnych metrażach (od 25 m2 do 124 m2) i różnorodnych rozkładach. Nowoczesne, tętniące już życiem osiedle zlokalizowane na Pradze Południe w sercu Gocławia. Dwa nowe, siedmiopiętrowe budynki, stanowiące piąty i ostatni etap inwestycji. Pomiędzy nimi zaprojektowane zostały przestronne zielone dziedzińce z częściami rekreacyjnymi dla mieszkańców. Osiedle cechuje uniwersalna, ponadczasowa architektura o prostych bryłach i jasnej, spójnej skandynawskiej kolorystyce. Nie brakuje tu dogodnych rozwiązań w strefach wspólnych, takich jak: stojaki na rowery, bezpieczny plac zabaw, ułatwienia dostępu dla osób z niepełnosprawnościami i rodziców z wózkami dziecięcymi. Mieszkańcy mogą korzystać z funkcjonalnych miejsc wypoczynku i rekreacji: na terenie osiedla znajdują się leżaki i ławeczki, mini boisko do koszykówki, siłownia zewnętrzna i stół pingpongowy, zaplanowane zostały stoliki szachowe oraz plac zabaw dla najmłodszych.
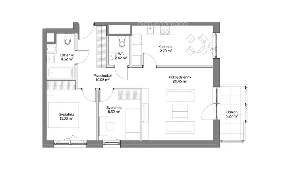
Układ pomieszczeń:
- Pokój dzienny (20.45 m2)
- Kuchnia (12.70 m2)
- Sypialnia (11.03 m2)
- Sypialnia (8.32 m2)
- Łazienka (4.52 m2)
- Toaleta (2.42 m2)
- Przedpokój(10.05 m2)
- Balkon (5.27 m2)
Chętnie zaprezentuję każde inne dostępne mieszkanie w tej inwestycji.
Komfortowe osiedle jest kwintesencją szwedzkiego stylu życia, łączy w sobie ekologiczne rozwiązania, solidną jakość i funkcjonalnie zorganizowaną przestrzeń. Dzięki temu, że zostały wbudowane w tkankę miejską, mieszkania na warszawskiej Pradze oferują dogodną komunikację z centrum oraz dostęp do bogatej infrastruktury: centrów handlowych, szkół, restauracji, siłowni czy ścieżek rowerowych. Na terenie osiedla działają już sklepy i lokale usługowe.
Zachęcam do kontaktu telefonicznego lub mailowego po więcej informacji.
Andrzej Stasiuk
Agent Nieruchomości
Zapytaj o ofertę
887-777-457
-------------------------------
Finansując zakup nieruchomości kredytem warto wcześniej sprawdzić swoją zdolność kredytową. Nasi doradcy finansowi pomogą w organizacji wszystkich formalności niezbędnych do uzyskania kredytu oraz przygotują dla Państwa ofertę na bardzo preferencyjnych warunkach.
Powyższa oferta ma charakter informacyjny i nie jest ofertą w rozumieniu art. 66 par. 1 Kodeksu Cywilnego. Opis nieruchomości został sporządzony na podstawie informacji uzyskanych od właściciela i może być aktualizowany. Skontaktuj się z nami w celu zapoznania się ze szczegółami oferty.
Właścicielem ogłoszenia wraz z jego elementami jest Freedom Nieruchomości Sp. z o.o. lub podmioty współpracujące. Wszelkie prawa zastrzeżone. Kopiowanie, rozpowszechnianie oraz korzystanie z niniejszych materiałów w jakikolwiek inny sposób wykraczający poza dozwolony użytek określony przepisami ustawy z 4 lutego 1994 r. o prawie autorskim i prawach pokrewnych (Dz. U. 1994, nr 24 poz. 83 z późn. zm.) bez pisemnej zgody Freedom Nieruchomości Sp. z o.o. lub podmiotów współpracujących jest zabronione i może stanowić podstawę odpowiedzialności cywilnej oraz karnej. Ponadto niniejsze materiały stanowią tajemnicę przedsiębiorstwa Freedom Nieruchomości Sp. z o.o. lub podmiotów współpracujących w rozumieniu ustawy z dnia 16 kwietnia 1993 r. o zwalczaniu nieuczciwej konkurencji (Dz. U. z 2003 r., Nr 153, poz. 1503 z późn. zm.).
*** 0% BUYER'S COMMISSION ***
** No 2% PCC tax **
We are pleased to offer you a sunny 3-room apartment on the 6th floor in Gocław.
The investment includes 198 apartments with functional areas (from 25 m2 to 124 m2) and various layouts. A modern, already vibrant estate located in Praga Południe in the heart of Gocław. Two new, seven-story buildings, constituting the fifth and last stage of the investment. Spacious green courtyards with recreational areas for residents have been designed between them. The estate is characterized by universal, timeless architecture with simple shapes and bright, consistent Scandinavian colors. There is no shortage of convenient solutions in common areas, such as: bicycle racks, a safe playground, access facilities for people with disabilities and parents with prams. Residents can use functional places for rest and recreation: the estate has deckchairs and benches, a mini basketball court, an outdoor gym and a ping-pong table, chess tables and a playground for the youngest have been planned.
Room layout:
- Living room (20.45 m2)
- Kitchen (12.70 m2)
- Bedroom (11.03 m2)
- Bedroom (8.32 m2)
- Bathroom (4.52 m2)
- Toilet (2.42 m2)
- Hall (10.05 m2)
- Balcony (5.27 m2)
I will be happy to present any other available apartment in this investment.
The comfortable estate is the quintessence of the Swedish lifestyle, combining ecological solutions, solid quality and functionally organized space. Thanks to the fact that they have been built into the urban fabric, apartments in Warsaw's Praga offer convenient communication with the city center and access to rich infrastructure: shopping centers, schools, restaurants, gyms and bicycle paths. Shops and service premises are already operating on the estate.
I encourage you to contact me by phone or e-mail for more information.
Andrzej Stasiuk
Real Estate Agent
Zapytaj o ofertę
887-777-457
-------------------------------
When financing the purchase of real estate with a loan, it is worth checking your creditworthiness in advance. Our financial advisors will help you organize all the formalities necessary to obtain a loan and will prepare an offer for you on very preferential terms.
The above offer is for informational purposes and is not an offer within the meaning of art. 66 par. 1 of the Civil Code. The description of the property was prepared based on information obtained from the owner and may be updated. Contact us to familiarize yourself with the details of the offer.
The owner of the advertisement and its elements is Freedom Nieruchomości Sp. z o.o. or cooperating entities. All rights reserved. Copying, distributing and using these materials in any other manner going beyond the permitted use specified in the provisions of the Act of 4 February 1994 on Copyright and Related Rights (Journal of Laws of 1994, No. 24, item 83, as amended) without the written consent of Freedom Nieruchomości Sp. z o.o. or cooperating entities is prohibited and may constitute the basis for civil and criminal liability. Furthermore, these materials constitute a trade secret of Freedom Nieruchomości Sp. z o.o. or cooperating entities within the meaning of the Act of 16 April 1993 on Combating Unfair Competition (Journal of Laws of 2003, No. 153, item 1503, as amended).
***0% КОМІСІЯ ДЛЯ ПОКУПЦЯ***
** Без 2% PCC податку **
Раді запропонувати Вам сонячну 3-ох кімнатну квартиру на 6-му поверсі на Гоцлаві.
Інвестиція включає 198 квартир функціональної площі (від 25 м2 до 124 м2) та різного планування. Сучасний, жвавий житловий масив, розташований на Praga Południe, у центрі Гоцлава. Два нових семиповерхових будинки, що є п'ятою, завершальною чергою інвестицій. Між ними заплановано просторі зелені двори з зонами відпочинку для мешканців. Маєток характеризується універсальною позачасовою архітектурою з простими формами та яскравими однорідними скандинавськими кольорами. У зонах загального користування не бракує зручних рішень, таких як: стоянки для велосипедів, безпечний дитячий майданчик, полегшений доступ для людей з обмеженими можливостями та батьків з колясками. Мешканці можуть використовувати функціональні місця для відпочинку та оздоровлення: у садибі є шезлонги та лавки, міні-баскетбольний майданчик, вуличний тренажерний зал та стіл для настільного тенісу, шахів та ігровий майданчик для дітей.
Планування приміщеннь:
- Вітальня (20,45 м2)
- Кухня (12,70 м2)
- Спальня (11,03 м2)
- Спальня (8,32 м2)
- Ванна кімната (4,52 м2)
- Туалет (2,42 м2)
- Передпокій (10,05 м2)
- Балкон (5,27 м2)
Я буду радий представити будь-яку іншу вільну квартиру в цій інвестиції.
Комфортний житловий масив є квінтесенцією шведського стилю життя, що поєднує в собі екологічні рішення, солідну якість і функціонально організований простір. Завдяки тому, що вони вбудовані в міську тканину, квартири у варшавському районі Прага пропонують зручне сполучення з центром і доступ до багатої інфраструктури: торгових центрів, шкіл, ресторанів, спортзалів і велосипедних доріжок. В садибі вже є магазини та службові приміщення.
Я рекомендую вам зв'язатися зі мною телефоном або електронною поштою для отримання додаткової інформації.
Андрій Стасюк
Агент з нерухомості
Zapytaj o ofertę
887-777-457
----------------------------------
Фінансуючи покупку нерухомості за допомогою кредиту, варто заздалегідь перевірити свою кредитоспроможність. Наші фінансові консультанти допоможуть вам організувати всі формальності, необхідні для отримання кредиту, і підготують для вас пропозицію на дуже вигідних умовах.
Вищенаведена пропозиція носить інформаційний характер і не є пропозицією в розумінні ст. 66 пар 1 Цивільного кодексу. Опис майна складено на основі інформації, отриманої від власника, і може бути оновлено. Зв'яжіться з нами, щоб дізнатися деталі пропозиції.
Власником реклами та її елементів є Freedom Nieruchomości Sp. z o. або співробітницькі організації. Всі права захищені. Копіювання, розповсюдження та використання цих матеріалів будь-яким іншим способом, окрім дозволеного використання, зазначеного в положеннях Закону від 4 лютого 1994 р. про авторське право та суміжні права (Закон. вісник 1994 р., № 24, пункт 83, зі змінами) без письмова згода Freedom Nieruchomości Sp. z o. або співпрацюючих організацій заборонено і може бути підставою для цивільної та кримінальної відповідальності. Крім того, ці матеріали становлять комерційну таємницю Freedom Nieruchomości Sp. z o. або суб'єкти співробітництва в розумінні Закону від 16 квітня 1993 р. про боротьбу з недобросовісною конкуренцією (Закон. вісник 2003 р., № 153, пункт 1503, зі змінами).
"Właścicielem ogłoszenia wraz z jego elementami jest Freedom Nieruchomości Sp. z o.o. lub podmioty współpracujące. Wszelkie prawa zastrzeżone. Kopiowanie, rozpowszechnianie oraz korzystanie z niniejszych materiałów w jakikolwiek inny sposób wykraczający poza dozwolony użytek określony przepisami ustawy z 4 lutego 1994 r. o prawie autorskim i prawach pokrewnych (Dz. U. 1994, nr 24 poz. 83 z późn. zm.) bez pisemnej zgody Freedom Nieruchomości Sp. z o.o. lub podmiotów współpracujących jest zabronione i może stanowić podstawę odpowiedzialności cywilnej oraz karnej.
Ponadto niniejsze materiały stanowią tajemnicę przedsiębiorstwa Freedom Nieruchomości Sp. z o.o. lub podmiotów współpracujących w rozumieniu ustawy z dnia 16 kwietnia 1993 r. o zwalczaniu nieuczciwej konkurencji (Dz. U. z 2003 r., Nr 153, poz. 1503 z późn. zm.). Niniejsze ogłoszenie nie stanowi oferty w rozumieniu Kodeksu Cywilnego, lecz ma charakter informacyjny."
Oferta wysłana z programu dla biur nieruchomości ASARI CRM (asaricrm.com)