Atrakcyjne, 3 pokojowe mieszkanie przy ul. Skoroszewskiej na zamkniętym strzeżonym osiedlu.
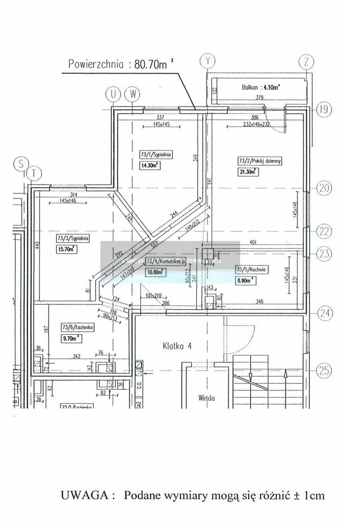
Mieszkanie o powierzchni 80,7 m2 usytuowane jest na 3 piętrze w 6 piętrowym budynku z windą (na piętrze znajdują się jedynie dwa mieszkania) wybudowanym w 2006 r.
Dużym atutem jest lokalizacja. W okolicy dużo zieleni a w bliskiej odległości przystanki komunikacji miejskiej i wygodny i szybki dojazd do trasy S8 i S2. W pobliżu C.H. Skorosze, sklep Biedronka, sklepiki osiedlowe, piekarnie, restauracje oraz usługi, a także placówki edukacyjne prywatne i publiczne.
Mieszkanie wykończone, gotowe do zamieszkania.
Powierzchnie pomieszczeń:
przedpokój – 10,8 m2
kuchnia – 8,9 m2
salon – 21,3 m2
sypialnia - 14,3 m2
sypialnia – 15,7 m2
łazienka– 9,7 m2
balkon – 4,1m2
Wykończenie:
- okna PCV z roletami wewnętrznymi i parapetami z marmuru
- drzwi antywłamaniowe
- drzwi wewnętrzne fornirowane
- we wszystkich pomieszczeniach sufity podwieszane
- podłogi: parkiet w pokojach oraz gres w przedpokoju, kuchni oraz łazience, dodatkowe elektryczne ogrzewanie podłogowe w: kuchni, łazience, przedpokoju
- w kuchni meble w zabudowie oraz sprzęt AGD firmy Siemens: zmywarka, piekarnik, płyta indukcyjna, lodówka
- w łazience kabina prysznicowa, wanna z hydromasażem, WC
- pełne umeblowanie: szafy w zabudowie, szafy, komody, narożnik, łóżka, stół itp.
Przykładowe odległości:
publiczna szkoła podstawowa – 600m
publiczne liceum – 450m
sklep „Żabka” - 170m
sklep „Biedronka” 550m
sklep „Leroy Merlin” – 950m
piekarnia – 230m
apteka – 200m
poczta – 350m
przystanek autobusowy: najbliższy 120m, z wieloma autobusami do m.in. Centrum - 270m
Do mieszkania przynależą (płatne dodatkowo)
miejsce postojowe w garażu podziemnym - cena 50 000 zł
komórka lokatorska o powierzchni 5,2 m2 – cena 25 000 zł
Sobota i niedziela dyżur w biurze w godzinach 8:30 - 21:00. W razie jakichkolwiek pytań proszę dzwonić 795 327 829, wysłać SMS lub wysłać zapytanie na adres e-mail:
Zapytaj o ofertę
, oddzwonimy.
Treść ogłoszenia nie stanowi oferty w rozumieniu Kodeksu Cywilnego
Oferta wysłana z programu dla biur nieruchomości ASARI CRM (asaricrm.com)