Oferta BEZPOŚREDNIO OD DEWELOPERA, BEZ PROWIZJI I PODATKU PCC.
Zapraszam do zapoznania się z ofertą sprzedaży 3-pokojowego mieszkania zlokalizowanego przy ul. Rydlówka w Krakowie w gotowej inwestycji.
Lokalizacja:
Mieszkanie znajduje się w doskonałej lokalizacji w pobliżu Ronda Mateczny, co zapewnia wygodny dostęp do komunikacji miejskiej, sklepów, restauracji oraz innych punktów usługowych. W najbliższej okolicy znajdują się również przedszkola, szkoły oraz tereny zielone, co sprawia, że jest to idealne miejsce zarówno dla singli, jak i młodych rodzin.
Opis mieszkania:
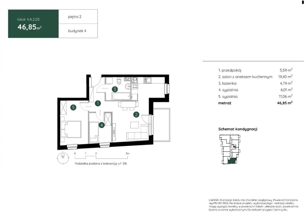
Powierzchnia: 46,85
dwie sypialnie
salon z aneksem kuchennym
przedpokój
łazienka
Zalety nieruchomości:
Świetna lokalizacja z szybkim dostępem do centrum miasta
Spokojna i zielona okolica
Bliskość przedszkoli i szkół
Możliwość wykończenia wnętrza według własnych preferencji
Obowiązkowy zakup miejsca postojowego w cenie 30000 zł
Nie przegap okazji! Mieszkanie przy ul. Rydlówka to idealne miejsce do stworzenia swojego wymarzonego domu w Krakowie!
Zapraszamy!
:: Oferta wysłana z programu mediaRent (media-rent.eu) ::