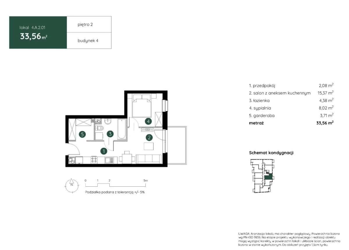
Mieszkanie na sprzedaż, 33,56 m², 3 pokoje, 2 piętro, oferta nr 4.A.2.01-515
Mieszkanie z oferty Kamil Kamionka Nowe Miejsce Nieruchomości
594 012,00 zł
Rata 3 028 zł/mies. - sprawdź >
Kraków, Podgórze, Rydlówka





6

Mapa
Cena:
594 012,00 zł
Cena za m²:
17 100,00 zł
Liczba pokoi:
3 pokoje
Powierzchnia:
33,56 m²
Piętro:
2 piętro
Typ kuchni:
aneks kuchenny
Rok Budowy:
2025
Wirtualny spacer:
Treść ogłoszenia nie stanowi oferty w rozumieniu przepisów Kodeksu Cywilnego.