Marzysz, aby mieszkać w cichej i spokojnej okolicy nie rezygnując jednocześnie z uroków miasta?
Jesteś w dobrym miejscu!
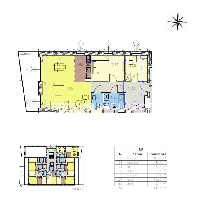
Przedstawiamy inwestycję w krakowskiej dzielnicy Prądnik Czerwony, która znajduje się tuż przy 8 hektarowym parku rekreacyjno-spacerowym. W skład wchodzą 2 budynki 6- kondygnacyjne , kolejno po 22 i 37 mieszkań. Funkcjonalne układy mieszkań mieszczące się w przedziałach od 40/41 m2- 137 m2 przypadną do gustu nawet tym najbardziej wymagającym.Inwestycja wykonana z najwyższej jakości materiałów budowlanych z dbałością o każdy szczegół.
Większość mieszkań na parterach będą mieć ogródki , na wyższych piętrach balkony . Podziemna część budynku przeznaczona jest na garaż z miejscami parkingowymi.
Wysokość pomieszczeń na poziomie 3,13 metra w mieszkaniach zlokalizowanych na parterze dodaje wyjątkowego charakteru, umożliwiając kreatywne aranżacje z nietypowym wyposażeniem.
Dzięki temu można łatwo wydzielić różne strefy funkcjonalne, używając antresoli lub podwieszanych przegród.
Niebywałym atutem jest lokalizacja, która sprzyja osobom zarówno przemieszczającym się samochodem jak i komunikacją miejską. Pobliskie tereny bogate są w punkty usługowo-handlowe oraz rozrywkowe np. Serenada, Park Wodny, Multikino , co z pewnością odpowie potrzebom zarówno młodszych jak i starszych osób. Obecność Parku tuż obok inwestycji daje możliwość obcowania z naturą oraz spędzenia wolnego czasu na świeżym powietrzu. W bliskim sąsiedztwie zabudowy wielorodzinnej znajdują się żłobki, przedszkola oraz szkoła.
Termin zakończenia budowy zaplanowano na II kwartał 2023 r.
Zapraszam do kontaktu:
Malwina Filas
Zapytaj o ofertę
518-706-518
::DODATKOWE INFORMACJE
Kategoria oferty: Pewny Partner, Mieszkania dla rodzin z dziećmi
Rodzaj budynku: nowe budownictwo
Dozór budynku: brak
Głośność: ciche
Widok: na osiedle
Gaz: brak
Woda: jest
Dojazd: asfalt
Otoczenie: osiedle
Ogrzewanie: C.O. miejskie
Komunikacja publ.: MPK, miejska, tramwaj, autobus
Odległość do komunikacji publicznej [m]: 200
Odl. do sklepu [m]: 150
Odl. do szkoły [m]: 800
Odl. do przedszkola [m]: 350
Winda: TAK
Rozkład: jednostronne
Usytuowanie: dwustronne
Opłaty w czynszu: -
Rodzaj mieszkania: jednopoziomowe
Garaż: możliwość kupna
Stan lokalu: deweloperski
Okna: PCV
Instalacje: nowe
Balkon: jest
Liczba balkonów: 1
Rok budowy: 2023
Liczba pokoi: 3
Liczba sypialni: 2
Podłogi pokoi: wylewka
Ściany pokoi: zwykłe
Typ kuchni: aneks kuchenny - połączony z salonem
Rodzaj kuchni: aneks kuchenny
Podłoga kuchni: wylewka
Typ łazienki: razem z wc
Liczba łazienek: 1
Glazura łazienki: bez glazury
Podłoga łazienki: wylewka
Ściany łazienki: zwykłe
Liczba WC: 1
Glazura WC: bez glazury
Podłoga WC: wylewka
Liczba przedpokoi: 1
Podłoga przedpokoi: wylewka
Ściany przedpokoi: zwykłe
::LINK DO STRONY
https://sadurscy.pl/offer/BS2-MS-305255
Zobacz Wirtualny Spacer: https://my.matterport.com/show/?m=C1ZFf2ayZZ4
::KONTAKT DO AGENTA
Malwina Filas
+48 518-706-518
Zapytaj o ofertę
::DANE BIURA
Oddział BS2, Rynek Pierwotny
Przewóz 47
30-081 Kraków
12 630-90-45
--------------------------
::GRATIS | Nasza prowizja zawiera: koszt przedwstępnej notarialnej umowy sprzedaży nieruchomości z rynku wtórnego.
::GWARANCJA | Gwarancja zwrotu zadatku. Więcej informacji na sadurscy.pl/zwrot-zadatku/
Oferta wysłana z systemu Galactica Virgo