Bracia Sadurscy to oficjalny przedstawiciel handlowy dewelopera - kupując z nami nie płacisz prowizji i ukrytych kosztów.
Do sprzedaży na rynku pierwotnym oferujemy jedno z dwóch mieszkań w budynku dwulokalowym, zlokalizowanym w południowej części Krakowa, w osiedlu Kliny Borkowskie.
Główne zalety nieruchomości:
Kameralna wielkość budynku - tylko dwa lokale, co zapewnia poczucie prywatności i komfortu. W tym mieszkaniu poczujesz się jak w domu!
Własne miejsce parkingowe - 2 dedykowane miejsca parkingowe.
Świetna lokalizacja - z dala od zgiełku miasta, w otoczeniu zieleni, w pobliżu parków. Dobra komunikacja, szybki dojazd do ul. Zakopiańskiej oraz obwodnicy Krakowa, blisko przystanek autobusowy. W pobliżu szkoła, przedszkole, centrum handlowe.
Budynek:
Dwulokalowy - każdy lokal z osobnym wejściem, w pełni niezależny.
Wysoka jakość wykonania - budynek posadowiony na płycie fundamentowej, ściany fundamentowe z bloczków betonowych. Ściany kondygnacji naziemnych wykonane z pustaka ceramicznego.
Nowoczesne technologie - system wentylacji mechanicznej z pompą rekuperacji, ogrzewanie podłogowe, kotłownia gazowa.
Wysokiej jakości materiały - okna 3-szybowe, drzwi wejściowe stalowe, antywłamaniowe, rolety antywłamaniowe.
Elewacja - tynk silikatowy z lamelami dekoracyjnymi, ocieplenie styropianem 20 cm.
Dojazd drogą utwardzoną, teren ogrodzony, 4 miejsca parkingowe.
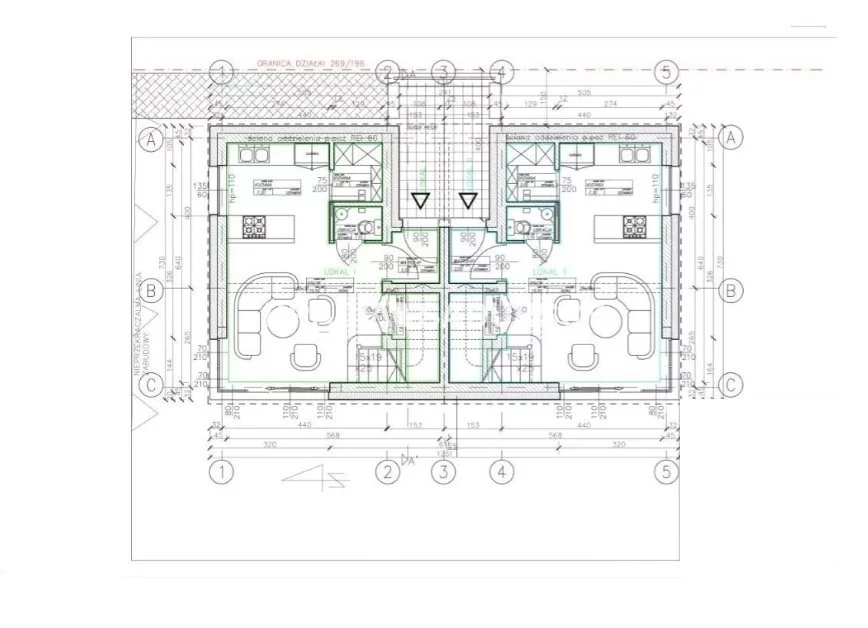
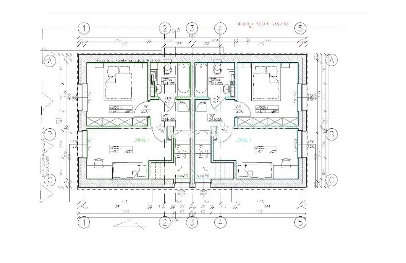
Mieszkania składa się z :
Powierzchnia działki: 164 m
Powierzchnia mieszkania ok 91 m²
Parter (31,85 m²):
Salon z aneksem kuchennym (28,55 m²) z wyjściem na ogródek.
Toaleta (1,15 m²).
Spiżarnia (2,15 m²).
Garderoba (3,85 m²).
Komunikacja do piętra.
Piętro (34,1 m²):
Sypialnia 1 (13,25 m²).
Sypialnia 2 (10,15 m²).
Łazienka (4,05 m²).
komunikacja i korytarz
Poddasze (34 m²).
Aktualny stan inwestycji (02.2025):
Stan surowy zamknięty, instalacje elektryczne, wodno-kanalizacyjne, gazowe, klimatyzacji, rekuperacji, centralne ogrzewanie podłogowe, tynki wewnętrzne, wylewki podłogowe, wykonane przyłącza gazowe i wod-kan.
Termin realizacji 07-09.2025 - zakończenie budowy, oddanie mieszkań do użytkowania.
Zapraszamy do kontaktu, aby umówić się na prezentację mieszkania lub uzyskać więcej informacji!
Barbara Nazarewicz
515 634 552
Zapytaj o ofertę
::DODATKOWE INFORMACJE
Kategoria oferty: Mieszkania dla rodzin z dziećmi
Rodzaj budynku: szeregowiec
Dozór budynku: alarm
Głośność: ciche
Widok: na osiedle
Gaz: jest
Woda: jest
Dojazd: ASFALTOWA
Otoczenie: zabudowa mieszana
Ogrzewanie: C.O. GAZOWE
Internet: TAK
Komunikacja publ.: autobus
Winda: NIE
Rozkład: dwustronne
Usytuowanie: jednostronne
Drzwi antywłamaniowe: TAK
Rolety antywłamaniowe: TAK
Teren ogrodzony: TAK
Opłaty w czynszu: -
Opłaty wg liczników: woda, prąd, gaz, CO
Rodzaj mieszkania: dwupoziomowe
Garaż: brak
Stan lokalu: deweloperski
Okna: PCV 3 komorowe
Instalacje: nowe
Balkon: brak
Powierzchnia użytkowa [m2]: 65
Rok budowy: 2025
Liczba pokoi: 3
Liczba sypialni: 2
::LINK DO STRONY
https://sadurscy.pl/offer/BS2-MS-308664
::KONTAKT DO AGENTA
Barbara Nazarewicz
+48 515-634-552
Zapytaj o ofertę
::DANE BIURA
Oddział BS2, Rynek Pierwotny
Przewóz 47
30-081 Kraków
12 630-90-45
--------------------------
::GRATIS | Nasza prowizja zawiera: koszt przedwstępnej notarialnej umowy sprzedaży nieruchomości z rynku wtórnego.
::GWARANCJA | Gwarancja zwrotu zadatku. Więcej informacji na sadurscy.pl/zwrot-zadatku/
Oferta wysłana z systemu Galactica Virgo