ZIELONA OAZA W MIEŚCIE – 3 POKOJE Z BALKONEM I PIWNICĄ, 59,1 m²!
Jeśli marzysz o przytulnym, jasnym mieszkaniu z widokiem na zieleń, w spokojnej okolicy, ale jednocześnie z doskonałą komunikacją z centrum – właśnie znalazłeś swoje miejsce!
Lokalizacja – Cicha i zielona okolica zapewnia codzienny relaks, a jednocześnie bliskość przystanków komunikacji miejskiej pozwala szybko dostać się w każdy punkt miasta.
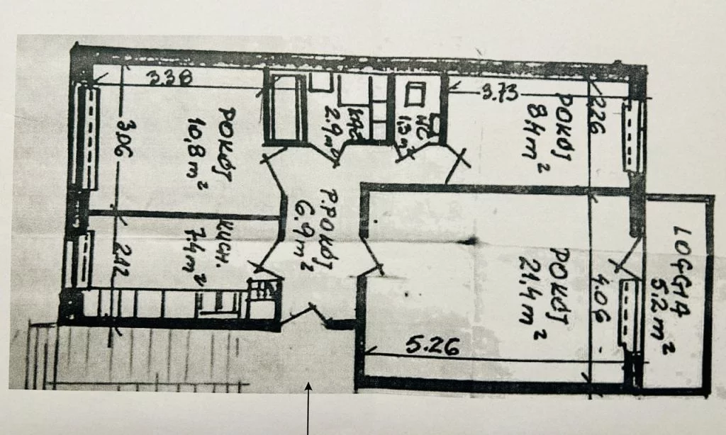
Mieszkanie o powierzchni 59,1 m², usytuowane na 4 piętrze, składa się z:
- 3 ustawnych pokoi (idealnych dla rodziny, pary lub jako inwestycja pod wynajem),
- oddzielnej kuchni z oknem,
- łazienki z wanną,
- funkcjonalnego korytarza z miejscem na szafy w zabudowie,
- balkonu, z którego rozciąga się uspokajający widok na zieleń,
- piwnicy, która zapewnia dodatkową przestrzeń do przechowywania.
Niski czynsz – to ogromny atut zarówno dla właścicieli prywatnych, jak i inwestorów szukających nieruchomości pod wynajem.
To miejsce ma wyjątkowy klimat – idealne dla osób, które cenią sobie ciszę, komfort i łatwy dostęp do miejskiej infrastruktury. Gotowe do zamieszkania lub własnej aranżacji!
Czy wiesz, że możemy przygotować dla Ciebie prezentację on-line nieruchomości? Skontaktuj się z naszym Agentem i zapytaj o szczegóły.
Pomimo, iż Doradcy Metrohouse przykładają szczególną staranność do rzetelnego prezentowania informacji o nieruchomości, nie zawsze jest możliwa weryfikacja wszystkich danych przekazanych od osób trzecich. Niniejsza prezentacja oferty nie jest ofertą w rozumieniu Kodeksu Cywilnego i ma charakter wyłącznie informacyjny.