3-pokojowe mieszkanie 78,05 m² z balkonem ul. Pawia 6, Piaseczno - z widokiem na panoramę miasta.
Mieszkanie o powierzchni 78,05 m², położone na VII piętrze nowoczesnego budynku z windą przy ul. Pawiej 6 w Piasecznie.
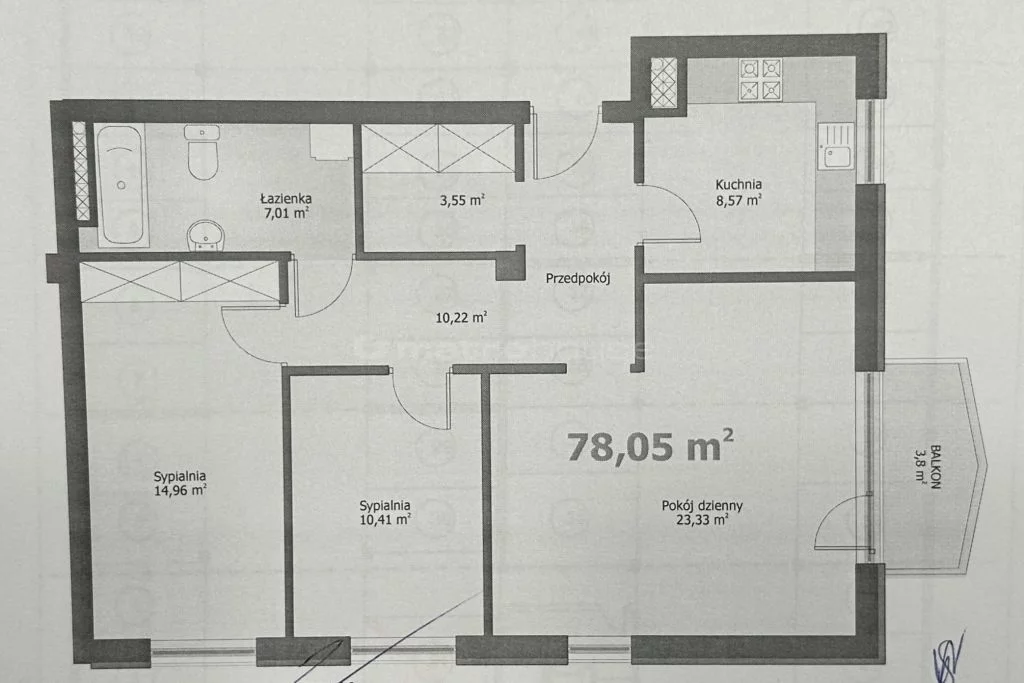
Rozkład mieszkania:
Nieruchomość została zaprojektowana z myślą o komforcie mieszkańców i wyraźnym podziale na część dzienną i prywatną.
Składa się z:
Salonu (23,33 m²) z wyjściem na balkon (3,8 m²),Oddzielnej, widnej kuchni (8,57 m²),Sypialni 1 (14,96 m²),Sypialni 2 (10,41 m²),Łazienki (7,01 m²),Przestronnego przedpokoju (10,22 m²),Garderoby/schowka (3,55 m²).
Do mieszkania przynależą 2 miejsca w garażu podziemnym: dodatkowo płatne: 60.000 PLN.
Atuty mieszkania i osiedla:
- Funkcjonalny układ pomieszczeń z dużymi możliwościami aranżacyjnymi,
- Widna kuchnia oraz wygodna garderoba
- Budynek wyposażony w windy od poziomu garażu aż po ostatnie piętro,
- Dookoła dużo terenów zielonych, sprzyjających spacerom i rekreacji.
Lokalizacja:
Mieszkanie przy ul. Pawiej zapewnia doskonałą komunikację i bogatą infrastrukturę w zasięgu ręki:
- Edukacja i opieka żłobki, przedszkola, szkoły podstawowe oraz szkoły językowe,
- Usługi i zakupy w budynku m.in. sklep Żabka, salon kosmetyczny, w pobliżu przychodnia CMP,
- Rekreacja klub fitness Zdrofit z sauną, ścieżki spacerowe, plac zabaw,
Komunikacja przystanek autobusowy 'Piaseczno Pawia' znajduje się zaledwie 100 m od budynku; szybki dojazd zarówno do centrum Piaseczna, jak i do Warszawy.
Dlaczego warto?
To mieszkanie to idealna propozycja dla osób poszukujących przestrzeni, wygody i bezpieczeństwa. Funkcjonalny układ, balkon z widokiem, a także pełna infrastruktura osiedla i świetna lokalizacja sprawiają, że to miejsce pozwala cieszyć się komfortem codziennego życia.
Zapraszam na prezentację 7 dni w tygodniu.
Czy wiesz, że możemy przygotować dla Ciebie prezentację on-line nieruchomości? Skontaktuj się z naszym Agentem i zapytaj o szczegóły.
Pomimo, iż Doradcy Metrohouse przykładają szczególną staranność do rzetelnego prezentowania informacji o nieruchomości, nie zawsze jest możliwa weryfikacja wszystkich danych przekazanych od osób trzecich. Niniejsza prezentacja oferty nie jest ofertą w rozumieniu Kodeksu Cywilnego i ma charakter wyłącznie informacyjny.