Rynek pierwotny - bez PCC i prowizji
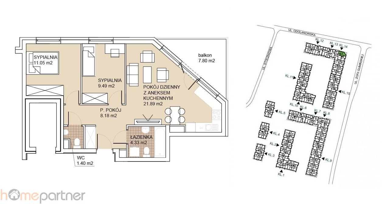
Na sprzedaż 3-pokojowe WYKOŃCZONE POD KLUCZ mieszkanie o powierzchni 56,34 m2, znajdujące się 4 piętrze inwestycji deweloperskiej, zlokalizowanej przy ulicy Odolanowskiej.
Mieszkanie gotowe do odbioru
Mieszkanie składa się z:
- salonu z aneksem kuchennym 21,89 m2
- sypialni 11,05 m2
- sypialni 9,49 m2
- łazienki 4,33 m2
- wc 1,40 m2
- przedpokoju 8,18 m2
Do mieszkania przynależy balkon 7,8 m2
Mieszkanie narożne o ekspozycji północno-wschodniej
OSIEDLE
Inwestycja przy ul. Odolanowskiej to prawdziwy raj dla miłośników natury i spokojnego życia. Dziedzińce pełne bujnych roślin i kolorowych kwiatów stwarzają niepowtarzalne otoczenie, idealne do relaksu i regeneracji sił. Teren rekreacyjny od południowej strony osiedla to miejsce aktywnego wypoczynku, gdzie zarówno dzieci, jak i dorośli znajdą coś dla siebie. Sprzęty do ćwiczeń na powietrzu, plac zabaw, ścieżki spacerowo-rowerowe - wszystko to zachęca do wspólnego spędzania czasu na świeżym powietrzu.
Architektura osiedla również przyciąga uwagę. Proste, ponadczasowe formy budynków wkomponowane są w malowniczą scenerię, podkreślając nowoczesną estetykę dużymi oknami i szklanymi balustradami. Zestawienie barw elewacji - białej, szarej i żółtej - tworzy elegancką kompozycję, doskonale współgrającą z otaczającą zielenią.
LOKALIZACJA I KOMUNIKACJA
Szybki dostęp do węzła autostradowego i obwodnicy
W bliskiej okolicy stacja PKP Psie Pole oraz PKP Zakrzów oraz parkingi Park&Ride
- linie autobusowe: D, 130, 111, 150
W pobliżu zaplecze handlowo-usługowe i rekreacyjne, 18 minut pieszo do Biedronki i 20 do Lidla. Nieopodal liczne mniejsze sklepy i punkty usługowe. Dogodny dojazd do Centrum Handlowego Korona około 8 minut samochodem, 5,6 km do obwodnicy.
W odległości około 10 minut spacerem powstaje nowy aquapark przy ul. Wilanowskiej
Ogromną zaletą lokalizacyjną jest bliskość pięknych terenów zieleni z jeziorkami i terenami spacerowymi - Parku Pawłowickiego i Parku Szczodre.
To przyjazne otoczenie dla zwolenników aktywnego wypoczynku, z dala od miejskiego zgiełku.
Istnieje możliwość nabycia miejsca postojowego oraz komórki lokatorskiej
W ofercie również inne mieszkania na tym osiedlu.
Zapraszamy do kontaktu
+48 889 759 863
Feel free to contact us, talk and see the apartment. For more information please call us +48 889 759 863.
Por favor contáctenos para conocer más sobre la oferta y ver el apartamento. Podemos ayudar con todos los trámites. Para más información por favor llámanos +48 889 759 863.
Treść niniejszego ogłoszenia nie stanowi oferty handlowej w rozumieniu Kodeksu Cywilnego.
Oferta wysłana z programu IMO dla biur nieruchomości