Na sprzedaż: Przestronne mieszkanie - idealne dla rodziny lub inwestora!
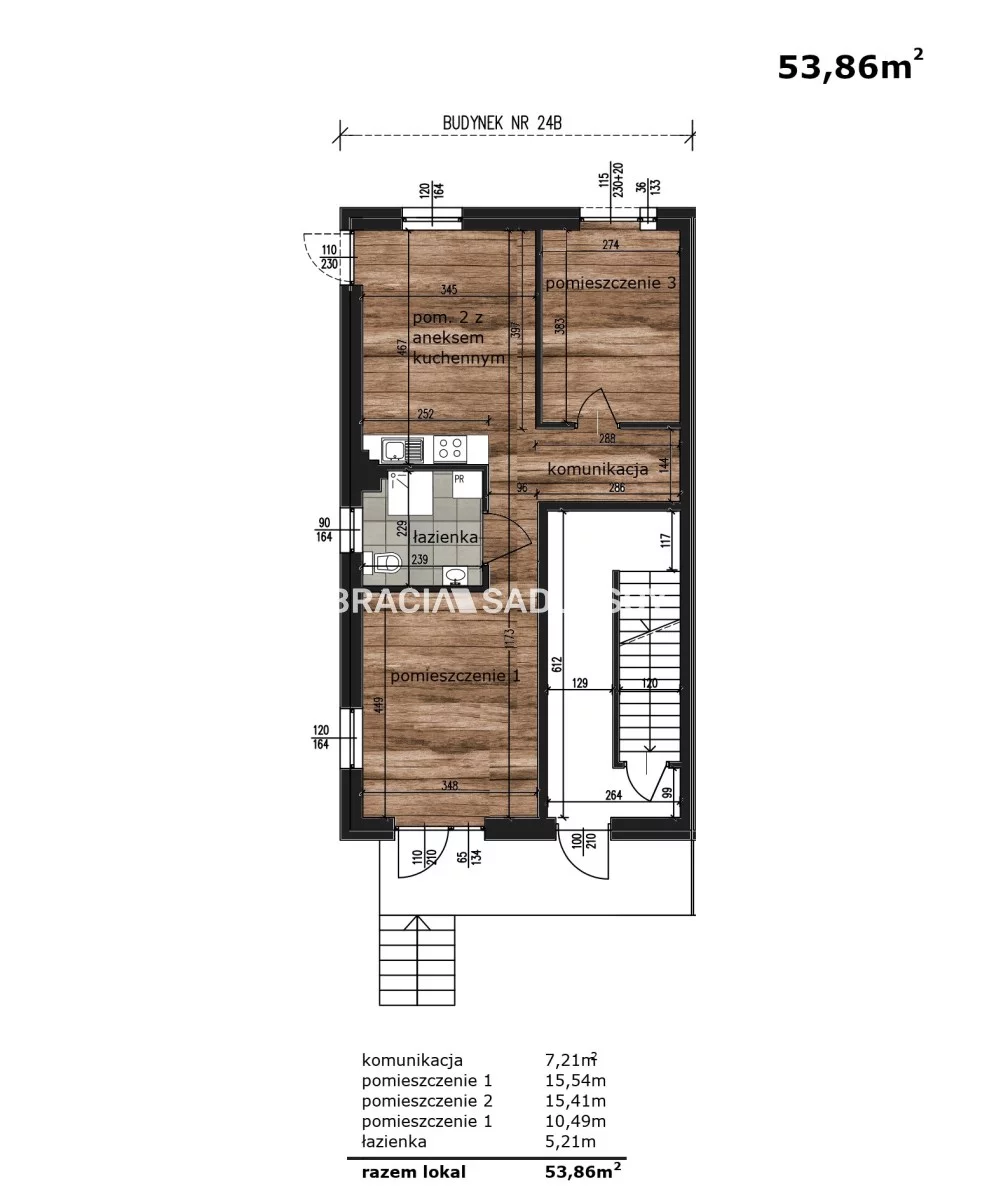
Oferujemy funkcjonalne, 3-pokojowe mieszkanie o powierzchni 53,86 m² , położone na wysokim parterze w 2-piętrowym budynku z 2024r. Nieruchomość w stanie deweloperskim.
Powierzchnia nieruchomości: 53,86 m² - powierzchnia użytkowa mieszkania
Lokalizacja: Mieszkanie znajduje się w Podgórzu, Małym Płaszowie , w pobliżu niskiej zabudowy. Doskonała komunikacja:
5 minut pieszo do zajezdni tramwajowej Mały Płaszów
17 minut tramwajem do Rynku Głównego
10 minut autem do centrum
Blisko Krakowska Akademia
W pobliżu znajdują się m.in. Park Myśliwski i Park Rzeczny Ogród Płaszów - to jeden z największych parków w Podgórzu. Idealne miejsca do rekreacji dla całej rodziny. Również w okolicy znajduje się zalew Bagry.
najbliższy przystanek tramwajowy znajduje się zaledwie 5 min od budynku,
Najbliższa szkoła i przedszkole znajdują się zaledwie 5 min od budynku,
w pobliżu znajdują się m.in. Lidl, Biedronka oraz Żabka,
poza parkami i zalewem, w okolicy znajduje się też Klub Sportowy Płaszowianka, korty do squasha oraz tor gokartowy.
Dostępne również inne mieszkania w tym budynku
W okolicy pełna infrastruktura:
żłobki, przedszkola, szkoła podstawowa
Sklepy, restauracje, poczta, paczkomaty
Dwa parki i place zabaw, w tym popularny Smoczy Skwer
W pobliżu Zalew Bagry - idealne miejsce na rekreację
Dodatkowe informacje:
Mieszkanie sprzedawane w stanie deweloperskim wyposażone w nowoczesny piec dwufunkcyjny na gaz oraz system ogrzewana.
Budynek jest odsunięty od głównych ulic - cicho i spokojnie!
Ogrzewanie Gazowe w całym mieszkaniu podgrzewanie podłogowe.
Mieszkanie gotowe do zamieszkania od zaraz
Bezpłatny parking dla mieszkańców pod budynkiem, dodatkowo istnieje możliwość zakupu miejsca parkingowe w garażu podziemnym
w budynku znajdują się również mieszkania dwupoziomowe
Cena: 820 000 zł mieszkanie
Kontakt:
Kuba Obcowski
+48 510 087 993
Prezentacja nieruchomości jest bezpłatna i odbywa się w obecności pośrednika. Warunkiem jej przeprowadzenia oraz podania lokalizacji jest podpisanie umowy pośrednictwa, zgodnie z przepisami i oczekiwaniami właściciela nieruchomości.
::DODATKOWE INFORMACJE
Rodzaj budynku: nowe budownictwo
Dozór budynku: tak - jest
Głośność: ciche
Widok: na podwórko
Gaz: jest
Woda: jest
Dojazd: asfalt
Otoczenie: działki zabudowane
Ogrzewanie: gazowe
Internet: TAK
Telewizja kablowa: TAK
Komunikacja publ.: autobus miejski, tramwaj
Winda: NIE
Rozkład: dwustronne
Usytuowanie: dwustronne
Opłaty wg liczników: woda, prąd, gaz
Rodzaj mieszkania: jednopoziomowe
Garaż: możliwość kupna
Stan lokalu: deweloperski
Okna: PCV
Instalacje: nowe
Rok budowy: 2024
Liczba pokoi: 3
Liczba sypialni: 2
Podłogi pokoi: wylewka
Ściany pokoi: zwykłe
Typ kuchni: jasna z oknem
Rodzaj kuchni: jasna z oknem
Podłoga kuchni: wylewka
Typ łazienki: razem z wc
Liczba łazienek: 1
Glazura łazienki: bez glazury
Podłoga łazienki: wylewka
Ściany łazienki: zwykłe
Liczba przedpokoi: 1
Podłoga przedpokoi: wylewka
Ściany przedpokoi: zwykłe
::LINK DO STRONY
https://sadurscy.pl/offer/BS5-MS-310480
::KONTAKT DO AGENTA
Jakub Obcowski
+48 510-087-993
Zapytaj o ofertę
::DANE BIURA
Oddział BS5, Nowa Huta
Bracia Sadurscy Dariusz Sadurski
Os. Kazimierzowskie 36
31-844 Kraków
12 265 10 29
Pośrednik odpowiedzialny zawodowo za wykonanie umowy pośrednictwa: Dariusz Sadurski (licencja nr: 803)