OFERTA BEZPROWIZYJNA!
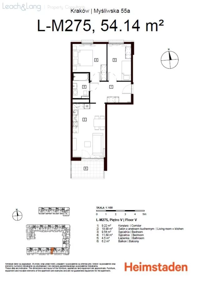
Przedmiotem sprzedaży jest wykończone i umeblowane 3-pokojowe mieszkanie z balkonem o pow. 54,14 m2 położone na ostatnim piątym piętrze w nowym bloku z windą na ul. Myśliwskiej (Podgórze).
Mieszkanie o wystawie północno-południowej składa się z:
- przedpokoju z szafą na wymiar,
- salonu z wyjściem na balkon o pow. 6,20 m2 umeblowanego w sofę, stół z krzesłami, regału rtv,
- aneksu kuchennego kompletnie umeblowanego i wyposażonego (lodówka, piekarnik, płyta indukcyjna, okap, zmywarka)
- dwóch sypialni z łóżkami z materacami oraz szafami,
- łazienki z wanną, wyposażoną także w pralkę,
- oddzielnego wc.
Opłata eksploatacyjna 552 PLN + media (woda ciepła i zimna, ogrzewanie, śmieci, prąd) rozliczane wg zużycia + Internet (światłowód).
Jest możliwość zakupu komórki lokatorskiej czy miejsca postojowego w garażu lub przed budynkiem w dodatkowej cenie.
Cena mieszkania 950 000 zł brutto. Kupujący zwolniony z opłaty pcc.
Koszt miejsc postojowych i komórek:
- w garażu - 45 000 zł
- miejsce 'rodzinne'(podwójne) również w garażu - 70 000 zł
- miejsce naziemne - 35 000 zł
- komórki od ok. 1 m2 do ok. 8 m2 w przedziale 10 000 zł do 45 000 zł/ 1 szt.
W okolicy pełna infrastruktura, blisko liczne sklepy, restauracje, szkoły oraz przystanek autobusowy i tramwajowy z dogodnym dojazdem do centrum miasta.
Serdecznie zapraszamy do oglądania.
Właścicielem nieruchomości jest Heimstaden wiodąca europejska firma działająca w sektorze nieruchomości mieszkaniowych. Grupa jest obecna w Norwegii, Szwecji, Danii, Finlandii, Wielkiej Brytanii, Niemczech, Holandii, Czechach i Polsce. Heimstaden dysponuje około 161 tys. mieszkań o łącznej wartości około 30 mld euro. Firma koncentruje się na nabywaniu, budowie, sprzedaży i zarządzaniu budynkami w oparciu o najwyższej jakości standardy współpracy z partnerami i klientami.
Leach & Lang Property Consultants jest oficjalnym partnerem Heimstaden w zakresie sprzedaży nieruchomości.
Szczegóły oferty na heimstaden_pl (ze względów technicznych adres zapisano z podkreślnikiem. W pasku adresu przeglądarki podkreślnik należy zastąpić kropką).
Prezentowana oferta pochodzi z portfolio Heimstaden, który w rozumieniu art. 4 ustawy z dnia 20 maja 2021 roku o ochronie praw nabywcy lokalu mieszkalnego lub domu jednorodzinnego oraz Deweloperskiego Funduszu Gwarancyjnego działa jako przedsiębiorca inny niż deweloper, co oznacza, że Ustawa jest stosowana w ograniczonym zakresie. Wszystkie mieszkania w tej inwestycji są wykończone w oddanych do użytku inwestycjach.
Certyfikat charakterystyki energetycznej:
Wskaźnik rocznego zapotrzebowania na energię użytkową (EU): 53,59 kWh/(m rok)
Wskaźnik rocznego zapotrzebowania na energię końcową (EK): 89,35 kWh/(m rok)
Wskaźnik rocznego zapotrzebowania na nieodnawialną energię pierwotną (EP): 87,91 kWh/(m rok)
Jednostkowa wielkość emisji CO2 (E CO2): 0,03 t CO2/(m rok)
Udział odnawialnych źródeł energii w rocznym zapotrzebowaniu na energię końcową (U OZE): 0%871 968,6
Niniejsze ogłoszenie jest wyłącznie informacją handlową i nie stanowi oferty w rozumieniu art. 66 Kodeksu Cywilnego.
Więcej podobnych ofert na stronie internetowej www.leachandlang.pl - zapraszamy!