Wszystko w cenie, bez żadnych dopłat.
Istnieje możliwość obejrzenia w tygodniu jak również w sobotę lub niedzielę po wcześniejszym umówieniu telefonicznym.
Pomagamy w pełnym zakresie.
Mieszkanie na kameralnym osiedlu.
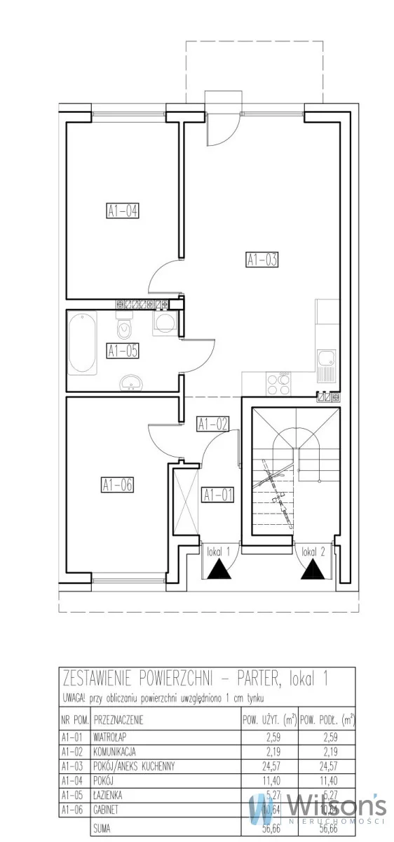
Oferujemy Piękne - 3 pokojowe mieszkanie 56,66 mkw z ogrodem i 2 miejscami parkingowymi w cenie.
Rewelacyjna Lokalizacja . Bliskie Marki.
W okolicy pełna infrastruktura miejska.
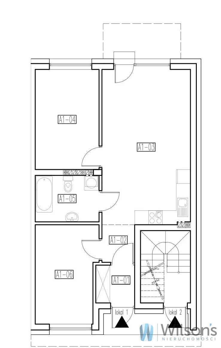
Skład mieszkania:
- Salon z aneksem kuchennym - 24,57 mkw
- Pokój 1 - 11,40 mkw
- Pokój 2 - 10,64 mkw
- Łazienka - 5,27 mkw
- Wiatrołap - 2,59mkw
- Komunikacja - 2,19 mkw
- Ogród ok. - 37 mkw
- 2 Miejsca Parkingowe
....
Zdjęcia w ogłoszeniu to poprzednia już zrealizowana inwestycja.
Oferujemy Państwu mieszkanie bezczynszowe.
Ogromną zaletą mieszkania są niskie koszty utrzymania, kameralność inwestycji, niska zabudowa, położenie w pobliżu placówek oświatowych oraz wykonanie z dobrej jakości materiałów.
Każde z mieszkań posiada oddzielne wejście, ogródek i miejsce postojowe w cenie.
Mieszkania wyposażone są w drzwi zewnętrzne antywłamaniowe, grzejniki i piec.
Dodatkowo ogrzewanie podłogowe w kuchni, łazience i holu, ściany pomalowane gruntem, zamontowane parapety wewnętrzne - kamień, gniazdka oraz kontakty.
Mieszkanie wyposażone jest w instalację gazową, wodną, kanalizacyjną, domofonową i alarmową.
Teren zagospodarowany ogrodzony i wybrukowany.
Termin realizacji: stan deweloperski - IV kwartał 2024
Przewidywane oddanie do użytkowania - IV kwartał 2024
Mieszkanie dla rodzin z dziećmi (szkoła, żłobki, przedszkola) oraz osób ceniących spokój i ciszę, kontakt z naturą (blisko las), a jednocześnie szybki dojazd do centrum Warszawy - w pobliżu pełna infrastruktura miejska.
...
Pomagamy w procedurze kredytowej.
Pomożemy bezstresowo przejść przez proces zakupu mieszkania, dopilnujemy wszelkich formalności.
Zapraszamy do zapoznania się z naszą ofertą, z rynku pierwotnego.
Zakup mieszkania zwolniony jest z opłaty podatku od czynności cywilno - prawnych PCC (oszczędność wynosi 2%).
Zapraszamy do bezpiecznego oglądania w trakcie budowy i zakupu.
Uwag: Część fotografii przedstawia przykładowe możliwości aranżacji wnętrza