KRAKÓW - DĘBNIKI/KLINY
NOWE TRZYPOKOJOWE MIESZKANIE OK.7 8 M2 ! Z TARASEM i DUŻYM OGRÓDKIEM !! Budynek z 20 08 roku.
LOKAL WYKOŃCZONY!
MIESZKANIE DOBRE ZARÓWNO DLA RODZINY JAK I JAKO INWESTYCJA POD WYNAJEM!
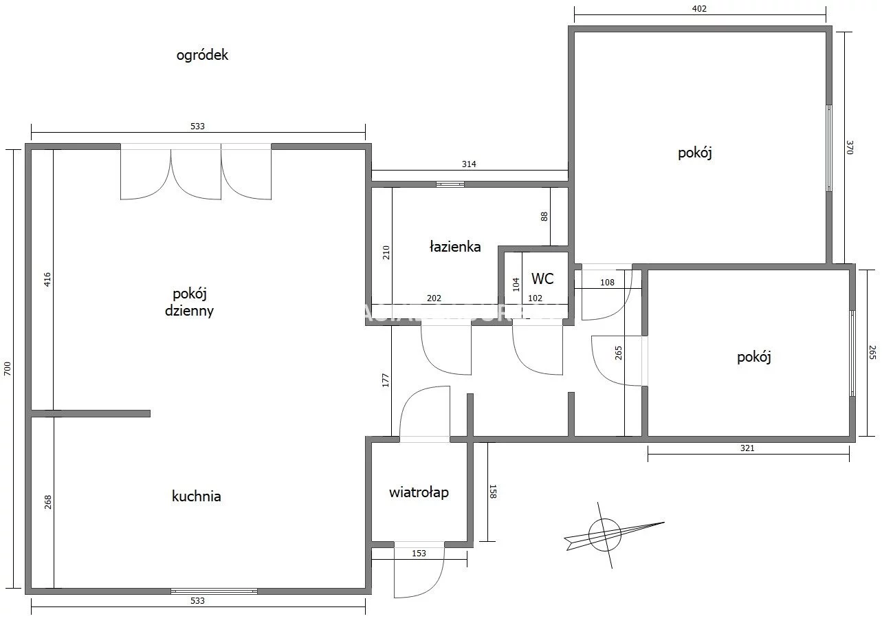
Mieszkanie o powierzchni 77,25 m2 położone na parterze/2 piętrowego kameralnego budynku (tylko 3 lokale, mieszkanie bezczynszowe) z 2008 r.
Lokal składa się:
Z części dziennej: aneksu kuchennego połączonego/otwartego na cześć jadalną i salon, dwóch oddzielnych sypialni w tym, łazienki oraz osobnego wc, przedpokoju, oraz tarasu i dużego ogródka ok.100m2 .
Do mieszkania przynależy miejsce parkingowe naziemne.
Ekspozycja na południe, zachód i wschód.
Ogrzewanie lokalne własne- piec dwufunkcyjny.
Okolica spokojna i cicha.
Mieszkanie jest przestronne i funkcjonalne.
Kuchnia wyposażona (lodówka, zmywarka, okap) meble kuchenne. W pokojach pojemne szafy. Przedpokój duża zabudowana szafa.
W lokalu jest instalacja alarmowa.
Okolica:
liczne sklepy, szkoły, przedszkola, żłobki, różnorodne usługi, centrum fitness, tereny zielone rowerowa spacerowe, parki.
Dobre połączenie komunikacją miejską; linie autobusowe (niedaleko pętla). Bardzo dobry i szybki dojazd do obwodnicy Krakowa (i autostrady A4).
Zapraszam na prezentacje!!
CENA MIESZKANIA 899 000 zł
Kontakt: Piotr Dziadzio
+48 515 234 864
prezentacja bezpłatna po podpisaniu umowy pośrednictwa
::DODATKOWE INFORMACJE
Rodzaj budynku: nowe budownictwo
Dozór budynku: alarm
Gaz: jest
Woda: piec gazowy dwufunkcyjny
Dojazd: asfalt
Otoczenie: działki zabudowane
Ogrzewanie: piec dwufunkcyjny
Linie telefoniczne: TAK
Alarm: TAK
Komunikacja publ.: autobus
Winda: NIE
Rozkład: dwustronne rozkładowe
Usytuowanie: dwustronne
Rolety antywłamaniowe: TAK
Teren ogrodzony: TAK
Opłaty w czynszu: -
Opłaty wg liczników: woda, prąd, gaz
Rodzaj mieszkania: jednopoziomowe
Okna: PCV
Tarasy: taras
Rok budowy: 2008
Liczba pokoi: 3
Liczba sypialni: 2
Podłogi pokoi: panele
Wystawa okien - pokoje : Zach, Wsch, Pd
Typ kuchni: widna
Rodzaj kuchni: aneks kuchenny połączony z jadalnią i salonem
Podłoga kuchni: płytki
Typ łazienki: osobno z wc
Glazura łazienki: nowego typu
Podłoga łazienki: płytki
Wyposażenie łazienki: wanna, natrysk
Glazura WC: nowego typu
Podłoga WC: płytki
Liczba przedpokoi: 1
Podłoga przedpokoi: płytki, panele
::LINK DO STRONY
https://sadurscy.pl/offer/BS1-MS-311514
Zobacz Wirtualny Spacer: https://tour.feelestate.com/view/fullscreen/id/VV31C
::KONTAKT DO AGENTA
Piotr Dziadzio
+48 515-234-864
Zapytaj o ofertę
::DANE BIURA
Oddział BS1, Kapelanka
Kapelanka 1A/1
30-347 Kraków
12 429-25-12
Pośrednik odpowiedzialny zawodowo za wykonanie umowy pośrednictwa: Dariusz Sadurski (licencja nr: 803)