Na sprzedaż 3 pokojowe mieszkanie z balkonem, położone na nowym osiedlu na Ruczaju.
Mieszkanie usytuowane jest na pierwszym piętrze w sześciopiętrowym bloku z 2022 roku, przy ulicy Kobierzyńskiej.
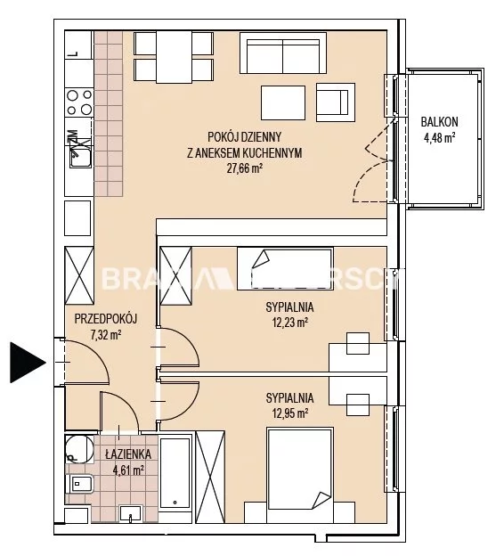
Na powierzchnię 64,77 m2 składa się :
- pokój dzienny połączony z aneksem kuchennym (27,66 m2) oraz wyjściem na balkon,
- dwie sypialnie (12,95 m2 12,23 m2,
- łazienka razem z WC (4,61m2),
- przedpokój (7,32m2).
Osiedle zamknięte blok z monitoringiem.
Mieszkanie wykończone i wyposażone w wysokim standardzie z dbałością o każdy szczegół. Meble w stałej zabudowie robione na wymiar.
Okna nowe PCV o ekspozycji na południowy- wschód.
Drzwi wejściowe antywłamaniowe.
Czynsz wraz z funduszem remontowym, wodą i ogrzewaniem wynosi 550 zł liczony na 1 osobe.
Dodatkowo płatny jest tylko prąd.
Ogrzewanie i ciepła woda - miejskie.
W budynku nie ma gazu.
Mieszkanie gotowe do zamieszkania bez ponoszenia nakładów finansowych.
Widok na osiedle
Mieszkanie jest wygodne i funkcjonalne, a okolica spokojna, zielona i bardzo przyjemna, z pełną infrastrukturą usługowo-handlową. W sąsiedztwie znajdują się liczne sklepy, restauracje, przedszkola, żłobki, szkoła, place zabaw, bank, przychodnia, a także rozległe tereny zielone z alejkami spacerowymi. Blisko jest do przystanków komunikacji miejskiej (autobusy, szybki tramwaj)
Doskonałe mieszkanie pary, a ze względu na sąsiedztwo Kampusu UJ, korporacji BUMA - idealne także jako inwestycja pod wynajem.
Obecny właściciel wynajmuje miejsce parkingowe w garażu podziemnym w budynku w cenie 350 zł/mies - istnieje możliwość przejęcia umowy najmu.
Biuro pomaga bezpiecznie przeprowadzić transakcję.
Zapraszamy do prezentacji.
Kontakt:
Małgorzata Baran-Michałowska
+48 782 390 455
Lub
Zapytaj o ofertę
Prezentacja nieruchomości po podpisaniu umowy pośrednictwa jest bezpłatna.
::DODATKOWE INFORMACJE
Rodzaj budynku: blok
Dozór budynku: os. zamknięte
Głośność: ciche
Plac zabaw: TAK
Widok: na inne budynki
Gaz: brak
Woda: ciepła - miejska
Dojazd: asfalt
Otoczenie: centrum miasta
Ogrzewanie: C.O. miejskie
Komunikacja publ.: autobus miejski, tramwaj
Winda: TAK
Liczba wind: 1
Rozkład: jednostronne
Usytuowanie: jednostronne
Drzwi antywłamaniowe: TAK
Opłaty w czynszu: wywóz śmieci, wywóz nieczystości, woda ciepła, woda, Winda, monitoring, fundusz remontowy, Części wspólne, CO
Opłaty wg liczników: prąd
Rodzaj mieszkania: jednopoziomowe
Garaż: miejsce garażowe
Stan lokalu: bardzo dobry
Okna: PCV
Instalacje: dobre
Balkon: średni
Liczba balkonów: 1
Powierzchnia balkonów/tarasów [m2]: 3
Powierzchnia użytkowa [m2]: 64,7700
Rok budowy: 2022
Liczba pokoi: 3
Wysokość pomieszczeń [m]: 2,7000
Liczba sypialni: 2
Powierzchnia pokoi [m2]: 27,66 12,95 12,23
Podłogi pokoi: panele
Ściany pokoi: gładzie gipsowe
Wystawa okien - pokoje : Pd-Wsch
Typ kuchni: aneks kuchenny - połączony z salonem
Rodzaj kuchni: aneks kuchenny
Podłoga kuchni: panele
Typ łazienki: razem z wc
Liczba łazienek: 1
Powierzchnia łazienki [m2]: 4,61
Glazura łazienki: glazura
Podłoga łazienki: terakota
Wyposażenie łazienki: WC, umywalka, lustro, kabina prysznicowa
Ściany łazienki: glazura
Liczba WC: 1
Glazura WC: glazura
Podłoga WC: terakota
Ściany WC: glazura
Liczba przedpokoi: 1
Powierzchnia przedpokoi [m2]: 7,32
Podłoga przedpokoi: panele
Ściany przedpokoi: gładzie gipsowe
::LINK DO STRONY
https://sadurscy.pl/offer/BS1-MS-312607
::KONTAKT DO AGENTA
Małgorzata Baran-Michałowska
+48 782-390-455
Zapytaj o ofertę
::DANE BIURA
Oddział BS1, Kapelanka
Kapelanka 1A/1
30-347 Kraków
12 429-25-12