Bracia Sadurscy to oficjalny przedstawiciel handlowy dewelopera - kupując z nami nie płacisz prowizji i ukrytych kosztów.
Mam przyjemność zaprezentować Państwu inwestycje mieszkaniową. Przestronna strefa dzienna z dużymi przeszkleniami. W standardzie ogrzewanie podłogowe oraz klimatyzacja!
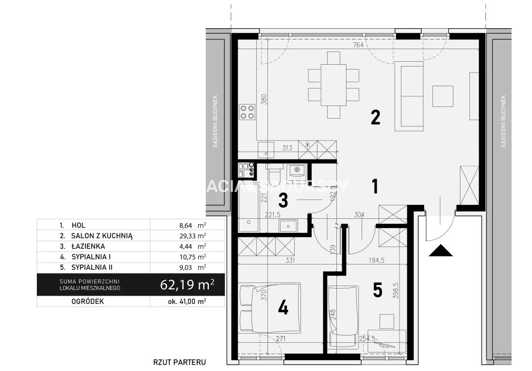
Kameralne osiedle zlokalizowane w sercu Krakowskich Bronowic, łączące wygodę życia w pobliżu rozwiniętej infrastruktury z zaciszną atmosferą okolicy. W sąsiedztwie znajdują się liczne punkty handlowo-usługowe, takie jak Galeria Bronowicka, Ikea, Castorama i Obi, zapewniając wygodny dostęp do codziennych potrzeb. Osiedle składa się z 8 dwulokalowych, jednorodzinnych budynków w zabudowie szeregowej, oferujących 16 przestronnych mieszkań o powierzchni około 62 m². Dodatkowym atutem są przestronne strefy dzienne, duże, nowoczesne okna oraz wysoki standard wykończenia , obejmujący m.in. ogrzewanie podłogowe i instalację klimatyzacyjną .
To idealne miejsce, które łączy komfort z wygodą miejskiego życia.
Termin realizacji inwestycji: czerwiec 2025 rok,
Rozkład mieszkań: parter/1 piętro,
Budynek: dom wielorodzinny,
Miejsce/a postojowe naziemne (dodatkowo płatne)
Miejsca postojowe pod wiatą (dodatkowo płatne)
teren ogrodzony.
Standard wykończenia lokalu mieszkalnego
ŚCIANY:
- ściany między lokalowe oraz ścianki działowe murowane z pustaka ceramicznego, niemalowane
- ściany oraz sufity pokryte tynkiem gipsowym (w łazienkach zatarte na ostro)
POSADZKI:
- wylewka betonowa cementowa, do indywidualnego wykończenia
STOLARKA OKIENNA:
- okna i drzwi balkonowe z PCV, pakiet trzyszybowy - na zewnątrz okleina kolor zbliżony do wizualizacji, wewnątrz białe
DRZWI:
- drzwi wejściowe do lokali antywłamaniowe
- otwory drzwiowe wewnętrzne lokalowe nietynkowane, bez ościeżnic i skrzydeł drzwiowych INSTALACJE:
- instalacja elektryczna 230V bez osprzętu elektrycznego oraz punktami świetlnymi bez opraw (gniazdka, włączniki i lampy do indywidualnego montażu przez Klienta), Instalacja elektryczna 400v (3 faza) doprowadzona do pomieszczenia kuchni dla zasilania kuchenki elektrycznej. W łazience przygotowany punkt elektryczny pod grzejnik drabinowy (do indywidualnego montażu przez Klienta)
- instalacja wodno - kanalizacyjna ( wyposażenie kuchni i łazienek do indywidualnego montażu przez klienta)
- instalacja centralnego ogrzewania oraz ciepłej wody użytkowej zasilana przez piec gazowy dwufunkcyjny, ogrzewanie podłogowe
- instalacja TV podłączona do anteny zbiorczej - z jednym gniazdem - instalacja domofonowa (aparat wideodomofony naścienny)
- instalacja internetowa z jednym gniazdem
- instalacja wentylacji grawitacyjnej
- instalacja klimatyzacji (bez jednostki zewnętrznej i wewnętrznej) - jeden punkt
OGRÓDKI:
- ogródki na parterze wydzielone podstawowym ogrodzeniem panelowym niskim, bez podmurówki
Biuro pomaga bezpiecznie przeprowadzić transakcję.
W celu uzyskania informacji zapraszam do kontaktu ,
Maria Śmiech
Tel: 500 - 673 - 615
E - mail:
Zapytaj o ofertę
::DODATKOWE INFORMACJE
Kategoria oferty: Mieszkania dla rodzin z dziećmi
Rodzaj budynku: szeregowiec
Głośność: idealnie ciche
Widok: na inne budynki
Gaz: jest
Woda: piec gazowy dwufunkcyjny
Dojazd: asfalt
Otoczenie: osiedle
Ogrzewanie: inne
Komunikacja publ.: autobus
Odległość do komunikacji publicznej [m]: 200
Odl. do sklepu [m]: 200
Odl. do szkoły [m]: 2000
Odl. do przedszkola [m]: 2000
Winda: NIE
Rodzaj mieszkania: jednopoziomowe
Garaż: miejsce garażowe
Stan lokalu: deweloperski
Okna: PCV 3 komorowe
Instalacje: dobre
Powierzchnia ogródka [m2]: 41
Powierzchnia użytkowa [m2]: 62,1900
Rok budowy: 2024
Liczba pokoi: 3
Liczba sypialni: 2
Powierzchnia pokoi [m2]: 29.33; 10.75; 9.03
Podłogi pokoi: wylewka
Ściany pokoi: inne
Typ kuchni: aneks kuchenny - połączony z salonem
Rodzaj kuchni: aneks kuchenny połączony z jadalnią i salonem
Podłoga kuchni: wylewka
Typ łazienki: razem z wc
Liczba łazienek: 1
Powierzchnia łazienki [m2]: 4.44
Podłoga łazienki: wylewka
Ściany łazienki: inne
Liczba przedpokoi: 1
Powierzchnia przedpokoi [m2]: 8.64
Podłoga przedpokoi: wylewka
Ściany przedpokoi: inne
::LINK DO STRONY
https://sadurscy.pl/offer/BS2-MS-305946
::KONTAKT DO AGENTA
Maria Śmiech
+48 500-673-615
Zapytaj o ofertę
::DANE BIURA
Oddział BS2, Rynek Pierwotny
Przewóz 47
30-081 Kraków
12 630-90-45
--------------------------
::GRATIS | Nasza prowizja zawiera: koszt przedwstępnej notarialnej umowy sprzedaży nieruchomości z rynku wtórnego.
::GWARANCJA | Gwarancja zwrotu zadatku. Więcej informacji na sadurscy.pl/zwrot-zadatku/
Oferta wysłana z systemu Galactica Virgo