Oferta dodana za pomocą Multiportalu BeBroker
Na sprzedaż 3-pokojowy mieszkanie w budynku o podwyższonym standardzie.
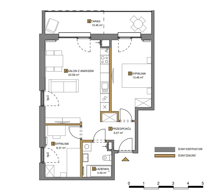
Lokal o powierzchni 55,7 m², w stanie deweloperskim, położony na Warszawskiej Woli, przy ul. Kolejowej 19 – tuż przy granicy z Centrum Warszawy.
Układ mieszkania
Mieszkanie znajduje się na 3. piętrze i wyróżnia się przemyślanym, funkcjonalnym rozkładem — salon z aneksem kuchennym, duża sypiania z miejscem na garderobę, druga sypiania/gabinet, łazienka + dodatkowo balkon. Z mieszkania widok na panoramę centrum Warszawy i biurowców przy Rondzie Daszyńskiego.
Atuty mieszkania:
narożne
dobrze doświetlone
balkon
sypialnia z miejscem na garderobę
przestronny salon z aneksem kuchennym
druga sypialnia lub gabinet
miejsce w garażu z przyłączem do ładowarki
Dla mieszkania przygotowany jest projekt wykończenia pod klucz jak na wizualizacjach. Sprzedaż razem z gotowym projektem do dostosowania przez architekta.
Do lokalu przynależy miejsce parkingowe w garażu podziemnym, dostępne za dodatkową opłatą w wysokości 68 000 zł.
Mam na sprzedaż również mieszkanie o takim samym rozkładzie i z dużym balkonem.
Osiedle
Budynek jest częścią inwestycji "Kolej na 19", zrealizowanej przez dewelopera PHN i oddanej do użytku właśnie przed chwilą w listopadzie 2024 roku. Prace wykończeniowe można prowadzić od zaraz. Kameralne osiedle składa się z czterech budynków, zaprojektowanych z dbałością o detale:
wysoki standard wykończenia,
stylowa elewacja,
ochrona, teren zamknięty
kontrola dostępu, wideodomofony
starannie zaplanowane tereny wspólne.
Lokalizacja
Ulica Kolejowa zapewnia doskonałą komunikację z każdą częścią miasta:
Metro Rondo Daszyńskiego – 8 minut,
Stacja PKP/SKM Warszawa Ochota – 13 minut,
Dworzec Warszawa Zachodnia – 15 minut,
Dworzec Warszawa Centralna – 11 minut,
Trasa S7 – 5 minut,
Lotnisko Chopina – 25 minut.
W okolicy znajdują się sklepy, centra handlowe, biura, kluby fitness oraz pełna infrastruktura usługowa.
Informacje dodatkowe
Sprzedaż bezpośrednia. NA ŻADNYCH WARUNKACH I POD ŻADNYM POZOREM NIE WSPÓŁPRACUJĘ Z BIURAMI NIERUCHOMOŚCI.
Telefon: 790892800