Apartamenty zlokalizowane będą w bliskim sąsiedztwie terenów zielonych i rekreacyjnych oraz w niedalekiej odległości od centrum miasta. Nowoczesna zabudowa, z dobrym dostępem do infrastruktury, wpisze się w okoliczny krajobraz i sprawi, że osiedle stanie się przyjemnym miejscem dla ceniących prywatność mieszkańców.
Wysoki standard. Wysoka jakość wykończenia i materiałów, estetyczne części wspólne, przestrzeń. Prywatna siłownia ze strefą do jogi, własna tężnia solankowa, portiernia.
Kameralne sąsiedztwo ukryte na uboczu osiedle, optymalna ilość mieszkań w budynku i na piętrze dają kameralną, domową atmosferę i poczucie intymności.
Mieszkania od 42 do 113 m2; 2, 3 lub 4 pokoje; Tarasy do 55m2, ogródki do 116 m2.
Widok, otoczenie i zieleń:
Park Jordana - Ponad 20 ha zabytkowego parku w odległości 2 km. Boiska, place zabaw, miasteczko rowerowe i punkty gastronomiczne.
Błonia Krakowskie - 1 km do Błoń. Wybierz spacer, rolki, piknik, klub tenisowy, ulubioną restauracje. A co najlepsze - dotrzesz tu w 15 minut pieszo.
Las Wolski - 12 minut do ZOO, Młynówka Królewska, Rudawa i jej ścieżki spacerowe oraz widok na Kopiec Kościuszki.
Termin realizacji: IV kwartał 2023 r.
::DODATKOWE INFORMACJE
Rodzaj budynku: budynek wielorodzinny
Dozór budynku: monitoring
Głośność: średnio głośne
Widok: na osiedle
Gaz: brak
Woda: tak - miejska
Dojazd: asfalt
Otoczenie: działki zabudowane
Ogrzewanie: miejskie
Linie telefoniczne: TAK
Komunikacja publ.: autobus
Winda: TAK
Liczba wind: 1
Rozkład: rozkładowe
Usytuowanie: dwustronne
Drzwi antywłamaniowe: TAK
Opłaty w czynszu: -
Rodzaj mieszkania: jednopoziomowe
Garaż: możliwość kupna
Stan lokalu: deweloperski
Okna: PCV
Instalacje: nowe
Rok budowy: 2022
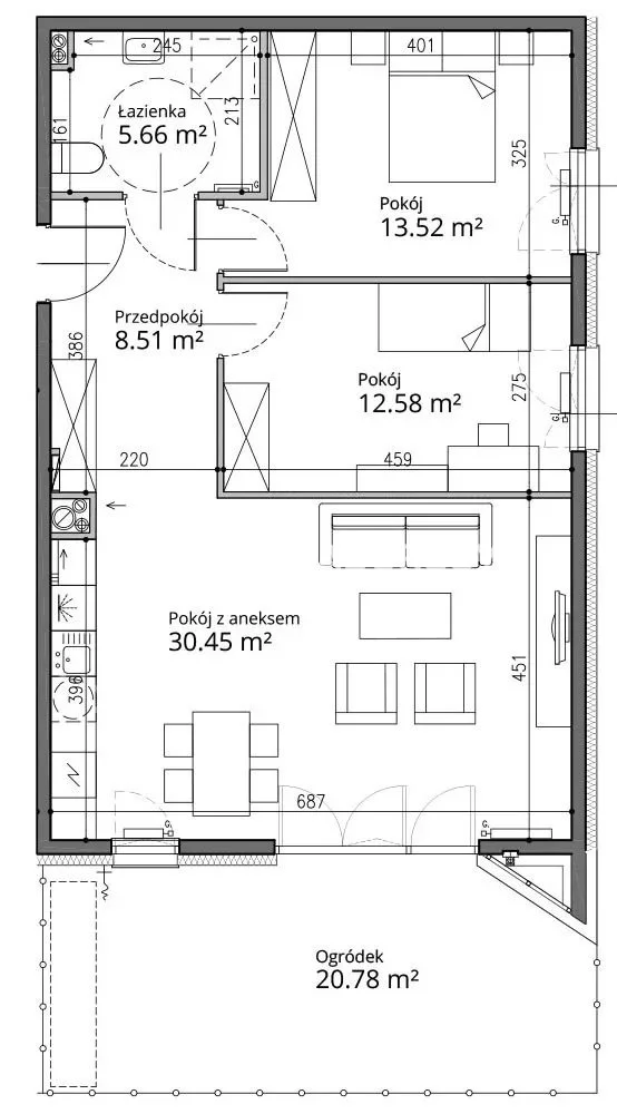
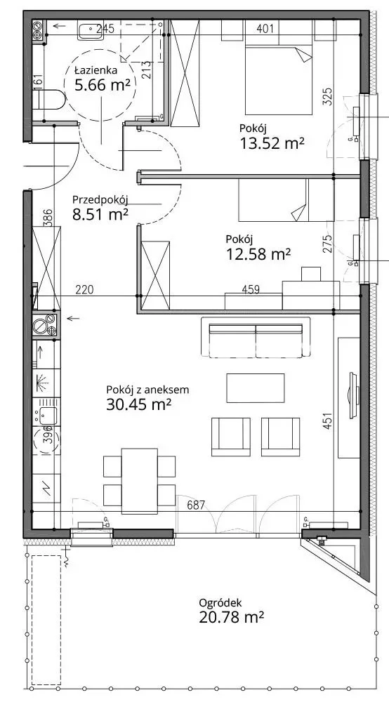
Liczba pokoi: 3
Liczba sypialni: 1
Podłogi pokoi: wylewka
Ściany pokoi: zwykłe
Typ kuchni: aneks kuchenny - połączony z salonem
Rodzaj kuchni: otwarta na salon
Podłoga kuchni: wylewka
Typ łazienki: razem z wc
Liczba łazienek: 1
Glazura łazienki: bez glazury
Podłoga łazienki: wylewka
Ściany łazienki: zwykłe
Liczba przedpokoi: 1
Podłoga przedpokoi: wylewka
Ściany przedpokoi: zwykłe
::LINK DO STRONY
https://sadurscy.pl/offer/BS2-MS-309639
::KONTAKT DO AGENTA
Marek Popiela
+48 518-967-677
Zapytaj o ofertę
::DANE BIURA
Oddział BS2, Rynek Pierwotny
Przewóz 47
30-081 Kraków
12 630-90-45
--------------------------
::GRATIS | Nasza prowizja zawiera: koszt przedwstępnej notarialnej umowy sprzedaży nieruchomości z rynku wtórnego.
::GWARANCJA | Gwarancja zwrotu zadatku. Więcej informacji na sadurscy.pl/zwrot-zadatku/
Oferta wysłana z systemu Galactica Virgo