Stary Mokotów - na sprzedaż mieszkanie, 3 pokoje, rozkładowe w kamienicy z 1939 roku.
Na sprzedaż przestronne, dwustronne mieszkanie w sercu Starego Mokotowa - przy ul. Niepodległości, w sąsiedztwie Skweru ks. Jana Twardowskiego, kina Iluzjon i Polskiej Wytwórni Papierów Wartościowych. Lokal mieści się na 1. piętrze kameralnej kamienicy z windą, gdzie na piętrze znajdują się jedynie dwa mieszkania.
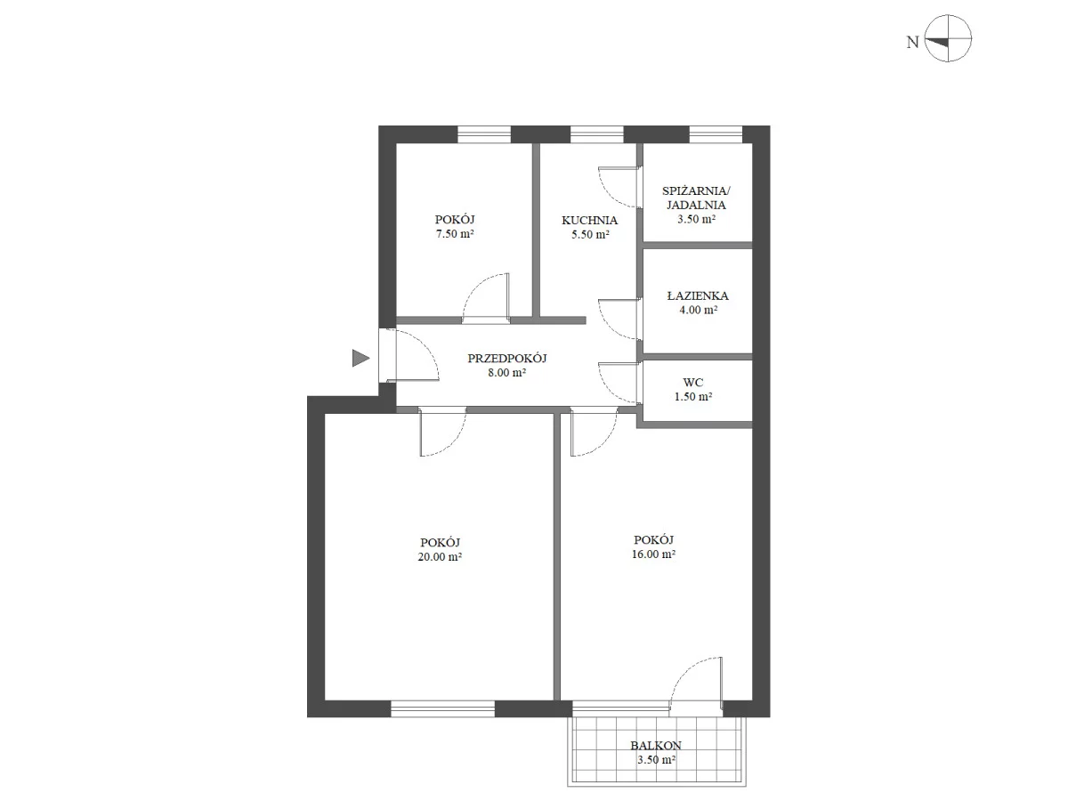
Układ pomieszczeń:
- pokój ok. 20 m²,
- pokój ok. 16 m² z wyjściem na balkon (ok. 3,5 m²),
- pokój ok. 7,5 m² - idealny na gabinet lub pokój dziecka,
- oddzielna kuchnia z przylegającą dawną służbówką - dziś spiżarnią lub jadalnią,
- łazienka z kabiną prysznicową i WC,
- dodatkowo osobne WC.
- spory przedpokój z możliwością aranżacji pakownych szaf
Mieszkanie jest jasne i dobrze doświetlone dzięki dużym oknom. Wysokie - 3m. Dwustronne. Okna na Niepodległości i na patio. Na podłodze parkiet dębowy. Wymaga odświeżenia. Łatwo też będzie zaaranżować wnętrze według własnych potrzeb. Właściciel mieszkania korzysta z dwóch piwnic.
Atuty lokalizacji:
- zaledwie kilka minut pieszo do stacji Metro Pole Mokotowskie,
- zielona i prestiżowa część Mokotowa, pełna klimatycznych kamienic, parków i kawiarni,
- doskonała komunikacja z centrum miasta oraz innymi dzielnicami - linia tramwajowa północ - południe oraz nowo budowana wschód zachód (tzw. tramwaj na Wilanów) w pobliżu także linie autobusowe
- niedaleko uczelnia SGH, park Pole Mokotowskie
Najważniejsze cechy:
✔ kamienica z historią - rok budowy 1939,
✔ tylko 2 mieszkania na piętrze,
✔ winda, balkon, piwnice,
✔ funkcjonalny układ pomieszczeń,
✔ wysokie - 3m, z dużymi oknami,
✔ atrakcyjna lokalizacja - Stary Mokotów.
Mieszkanie nada się zarówno dla rodziny, osób pracujących w domu, studentów ale też pod biuro lub kancelarię.
Może być świetnym miejscem pracy dla księgowych, prawników, notariusza, architektów itp.
Parking wzdłuż Niepodległości objęty Strefą Płatnego Parkowania - możliwy abonament mieszkańca.
Opłaty administracyjne z zaliczkami na wodę i ogrzewanie na poziomie 1240 zł.
Zapraszamy do zapoznania się z ofertą mieszkania na sprzedaż. Jeśli jednak szukasz czegoś innego, sprawdź, czy nie mamy takiego mieszkania na sprzedaż. Współpracujemy z wieloma biurami nieruchomości i agencjami, dzięki czemu nasi doradcy mogą zaoferować naprawdę wiele propozycji ofert na sprzedaż, także ma dostęp do mieszkań jeszcze nie wystawionych na rynku. Skontaktuj się z doradcą wskazanym przy ofercie i zapytaj o szczegóły!
A może chcesz sprzedać podobną nieruchomość i szukasz warunków do porównania? Skontaktuj się z naszym doradcą wskazanym przy ofercie, który pomoże w przygotowaniu najlepszej strategii sprzedaży Twojego mieszkania.
----
Chcesz kupić, sprzedać lub wynająć nieruchomość? W ramach świadczonej usługi proponujemy aktywny marketing, dzięki czemu nieruchomości szybciej się sprzedają lub wynajmują. Dla domów i mieszkań przygotowujemy profesjonalną oprawę wizualną w tym home staging, sesje fotograficzne, wykonujemy rzuty i plany. Oferty publikujemy na większości portali internetowych, w systemach MLS, na nieruchomościach umieszczamy banery, przygotowujemy i dystrybuujemy informacje drukowane, organizujemy akcje typu "Dzień Otwarty".
Jako profesjonaliści możemy wspierać naszych Klientów w całym procesie sprzedaży / zakupu / wynajmu nieruchomości - także pomagając w negocjacjach czy doradzając szczegółowe zapisy w umowach, dbając o zabezpieczenie ich interesów.
Jeśli potrzebujesz skorzystać z kredytu hipotecznego na zakup nieruchomości - również pomożemy go uzyskać w jednym z kilkudziesięciu banków i instytucji finansowych.
Potrzebujesz agenta lub chcesz uzyskać więcej informacji? Skontaktuj się z doradcą wskazanym przy ofercie!