|
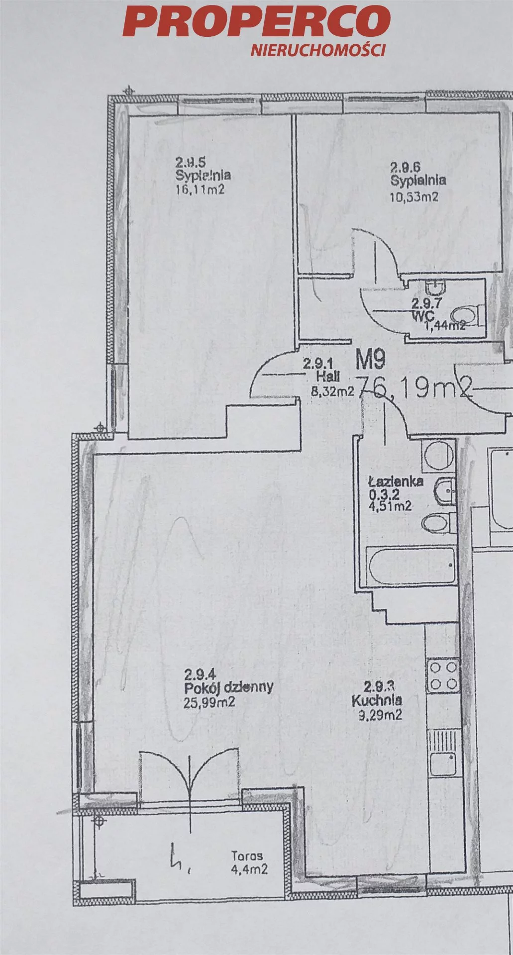
Do wynajęcia 3 - pokojowe mieszkanie o pow. 75,16 m2 zlokalizowane na drugim piętrze w czteropiętrowym bloku na osiedlu Podkarczówka.
W skład mieszkania wchodzą:
- salon ( pow. 25,99 m2) z aneksem kuchennym (pow. 9,29 m2) z wyjściem na balkon (pow. 4,4 m2),
- sypialnia (pow. 16,11 m2),
- sypialnia (pow. 10,53 m2),
- łazienka (pow. 4,51 m2),
- WC (pow. 1,44 m2),
- hall (pow. 8,32 m2),
Mieszkanie w pełni umeblowane, wykończone przy użyciu wysokiej jakości materiałów i wyposażone w sprzęt AGD (mikrofalówka do zabudowy, pralka, zmywarka, płyta indukcyjna, lodówka). Mieszkanie ciepłe, słoneczne (ekspozycja okien: południe - zachód - północ). Na podłogach w kuchni, łazience oraz przedpokoju - gres, w pokojach - parkiet bukowy.
Miejsce parkingowe zewnętrzne płatne dodatkowo 100 PLN/miesiąc. Miejsce parkingowe w hali garażowej płatne dodatkowo 200 PLN/ miesiąc.
Ogrzewanie i ciepła woda z sieci miejskiej (brak piecyków gazowych w budynku).
Czynsz najmu: 2000 PLN + czynsz administracyjny ok. 600 PLN (zawiera zaliczkę na ogrzewanie, wodę ciepłą i zimną, utrzymanie części wspólnych) + prąd wg wskazań licznika (zaliczkowo 100 PLN /miesiąc).
Kaucja 2500 PLN.
Budynek zlokalizowany w spokojnej i cichej okolicy. Z okien rozciąga się widok na las i kościół na Karczówce. Dogodny dojazd do centrum miasta. W pobliżu instytucje publiczne (przedszkole, szkoła podstawowa, basen), kościół, liczne sklepy.
Dla nieruchomości nie sporządzono świadectwa charakterystyki energetycznej.
Dane kontaktowe do agenta: Jacek Kotlarz, tel: 888 889 441, e-mail:
Zapytaj o ofertę
For more information in English please call: 888 889 441, e-mail:
Zapytaj o ofertę
------
For rent a 3-room apartment with an area of 75.16 m2 located on the second floor in a four-storey block in the Podkarczówka estate.
The apartment comprises:
living room (area 25.99 m2) with kitchenette (area 9.29 m2) and access to a balcony (area 4.4 m2),
bedroom (area 16.11 m2),
bedroom (area 10.53 m2),
bathroom (area 4.51 m2),
WC (area 1.44 m2),
hall (area 8.32 m2),
The apartment is fully furnished, finished using high-quality materials and equipped with household appliances (built-in microwave, washing machine, dishwasher, induction hob, refrigerator). Warm, sunny apartment (window exposure: south - west - north). Porcelain tiles in the kitchen, bathroom and hall; beech parquet flooring in the rooms.
Outdoor parking space additionally 100 PLN/month. Parking space in the underground garage additionally 200 PLN/month.
Heating and hot water from the district network (no gas water heaters in the building).
Rent: 2000 PLN + administrative fee approx. 600 PLN (includes advances for heating, hot and cold water, maintenance of common areas) + electricity according to meter readings (advance 100 PLN/month).
Deposit 2500 PLN.
The building is located in a quiet and peaceful area. The windows offer a view of the forest and the church on Karczówka. Convenient access to the city centre. Nearby public institutions (kindergarten, primary school, swimming pool), church, numerous shops.
No energy performance certificate has been prepared for the property.
Contact details for the agent: Jacek Kotlarz, tel: 888 889 441, e-mail:
Zapytaj o ofertę
::LINK DO STRONY |
https://www.properco.pl/szczegoly,6934112.html
::KONTAKT DO AGENTA |
Jacek Kotlarz |
+48 41 310 90 71 |
+48 888 889 441 |
Zapytaj o ofertę
--------------------------
Biuro Nieruchomości PROPERCO sp. z o.o. sp.k. współpracuje z doświadczonymi specjalistami finansowymi, oferującymi sprawdzenie zdolności kredytowej oraz przedstawienie oferty finansowania nieruchomości / Informacje dotyczące opisu nieruchomości podane są przez właściciela, mają charakter wyłącznie informacyjny i mogą podlegać aktualizacji. Oferta dotycząca nieruchomości nie stanowi oferty określonej w art. 66 i następnych KC. Nasze usługi świadczymy w oparciu o umowę pośrednictwa, która gwarantuje Państwu opiekę naszego doradcy przez cały okres trwania współpracy. Za wykonaną usługę pobieramy wynagrodzenie zgodnie z warunkami uzgodnionymi w zawartej umowie /// The real estate agency PROPERCO sp. z o.o. sp.k. collaborates with experienced financial specialists, offering creditworthiness assessment and presenting property financing offers. Information regarding property descriptions is provided by the owner, is purely informational, and may be subject to updates. The property offer does not constitute a specific offer as defined in Art. 66 and subsequent articles of the Civil Code. Our services are provided based on a brokerage agreement, ensuring you the care of our advisor throughout the entire collaboration period. We charge a fee for the services rendered according to the terms agreed upon in the concluded agreement.
Zapraszamy do siedziby naszego biura w Kielcach przy ul. Koziej 3a/1. /// We invite you to visit our office located in Kielce at 3a/1 Kozia Street.
Dane adresowe /// Address details:
PROPERCO sp. z o.o. sp.k
ul. Kozia 3a/1
25-514 Kielce
tel. kom: +48 692-024-827
https://www.properco.pl/