Na sprzedaż prestiżowa nieruchomość o powierzchni całkowitej 197,98 m2 z 27,65 m2 grodem, balkonem oraz garażem. Ekskluzywna inwestycja, której termin realizacji przypada na I kwartał 2026 r. znajduje się przy ul. G. Zapolskiej, obok ulice: Wesele, Stańczyka, Bronowicka.
Szybki dojazd do: Centrum Krakowa, Starego Miasta, Galerii Krakowskiej, Galerii Bronowice, Ikea, Castorama, Obi, Zabierzowa, lotniska w Balicach.
LOKALIZACJA:
Inwestycja położona jest w samym sercu Bronowic, jest to idealne miejsce dla osób szukających pięknego oraz spokojnego miejsca do życia zachowując fantastyczne połączenie z centrum miasta, dzięki licznymi przystankom tramwajowym i autobusowym.
Obok znajdują się takie ulice jak: Wesele, Stańczyka, Przybyszewskiego, Bronowicka.
PODSTAWOWE PARAMETRY INWESTYCJI:
- Inwestycja składa się z 2 budynków mieszkalnych jednorodzinnych dwulokalowych w zabudowie szeregowej z garażami wbudowanymi.
- 4 lokale o powierzchniach całkowitej między 148 m2 a 197,98 m2 z ogrodami i balkonami.
- Zakończenie inwestycji I kwartał 2026 r.
STANDARD INWESTYCJI:
Lokale mieszkalne będą oddawane do użytku w stanie deweloperskim obejmującym m.in.: ocieplenie ze styropianu/ wełny mineralnej 20 cm, wylewki cementowe, tynki gipsowe, stolarkę aluminiową, ogrzewanie podłogowe zasilane pompą ciepła, instalację wentylacji mechanicznej, rozprowadzenie instalacji pod montaż klimatyzacji. Ogrzewanie podłogowe, okna aluminiowe, pompa ciepła, rekuperacja. Przygotowanie instalacji pod panele fotowoltaiczne oraz rolety zewnętrzne od frontowej części budynku.
NIERUCHOMOŚĆ:
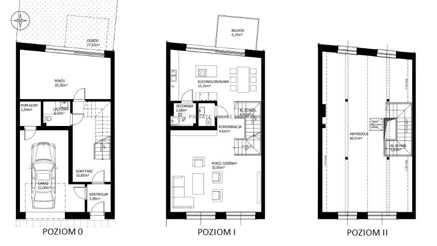
Trzypoziomowa nieruchomość o powierzchni całkowitej 197,98 m2 składa się z:
POZIOM 0 (62,49 m2):
- Pokój 20.50 m2
- Łazienka 3,32 m2
- Korytarz 10,85 m2
- Garaż: 22 m2
- Pomieszczenie gospodarcze 2,54 m2
- Wiatrołap 3,28 m2
- Ogród: 27,65 m2
POZIOM I (69,06 m2):
- Salon: 32,65 m2
- Kuchnia z jadalnią: 21,31 m2
- Spiżarnia: 2,68 m2
- Toaleta: 1,89 m2
- Schody: 5,92m2a
- Korytarz: 4,61 m2
- Balkon: 6,15 m2
POZIOM II (66,43 m2):
- Antresola: 60,51 m2
- Schody: 5,92m2
SPOSÓB PŁATNOŚCI/ TRANSZE:
- 25% 06.02.2025 r.
- 25% 30.05.2025 r.
- 25% 30.10.2025 r.
- 25% 28.02.2026 r.
CENA:
2 575 000 PLN Cena nieruchomości z garażem
Gorąco polecam i zapraszam do obejrzenia mieszkania.
KONTAKT:
Izabela Kołodziejczyk
+48 731 070 300
Zapytaj o ofertę
————————————————————————————-
Czy wiesz, że z Private House Brokers możesz kupić nieruchomość kompleksowo, tzn. załatwiając wszystko w jednej firmie? Oprócz agentów nieruchomości pomagających w znalezieniu i zakupie nieruchomości, oddajemy Ci do dyspozycji doświadczonych ekspertów kredytowych, zdolnych architektów wnętrz i zaradnych specjalistów od zarządzania najmem. Dzięki temu z nami znajdziesz nieruchomość, sfinansujesz jej zakup, zaprojektujesz i wykończysz jej wnętrze a następnie sprzedasz lub wynajmiesz z opcją przekazania nam nieruchomości do zarządzania najmem.
Zainteresowany? Zapytaj opiekuna oferty o szczegóły.
Wirtualna Wizyta -- YouTube: https://www.youtube.com/watch?v=ypMd6vajjU0
For sale prestigious property with a total area of 197.98 m2 with a 27.65 m2 garden, balcony and garage. Exclusive investment, the completion date of which is the first quarter of 2026, is located at G. Zapolskiej Street, next to the streets: Wesele, Stańczyka, Bronowicka.
Quick access to: Krakow Center, Old Town, Galeria Krakowska, Galeria Bronowice, Ikea, Castorama, Obi, Zabierzów, Balice airport.
LOCATION:
The investment is located in the heart of Bronowice, it is an ideal place for people looking for a beautiful and quiet place to live while maintaining a fantastic connection to the city center, thanks to numerous tram and bus stops. Nearby are such streets as: Wesele, Stańczyka, Przybyszewskiego, Bronowicka.
BASIC INVESTMENT PARAMETERS:
- The investment consists of 2 single-family two-unit terraced houses with built-in garages.
- 4 premises with a total area between 148 m2 and 197.98 m2 with gardens and balconies.
- Completion of the investment Q1 2026
INVESTMENT STANDARD:
The residential premises will be put into use in a developer's standard including, among others: 20 cm polystyrene / mineral wool insulation, cement screeds, gypsum plasters, aluminum joinery, underfloor heating powered by a heat pump, mechanical ventilation installation, distribution of installation for air conditioning installation. Underfloor heating, aluminum windows, heat pump, recuperation. Preparation of installation for photovoltaic panels and external roller shutters from the front of the building.
PROPERTY:
The three-level property with a total area of 197.98 m2 consists of:
LEVEL 0 (62.49 m2):
- Room 20.50 m2
- Bathroom 3.32 m2
- Corridor 10.85 m2
- Garage: 22 m2
- Utility room 2.54 m2
- Vestibule 3.28 m2
- Garden: 27.65 m2
LEVEL I (69.06 m2):
- Living room: 32.65 m2
- Kitchen with dining room: 21.31 m2
- Pantry: 2.68 m2
- Toilet: 1.89 m2
- Stairs: 5.92m2a
- Corridor: 4.61 m2
- Balcony: 6.15 m2
LEVEL II (66.43 m2):
- Mezzanine: 60.51 m2
- Stairs: 5.92m2
PAYMENT METHOD/TRANCHES:
- 25% 06/02/2025
- 25% 30/05/2025
- 25% 30/10/2025
- 25% 28/02/2026
PRICE:
2 575 000 PLN - Price of property with garage
I highly recommend and invite you to view the apartment.
CONTACT:
Izabela Kołodziejczyk
+48 731 070 300
Zapytaj o ofertę
—————————————————————————————-
Did you know that with Private House Brokers you can buy real estate comprehensively, i.e. by arranging everything in one company? In addition to real estate agents helping you find and purchase real estate, we provide you with experienced credit experts, talented interior designers and resourceful lease management specialists. Thanks to this, you will find a property with us, finance its purchase, design and finish its interior and then sell or rent it with the option of transferring the property to us for lease management. Interested?
Ask the offer manager for details.