*** 0% PROWIZJI OD KUPUJĄCEGO ***
*** Brak podatku 2% PCC ***
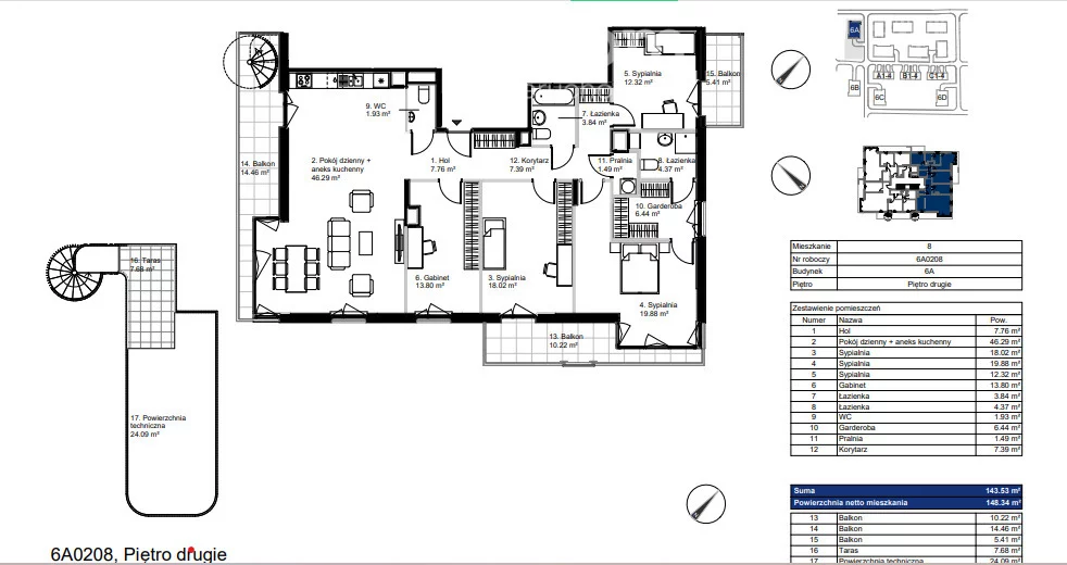
Na sprzedaż 5 pokojowe mieszkanie o powierzchni 143,53 m², w prestiżowej inwestycji na Mokotowie. Inwestycja skierowana jest zarówno do rodzin z dziećmi, jak i do osób szukających komfortowego życia z dala od miejskiego zgiełku, a jednocześnie z dobrym dostępem do infrastruktury miejskiej.
Mieszkanie składa się z:
- pokoju dziennego z aneksem kuchennym - 46,29 m2
- sypialni - 19,88 m2
- sypialni -18,02 m2
- sypialni - 13,80 m2
- sypialni - 12,32 m2
- łazienki - 4,37 m2
- łazienki - 3,84 m2
- WC - 1,93 m2
- hallu - 7,76 m2
- korytarzu - 7,39 m2
- garderoby - 6,44 m2
- pralni - 1,49 m2
+ balkonu - 5,41 m2
+ balkonu - 10,22 m2
+ balkonu - 14,46 m2
+ taras - 7,68 m2
+ powierzchnia techniczna - 24,09 m2
Z przyjemnością prezentuję Państwu wyjątkową inwestycję, realizowaną przez renomowanego dewelopera. To kolejny etap cieszącego się dużym zainteresowaniem osiedla zlokalizowanego w zielonej części Mokotowa – na warszawskich Stegnach, w sąsiedztwie Parku Arkadia i rezerwatu Jeziorko Czerniakowskie.
Główne atuty nieruchomości:
Certyfikat środowiskowy BREEAM Very Good – gwarancja jakości i zrównoważonego budownictwa
Nowoczesne, ekologiczne rozwiązania: pompy ciepła, rekuperacja, panele fotowoltaiczne
System smart home Appartme – inteligentne zarządzanie mediami z poziomu aplikacji
Kameralna, niska zabudowa z dużą ilością zieleni i strefami rekreacyjnymi
Doskonała lokalizacja – szybki dojazd do centrum miasta, bliskość szkół, przedszkoli
To doskonały przykład nowoczesnej architektury, która łączy estetykę z funkcjonalnością. Elewacje willi miejskich wykończono eleganckimi płytkami ceramicznymi, nadając im niepowtarzalny charakter. W zależności od lokalizacji, mieszkańcy będą mieli do dyspozycji przestronne balkony, tarasy lub prywatne ogródki. Dodatkowym atutem są tarasy na dachach, dostępne dla lokatorów najwyższych pięter – idealne miejsce na relaks z widokiem.
Zastosowano szereg nowoczesnych i ekologicznych rozwiązań, które podnoszą komfort życia mieszkańców, a jednocześnie minimalizują wpływ na środowisko. Oto główne z nich:
- Pompy ciepła – energooszczędne ogrzewanie i ciepła woda
- Rekuperacja – wentylacja z odzyskiem ciepła
- Panele fotowoltaiczne – zielona energia dla części wspólnych
- Smart home Appartme – zdalne zarządzanie mediami
- Certyfikat BREEAM Very Good – potwierdzenie wysokiej jakości ekologicznej
- Tereny zielone i retencja wody – wspieranie bioróżnorodności
------------
Zapraszam do kontaktu telefonicznego lub mailowego, z chęcią odpowiem na pytania oraz zaprezentuję inne dostępne mieszkanie w tej inwestycji.
Anna Holweg
Agent Nieruchomości
+48 534 935 159
Zapytaj o ofertę
------------
Finansując zakup nieruchomości kredytem warto wcześniej sprawdzić swoją zdolność kredytową. Nasi doradcy finansowi pomogą w organizacji wszystkich formalności niezbędnych do uzyskania kredytu oraz przygotują dla Państwa ofertę na bardzo preferencyjnych warunkach.
Powyższa oferta ma charakter informacyjny i nie jest ofertą w rozumieniu art. 66 par. 1 Kodeksu Cywilnego. Opis nieruchomości został sporządzony na podstawie informacji uzyskanych od właściciela i może być aktualizowany. Skontaktuj się z nami w celu zapoznania się ze szczegółami oferty.
Właścicielem ogłoszenia wraz z jego elementami jest Freedom Nieruchomości Sp. z o.o. lub podmioty współpracujące. Wszelkie prawa zastrzeżone. Kopiowanie, rozpowszechnianie oraz korzystanie z niniejszych materiałów w jakikolwiek inny sposób wykraczający poza dozwolony użytek określony przepisami ustawy z 4 lutego 1994 r. o prawie autorskim i prawach pokrewnych (Dz. U. 1994, nr 24 poz. 83 z późn. zm.) bez pisemnej zgody Freedom Nieruchomości Sp. z o.o. lub podmiotów współpracujących jest zabronione i może stanowić podstawę odpowiedzialności cywilnej oraz karnej. Ponadto niniejsze materiały stanowią tajemnicę przedsiębiorstwa Freedom Nieruchomości Sp. z o.o. lub podmiotów współpracujących w rozumieniu ustawy z dnia 16 kwietnia 1993 r. o zwalczaniu nieuczciwej konkurencji (Dz. U. z 2003 r., Nr 153, poz. 1503 z późn. zm.).
"Właścicielem ogłoszenia wraz z jego elementami jest Freedom Nieruchomości Sp. z o.o. lub podmioty współpracujące. Wszelkie prawa zastrzeżone. Kopiowanie, rozpowszechnianie oraz korzystanie z niniejszych materiałów w jakikolwiek inny sposób wykraczający poza dozwolony użytek określony przepisami ustawy z 4 lutego 1994 r. o prawie autorskim i prawach pokrewnych (Dz. U. 1994, nr 24 poz. 83 z późn. zm.) bez pisemnej zgody Freedom Nieruchomości Sp. z o.o. lub podmiotów współpracujących jest zabronione i może stanowić podstawę odpowiedzialności cywilnej oraz karnej.
Ponadto niniejsze materiały stanowią tajemnicę przedsiębiorstwa Freedom Nieruchomości Sp. z o.o. lub podmiotów współpracujących w rozumieniu ustawy z dnia 16 kwietnia 1993 r. o zwalczaniu nieuczciwej konkurencji (Dz. U. z 2003 r., Nr 153, poz. 1503 z późn. zm.). Niniejsze ogłoszenie nie stanowi oferty w rozumieniu Kodeksu Cywilnego, lecz ma charakter informacyjny."
Oferta wysłana z programu dla biur nieruchomości ASARI CRM (asaricrm.com)