5-POKOJOWE MIESZKANIE Z 2 BALKONAMI
Bez prowizji i podatku PCC
W ofercie różne powierzchnie mieszkań
Ergonomiczne układy mieszkań z możliwością wprowadzenia zmian lokatorskich, dostępne układy 2 5-pokojowych lokali.
Obecnie można skorzystać z promocji!
Miejsce parkingowe GRATIS oraz możliwość płatności 20/80.
Promocja dotyczy wybranych mieszkań, zapraszamy do kontaktu.
Każde mieszkanie ma taras, balkon lub loggię. Dodatkowo, możesz wykupić komórkę lokatorską i miejsce postojowe naziemne lub w podziemnym garażu.
Planowany termin zakończenia budowy to II kwartał 2026 roku.
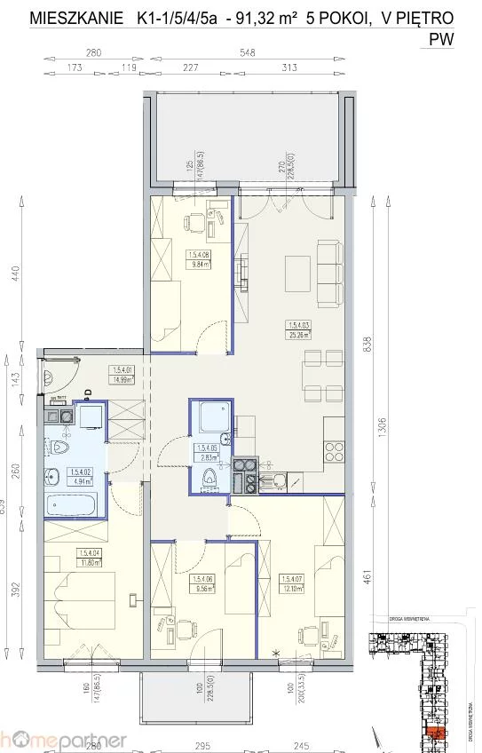
Na sprzedaż 5-pokojowe mieszkanie z dwoma balkonami o powierzchni 91,32 m2 znajdujące się na 5 piętrze inwestycji deweloperskiej na Krzykach, w okolicach Alei Karkonoskiej.
Mieszkanie składa się z:
- salonu z aneksem kuchennym 25,26 m2
- pokoju 9,84 m2
- pokoju 12,10 m2
- pokoju 9,56 m2
- pokoju 11,80 m2
- łazienki 2,83 m2
- łazienki 4,94 m2
- przedpokoju 14,99m2
- balkonu
Ekspozycja wschodnia i zachodnia, mieszkanie dwustronne.
INWESTYCJA
W odległości 1 km od tej inwestycji znajdują się:
14 placówek medycznych,
18 placówek edukacyjnych,
36 kawiarni i restauracji,
27 sklepów,
12 obiektów sportowych,
38 placów zabaw
w inwestycji przewidziano:
miejsca postojowe podziemne (128 miejsc) : nieobowiązkowy zakup
miejsca postojowe naziemne (30 miejsc) : ogólnodostępne, z możliwością zakupu
LOKALIZACJA
Inwestycja znajduje się w południowej części Wrocławia, administracyjnie jest to część osiedla Krzyki-Partynice. Graniczy z osiedlami Klecina, Ołtaszyn i Wojszyce.
W zasięgu krótkiego spaceru znajdziesz wszystko, co potrzebne do życia. To osiedle, które otoczone jest dobrze rozwiniętą infrastrukturą, oferującą sklepy, szkoły, przychodnie, apteki i inne usługi.
W pobliżu rozciągają się dwa obszerne parki: Kleciński i Południowy.
KOMUNIKACJA
Autobus odległość : 360 m
Tramwaj odległość : 370 m
Pociąg odległość : 410 m
- 5 minut spacerem na przystanek tramwajowy
- 6 min spacerem do przystanku autobusowego
- Aleja Karkonoska umożliwia dojazd do centrum miasta czy wyjazd poza granice Wrocławia
- 20 minut rowerem lub autem do Rynku
Zapraszamy do kontaktu w celu uzyskania dodatkowych informacji oraz umówienia się na bezpłatną prezentację nieruchomości: Tel. +48 889 759 863.
Feel free to contact us, talk and see the apartment. For more information please call us Tel. +48 889 759 863.
Por favor contáctenos para conocer más sobre la oferta y ver el apartamento. Podemos ayudar con todos los trámites. Para más información por favor llámanos +48 889 759 863.
www.home-partner.com.pl
Treść niniejszego ogłoszenia nie stanowi oferty handlowej w rozumieniu Kodeksu Cywilnego.
Oferta wysłana z programu IMO dla biur nieruchomości