5-pokojowe mieszkanie zlokalizowane na Pradze-Południe przy ul. Grochowskiej
BUDYNEK/OSIEDLE
Mieszkanie znajduje się na 5 piętrze w 18 piętrowym budynku.
Rok budowy: 2018
NIERUCHOMOŚĆ
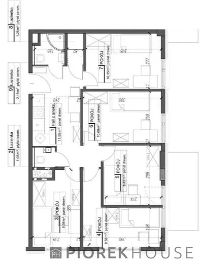
Mieszkanie o powierzchni 63,50m2 składa się z:
-aneks kuchenny: 11,9 m2,
-łazienka z prysznicem i toaletą 2,2m2,
-łazienka z samym prysznicem,
-toaleta,
-pięć pokoi o powierzchni od 8,5m2 do 10,5m2.
Powierzchnia dodatkowa:
-balkon.
Mieszkanie obecnie jest 5-pokojowe i jest wynajmowane inwestycyjnie na pokoje, można je zostawić w takim układzie lub łatwo przerobić 3-pokojowe tak jak było pierwotnie.
Czynsz administracyjny wynosi około 1000 zł.
Mieszkanie własnościowe.
Parking-do dyspozycji mieszkańców dostępny jest ogólnodostępny parking.
Ekspozycja okien- wschód, południe.
OKOLICA
Na terenie osiedla znajduje się zadbane patio z placem zabaw i zielonym ogrodem – doskonałe miejsce na relaks i spędzanie czasu z rodziną.
Dodatkowym atutem jest galeria handlowa znajdująca się w parterze budynku, oferująca wygodny dostęp do licznych punktów usługowych i handlowych – wszystko na wyciągnięcie ręki.
W pobliżu zlokalizowana jest pętla autobusowa i tramwajowa, co zapewnia szybki i wygodny dojazd w różne części miasta.
Zapraszam na prezentację nieruchomości.
W razie zainteresowania prosimy o kontakt:
730 173 007, 530 835 079
Powyższa oferta ma charakter informacyjny i nie stanowi oferty handlowej w rozumieniu art. 66 §1 Kodeksu Cywilnego.
Podana ulica nieruchomości przy ogłoszeniu ma na celu wskazania przybliżonej lokalizacji z dużą dokładnością.
Bezpłatnie pomagamy znaleźć najkorzystniejszą na rynku ofertę kredytową.
Na życzenie w ramach prezentacji nieruchomości możliwość przeprowadzenia przez firmę budowlaną oceny stanu mieszkania i wycenę remontu.
Oferta wysłana z programu dla biur nieruchomości ASARI CRM (asaricrm.com)