Z ogromną przyjemnością przedstawiamy Państwu ofertę mieszkania na sprzedaż w malowniczym rejonie Doliny Prądnika, na północy Krakowa, blisko granicy z gminą Zielonki. Nowoczesne osiedle otoczone jest rozległymi terenami zielonymi, co umożliwia codzienny kontakt z naturą i zapewnia wytchnienie od intensywnego miejskiego życia w centrum miasta.
Osiedle zostało zaprojektowane z myślą o rodzinach, parach oraz singlach, oferując szeroki wybór mieszkań o powierzchni od 26 do 73 m², w układach 1-, 2-, 3- i 4-pokojowych. Dbałość o komfort mieszkańców przejawia się w wysokiej jakości przestrzeni wspólnych, które sprzyjają nawiązywaniu sąsiedzkich relacji: skwer z ławeczkami, plac zabaw...
Budynki nowej inwestycji mające 3 i 4 kondygnacje, wyróżniają się kameralną architekturą, harmonizującą z okolicą. Przestronność obiektów gwarantuje mieszkańcom poczucie prywatności.
Zalety:
Home Management System to zaawansowana technologia inteligentnego domu, która umożliwia m.in. zarządzanie ogrzewaniem, oświetleniem i zaworami wody.
Pakiet antysmogowy w postaci filtrów montowanych w nawiewnikach okiennych dba o czystość powietrza we wnętrzach mieszkań.
Wysoki standard wykończenia części wspólnych obejmuje trwałe płytki gresowe, dekoracyjne panele imitujące drewno oraz energooszczędne oświetlenie LED.
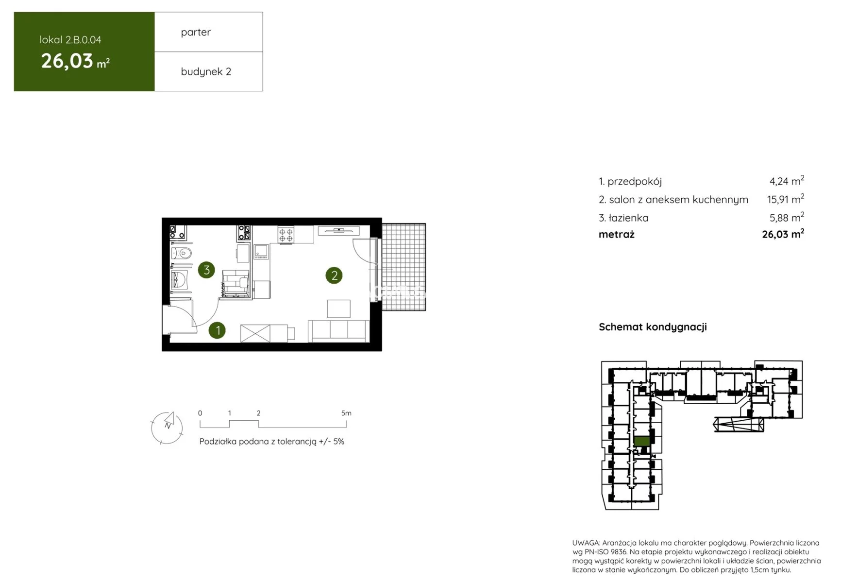
Mieszkania na parterze posiadają tarasy z ogrodami o powierzchni do 123 m², natomiast mieszkania na wyższych kondygnacjach oferują przestronne balkony.
Termoizolacyjne łączniki balkonowe zapobiegają utracie ciepła, co przekłada się na oszczędności energetyczne.
Portfenetrowe okna zapewniają doskonałe doświetlenie wnętrz.
Na terenie osiedla zostanie zainstalowana stacja ładowania pojazdów elektrycznych, z myślą o mieszkańcach korzystających z ekologicznych środków transportu.
Zielone dachy budynków będą nie tylko estetyczne, ale również poprawią jakość powietrza i obniżą temperaturę otoczenia.
Prądnik biały to doskonale skomunikowana okolica, idealne miejsce dla osób szukających spokoju i bliskości natury, z jednoczesnym dostępem do nowoczesnych rozwiązań technologicznych.
Serdecznie zapraszam do kontaktu
::DODATKOWE INFORMACJE
Kategoria oferty: Mieszkania dla rodzin z dziećmi
Rodzaj budynku: blok
Parking strzeżony (odległość w metrach) [m]: 300
Dozór budynku: monitoring
Głośność: umiarkowanie ciche
Plac zabaw: TAK
Widok: na osiedle
Gaz: brak
Woda: ciepła - miejska
Dojazd: asfalt
Otoczenie: działki zabudowane
Ogrzewanie: C.O. miejskie
Linie telefoniczne: TAK
Internet: TAK
Komunikacja publ.: autobus miejski
Odległość do komunikacji publicznej [m]: 300
Odl. do sklepu [m]: 400
Odl. do szkoły [m]: 1000
Odl. do przedszkola [m]: 500
Winda: TAK
Drzwi antywłamaniowe: TAK
Rodzaj mieszkania: jednopoziomowe
Garaż: garaż pod budynkiem
Stan lokalu: deweloperski
Okna: PCV
Instalacje: KOMPUTEROWA, TELEFONICZNA
Balkon: jest
Rok budowy: 2024
Liczba pokoi: 1
Wysokość pomieszczeń [m]: 2,5000
Podłogi pokoi: wylewka
Ściany pokoi: tynk
Typ kuchni: aneks kuchenny - połączony z jadalnią
Rodzaj kuchni: aneks kuchenny połączony z jadalnią i salonem
Podłoga kuchni: wylewka
Typ łazienki: razem z wc
Glazura łazienki: bez glazury
Podłoga łazienki: wylewka
Ściany łazienki: tynk
Glazura WC: bez glazury
Podłoga WC: wylewka
Ściany WC: tynk
Liczba przedpokoi: 1
Podłoga przedpokoi: wylewka
Ściany przedpokoi: tynk
::LINK DO STRONY
https://sadurscy.pl/offer/BS2-MS-304202
::KONTAKT DO AGENTA
Patrycja Rubinkiewicz
+48 505-236-943
Zapytaj o ofertę
::DANE BIURA
Oddział BS2, Rynek Pierwotny
Przewóz 47
30-081 Kraków
12 630-90-45
--------------------------
::GRATIS | Nasza prowizja zawiera: koszt przedwstępnej notarialnej umowy sprzedaży nieruchomości z rynku wtórnego.
::GWARANCJA | Gwarancja zwrotu zadatku. Więcej informacji na sadurscy.pl/zwrot-zadatku/
Oferta wysłana z systemu Galactica Virgo