ZŁOCIEŃ - NOWOCZESNE OSIEDLE MIESZKANIOWE.
Prezentujemy nowoczesne osiedle zlokalizowane w południowo-wschodniej części miasta.
W III etapie powstanie czteropiętrowy budynek , w którym znajdują się mieszkania w przedziale od 25 do 68 m2 .
Podziemna część budynku przeznaczona jest na garaż z miejscami parkingowymi.
Mieszkania na parterach będą mieć ogródki , na wyższych piętrach balkony . Mieszkania na najwyższych piętrach będą posiadać duże tarasy na dachu.
Inwestycja budowana w tradycyjnej technologii. Mieszkania sprzedawane w stanie deweloperskim (tynki gipsowe, wylewki, instalacje).
Wokół malownicza okolica , zielona przestrzeń, a przy tym dobra komunikacja miejska. Atrakcyjne połączenie z obwodnicą S7 i A4. Niedaleko inwestycji realizowany będzie przystanek kolei aglomeracyjnej, dzięki któremu z łatwością można dostać się do centrum miasta. W okolicy znajdują się liczne sklepy spożywcze oraz inne punkty handlowo-usługowe.
Termin zakończenia budowy zaplanowano na II kwartał 2024 r.
Zapraszam do kontaktu:
Marek Popiela +48 518 967 677
Zapytaj o ofertę
::DODATKOWE INFORMACJE
Rodzaj budynku: budynek wielorodzinny
Dozór budynku: brak
Głośność: ciche
Widok: na inne budynki
Gaz: brak
Woda: tak - miejska
Dojazd: asfalt
Otoczenie: zabudowa wielorodzinna
Ogrzewanie: C.O. miejskie
Linie telefoniczne: TAK
Komunikacja publ.: autobus miejski, tramwaj
Winda: TAK
Liczba wind: 1
Rozkład: rozkładowe
Usytuowanie: jednostronne
Drzwi antywłamaniowe: TAK
Opłaty w czynszu: -
Rodzaj mieszkania: jednopoziomowe
Garaż: garaż pod budynkiem
Stan lokalu: deweloperski
Okna: PCV
Instalacje: nowe
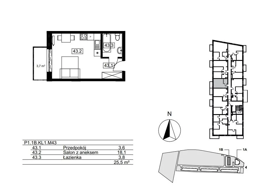
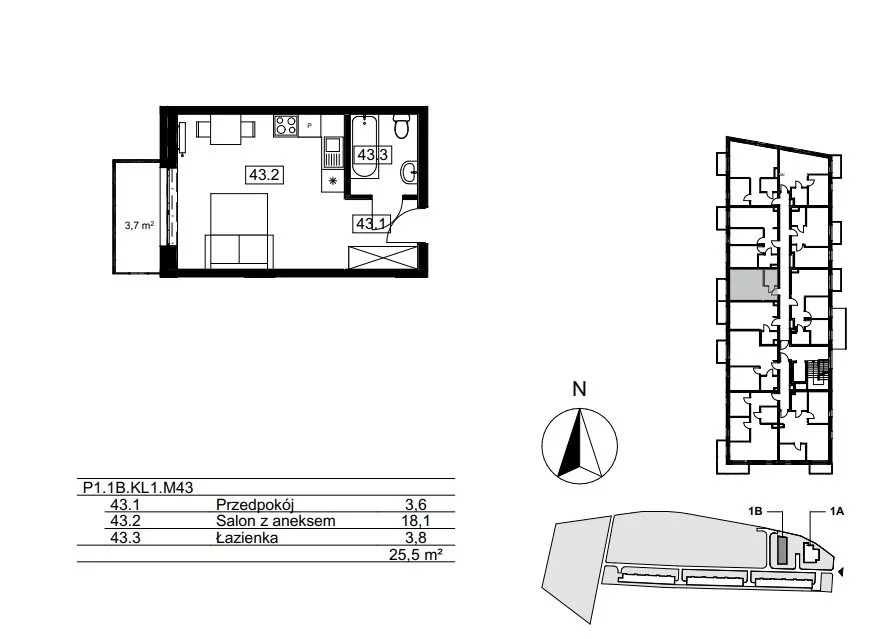
Balkon: jest
Liczba balkonów: 1
Powierzchnia balkonów/tarasów [m2]: 2,9000
Rok budowy: 2023
Liczba pokoi: 1
Liczba sypialni: 1
Podłogi pokoi: wylewka
Ściany pokoi: zwykłe
Typ kuchni: aneks kuchenny - połączony z salonem
Rodzaj kuchni: otwarta na salon
Podłoga kuchni: wylewka
Typ łazienki: razem z wc
Liczba łazienek: 1
Glazura łazienki: bez glazury
Podłoga łazienki: wylewka
Ściany łazienki: zwykłe
Liczba przedpokoi: 1
Podłoga przedpokoi: wylewka
Ściany przedpokoi: zwykłe
::LINK DO STRONY
https://sadurscy.pl/offer/BS2-MS-310819
::KONTAKT DO AGENTA
Marek Popiela
+48 518-967-677
Zapytaj o ofertę
::DANE BIURA
Oddział BS2, Rynek Pierwotny
Przewóz 47
30-081 Kraków
12 630-90-45
--------------------------
::GRATIS | Nasza prowizja zawiera: koszt przedwstępnej notarialnej umowy sprzedaży nieruchomości z rynku wtórnego.
::GWARANCJA | Gwarancja zwrotu zadatku. Więcej informacji na sadurscy.pl/zwrot-zadatku/
Oferta wysłana z systemu Galactica Virgo